△夜幕中的后殿 © 是然建筑摄影
01过去与当下
项目位于浙江衢州水亭门宁绍巷内11号的神农殿,也称药王庙。元代设有神农殿讲堂,为元代(1271一1294)年间衢州的医学教授刘光大所创。明代曾为卫校,是传授医学、交流医道的场所。建筑自元、明、清以来,曾多次由药业界人士出钱出力进行修葺。现存的建筑是衢州医学界在清朝乾隆二十八年(1763年)共同集资建造的。历经了一百多年后,又在同治十一年(1872年)重修了一次。民国时期,专门从事药材经营的兰溪人来到衢州,他们把神农殿作为药业公会的会馆,所以神农殿也称兰溪会馆。每逢神诞,公会还会出资举行盛大的庙会,酬神乐神。
神农殿,建筑占地500平方米,平面呈长方形,四合院式,砖木结构。建筑主要有前殿与正殿,两殿之间有天井及厢房连接。1993年10月,其被列为市文物保护建筑。
中国古有神农尝百草、制百药,为百姓祛病疗疾的传说。而此神农殿供奉的就是神农炎帝的塑像,是祭拜神农之所。殿堂内还塑有衢州史上名医杨继洲、雷丰等人的铜像。
△修复后的神农殿外观 © 是然建筑摄影
当下,空间虽然已修葺过,但一直处于闲置状态,略显残败。整体布局被后来使用者用玻璃与木窗格进行了重新分割,墙面贴满了壁画、塑像散落在后殿墙边,建筑木柱被黑色油漆改变了原本的风貌,庭院中则被荒芜的杂草充斥。
△改造前的神农殿状况 © y.ad studio
02既要、又要、还要
设计首先面临的一个难题,是如何在众多的文物保护规定下做设计。文保建筑通常都有着非常严苛及细致的保护规定及法律。建筑外形、结构及内部墙体、地面都不允许进行改变及修复,甚至连木梁及柱体上都不允许使用钉子固定物件。这些规定曾一度让建筑师感觉不适,有种带着镣铐跳舞的无奈感。按这样的要求及规定,基本上从空间上不能做任何的动作及设计,甚至连墙面都无法修复。
既要满足法规不能破坏或是触碰原有建筑柱体、墙体等红线,又要满足业主当下的功能使用,还得营造空间氛围及视觉感观,让人有焕然一新的感觉,最主要还得造价可控。
#庭院作为建筑的中心
为了增加使用功能,建筑原本串联前后殿的廊道被人用玻璃及木板进行了隔断,使得行人只能从露天的中庭内进入后殿。
设计方将原本加建的隔断、玻璃进行了拆除,重塑了空间的行走动线,中庭重新进行了清理与重塑,保留了原有院内的大树及水缸,让其成为整个空间的视觉中心,人环绕院落游走。
把庭院变成纯粹的被看空间,串联着各个空间,绿意盎然引入建筑空间,让陈旧的古建充满生机。两边廊道除了作为连接前后殿的主要动线外,还增加了展示功能。
△由廊道看向庭院 © 是然建筑摄影
△由后殿回看前殿 © 是然建筑摄影
△由后殿回看前殿 © 是然建筑摄影
△夜幕中的后殿 © 是然建筑摄影
△改造前后对比 © y.ad studio & 是然建筑摄影
△俯瞰中庭 © 是然建筑摄影
△廊道与文化展示空间 © 是然建筑摄影
△改造前后对比 © y.ad studio & 是然建筑摄影
03快速、廉价、有效
由于文保法规的受限及约束,设计团队在经过思考与讨论后,最终决定用类似展陈的理念、结合灯光营造,作为空间设计的主要策略,尽量不与原有建筑墙体及柱体接触,采用先修复后植入的空间改造理念。
将前后殿墙面与原本破损的木窗格,被黑色油漆破坏的木结构窗花及梁、柱,重新进行了清理及修复,遵循修旧如旧的原则,让建筑回归本来状态的同时,故意做旧保留了一些时间的痕迹。
在不增加任何固定墙体、装置的前提下,整个空间以可移动组装物件及模块化组合的方式进行重构与植入,将神像底座、展示架、软饰与灯光的结合作为设计重心。以便在施工过程中达到快速、可实施且廉价、有效的设计目的。
△分析图 © y.ad studio
△入口前殿 © 是然建筑摄影
△塑像与底座、顶面八卦图形结合 © 是然建筑摄影
△塑像底座后背 © 是然建筑摄影
△塑像与底座融合 © 是然建筑摄影
△后殿空间 © 是然建筑摄影
△后殿灯房 © 是然建筑摄影
△由后殿看向祈福灯房 © 是然建筑摄影
神农殿作为历史保护建筑,如何在保护的同时重新利用与活化空间,建筑师遵循了最小化设计干预的原则。结合实际场地,用最简洁有效的方式去最大化激活空间与营造空间,且有效地平衡了工程的可实施性难题与项目的经济性控制。
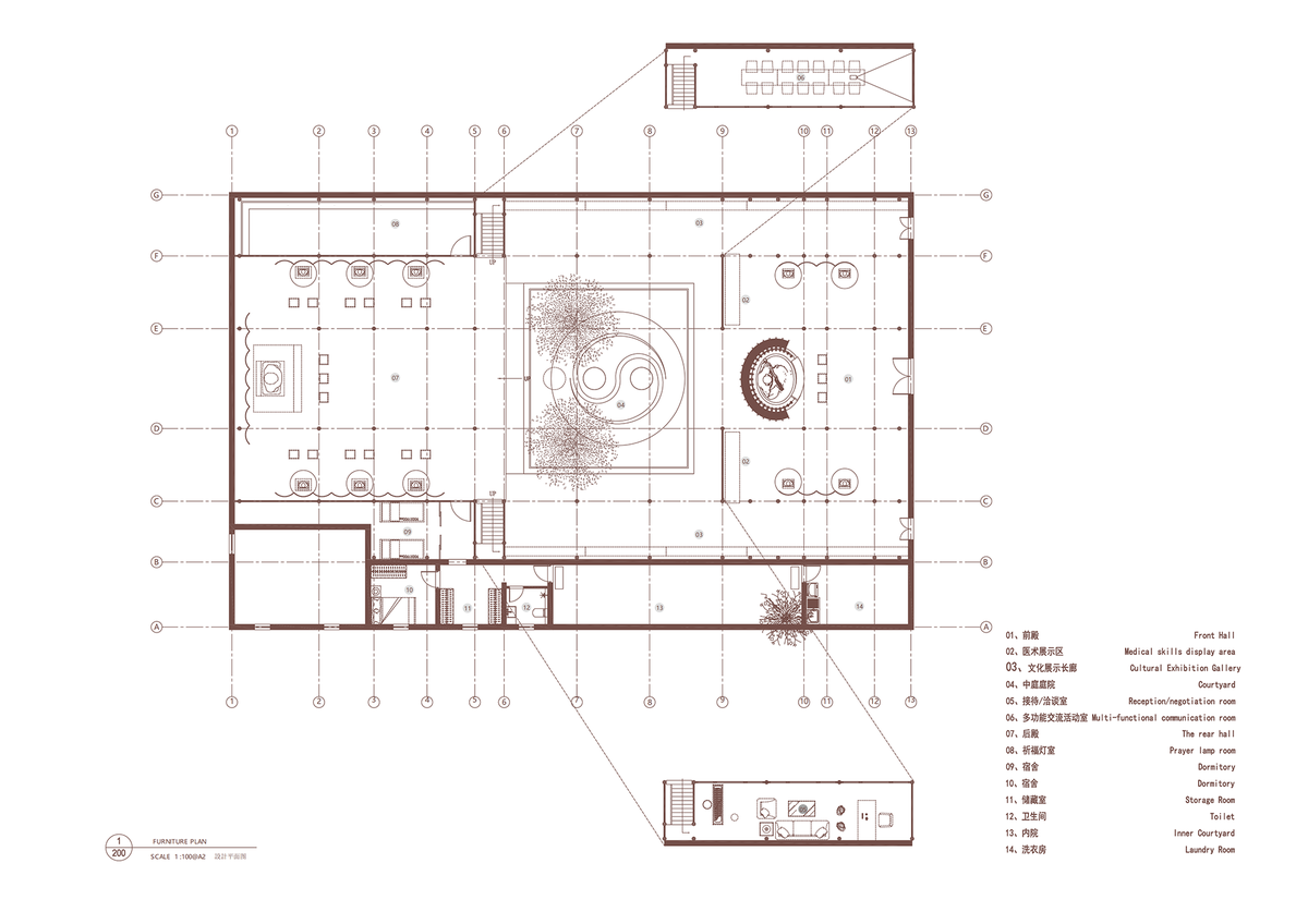
技术图纸
△区域总平面图 © y.ad studio
△建筑平面图 © y.ad studio
项目信息
项目名称:衢州神农殿微更新改造
项目地址:浙江省衢州市
建设单位:衢州市柯城区神农殿
设计单位:y.ad studio|上海严旸建筑设计工作室
设计院:杭州中亚建筑设计有限公司
主持建筑师:严旸
设计团队:赵思缘、严昱
建筑面积:500平方米
施工单位:衢州一擎室内装饰工程有限公司
主要材质:古铜色不锈钢、水洗石、黑色铁件
建造时间:2022/07-2023/08
摄影版权:是然建筑摄影

BIM建筑网



























