虾峙岛位于舟山群岛的南部,桃花岛与六横岛之间。轮渡客运站所在的栅棚码头位于虾峙西北海岸最北端一个外凸的地形奇点上,地处外侧Z字形海塘和内侧 S 形大弯的海岸公路所夹的一块三角形场地,紧邻南侧栅棚村。
虾峙客运站不仅是进出虾峙岛的主要门户,它还象征着人与海洋,传统与未来之间的连接。设计团队将站场视为一个开放的公共空间,并释放海岸线,这成为整个场地策略的核心;并用两条在场地上互成犄角、大小相配、由山形渐变到拱形的混凝土筒壳结构来覆盖形成两个体量。两个筒壳之间面向站前广场呈八字开口,并用一条弧形轻钢拱顶连廊相联系。这一双筒壳布局方式延续了概念方案中对于场地地形变迁痕迹的提示以及对于场地建造历史的保留,原客运站建筑得以被可持续再利用,而大筒壳的东边界依然作为已经消失的那段内折海塘的提示。
设计团队探讨并转译客运渡口作为连接海洋与岛屿的纽带所承载的日常行为及其象征意义。两个朝向大海时展现出柔和的半圆拱形,而面向岛屿山丘则呈现为坚实的三角形双坡顶,象征着从海洋的辽阔到岛屿的安全庇护的转变与过渡。这一对于“渡”的概念的物化,不仅体现了对上岛与离岛动态的解读,更激发了对于归属与远行、定居与探索的深层思考。
筒壳结构采用变截面剪力墙支撑的混凝土筒壳。在筒壳结构变截面剪力墙支撑的侧面,各开了两个大小错位的椭圆拱大洞口,为内部空间带来了侧向的开放与充沛的自然光线,形成仅6个“柱墩”支撑起的巨大覆盖。
在材质的选择上,设计团队有意为筒壳的内外两个面赋予两种质感。筒壳内腔采用纯净的清水混凝土呼应结构的本真之美;筒壳外表面覆盖天青色釉面圆砖,具有鱼鳞般的光泽,是对海岛渔业文化的映射,也强化了新建的客运站在这片特殊场地上的锚固感。
项目图纸
▲基地示意图
▲客运流线
▲轴测图
▲基地示意图
▲分析图
▲轴测图
▲总平面图
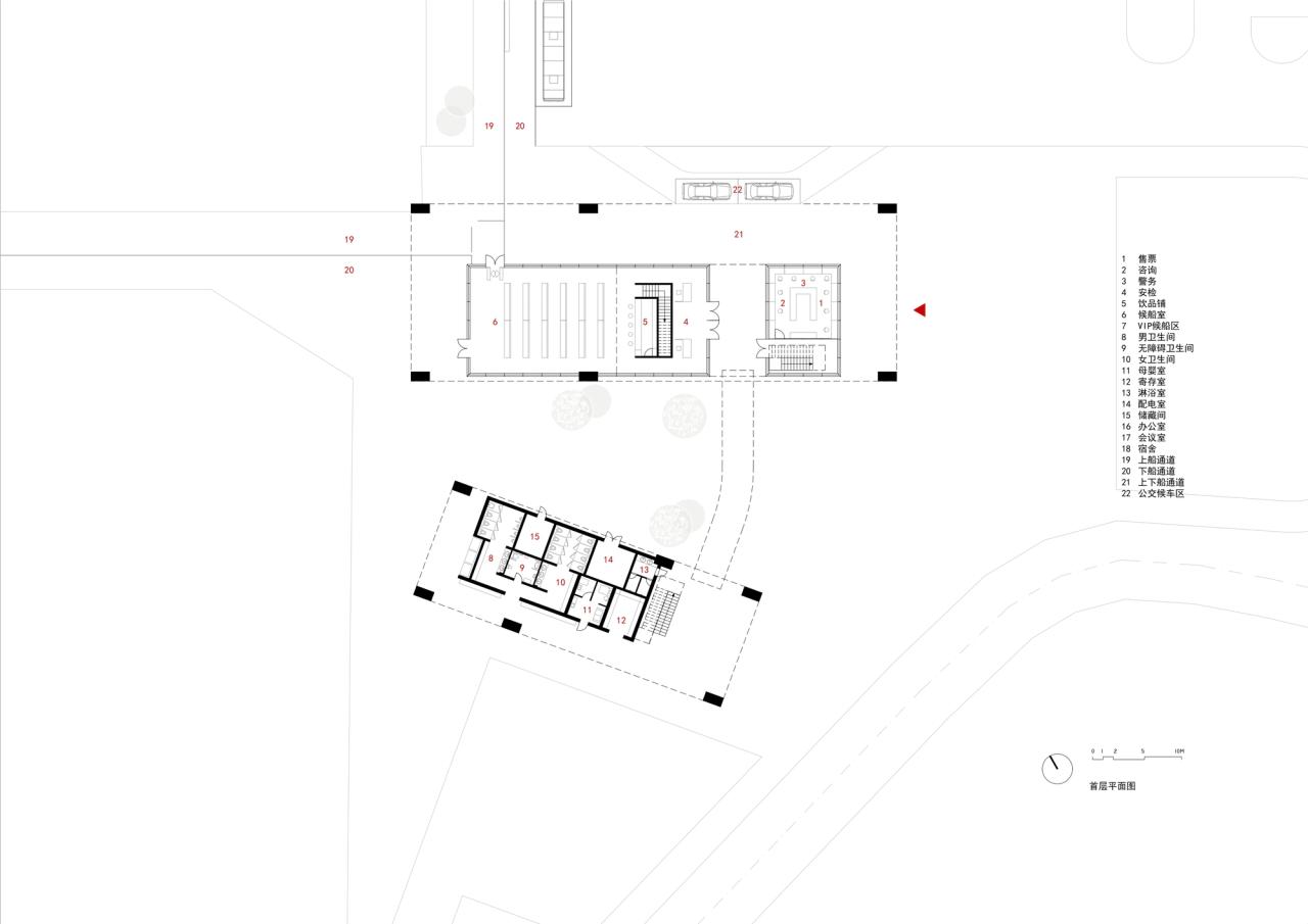
▲首层平面图
▲二层平面图
▲屋顶平面图
▲剖面图
▲剖面图
▲立面图
▲立面图
▲立面图
▲立面图
▲剖透视图
▲分析图
▲分析图
项目信息
建筑师: 致正建筑工作室
项目年份: 2021
摄影师:杨敏
主持建筑师: 周 蔚,张 斌
项目建筑师: 金燕琳
设计团队: 徐跃,卢宇(实习),游梦凡(实习),许文昊(实习),宋帅(实习)
结构设计: 和作结构建筑研究所
混凝土筒壳结构设计: 中国建筑一局(集团)有限公司
施工总包: 舟山市嘉鸿建设工程有限公司
混凝土筒壳结构施工分包: 中国建筑一局(集团)有限公司
泛光设计: 浙江歌银照明科技有限公司
施工图设计: 浙江工业大学工程设计集团有限公司
委托方: 舟山普陀交通投资发展集团有限公司
地点: 舟山

BIM建筑网
















































