山谷之家的设计打破了建筑的原有构造,使之与大自然融为一体。长街上的房屋被改造成五个交错层叠、彼此间留有缝隙的体量。横竖交错的平面构成不同层次的楼层,使得自然元素得以渗透进来。山谷意象与台湾传统庭院相结合,形成顺应风与光的建筑。
设计要点包括:
利用解构技术回应自然环境,创造有利的微气候
将山谷意象与传统庭院相结合,在自然中创造和谐的建筑
在自然环绕的空间中,人们可以充分体验房屋中的自然元素
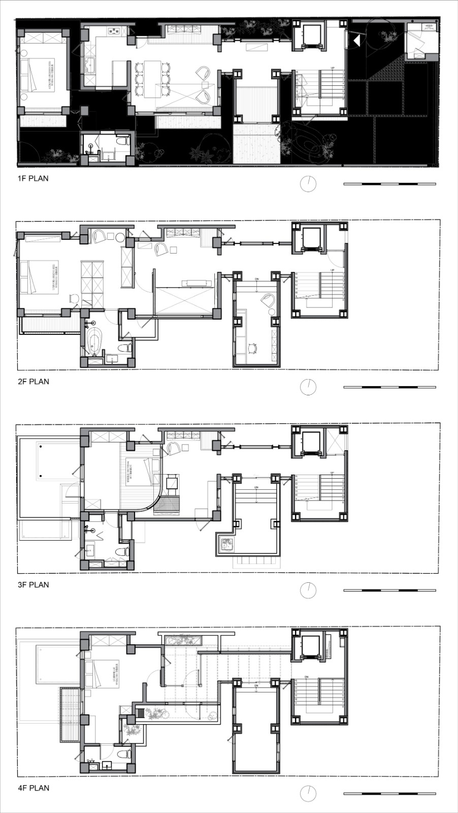
该项目是当地常见的独立建筑类型:地处狭长地带,仅前后有窗,且与相邻建筑紧密相连,导致与外部环境脱节。鉴于其面临的寒冷潮湿的东北风,该设计减轻了气候和物理方面的不利因素,以营造舒适的居住环境。
设计试图通过“解构”为相邻的独立建筑提出新的解决方案,颠覆了传统上将生活空间置于房屋两端的布局。通过在自然界中插入间隙和不同层次的空间,并用半室外空间打破混凝土盒子,它创造了一种新的城市住宅类型,并扩大了居民与自然连接的可能性。
解构住宅建筑。针对气候和周围物理环境,独立建筑被改造成五个不对齐的结构。垂直交通被放置在面向东北风的第一座建筑中,而生活空间则被推向后方,以减少冷风和湿度的不良影响。西南侧建筑的高度降低,以接收西南风。通过缩小风道并加速风速,风可以穿透庭院,沿着建筑和树木向上流动,或者通过建筑之间的缝隙进入室内。从而创造出有利的室内微气候和舒适的体验。即使待在室内,人们也能充分体验户外自然。
东方园林,景随步移。通过将山谷意象与传统庭院概念相融合,接收风和人类活动的平面在垂直方向上发生了改变。逐渐后退的阳台变成了风、植被和包括人类在内的栖息地的山谷。在室内,这些空间回应着山谷的垂直性,使感官与自然建立视觉联系。
在平面上,后退和挖掘创造了可渗透的空间,而自然则同时通过水平和垂直维度渗透到室内。这创造了建筑与自然之间的一种新关系,允许从上、下和与视线平齐的角度来重新界定室内与室外的生活边界。解构技术是为了适应场地的条件,并重塑空间以适应多代同堂的生活方式。
在解构的住宅建筑中,空间由结构、间隙和户外元素共同定义,创造出距离和边界。用户可以通过建筑不对齐的层次所产生的多样化空间和角落进行导航,从而发展出不同的使用方式和场景。这创造出了既适合聚会又适合独处的空间,其特点在于既相互连接又相互分离的状态,打破了传统的住房和生活方式。设计试图将抽象的感性与自然融入建筑理性的构成之中。
服务功能主要设置在第一座和第四座建筑中,而第二座和第三座建筑则在不同楼层分配了如茶室、书房、用餐区和靠窗的阅读桌等空间。这种布局将生活空间穿插在服务区域之间,实现了对狭长空间的均衡利用。位于末端建筑的卧室可以独享舒适的西南风,并享有内部山谷的景致。不同楼层的阳台上种植了各种各样的树木,引入了不同的自然色彩变化,让人联想到山谷,并阐明了室内外不同高度所带来的自然流动感。
项目图纸
▲平面图
▲垂直分析图
▲平面图分析图
▲爆炸图
项目信息
建筑师:Ray Architects,合风苍飞设计 + 张育睿建筑师事务所
面积:338m²
项目年份:2024
摄影师:Hey! Cheese
厂家: Carl Hansen and Son,MUJI,Republic of Fritz Hansen
主持建筑师:Ray Chang
细部设计:Lin Yi-Syuan
室内设计:Lin Shang Hsien
地点:台中

BIM建筑网

































