新的苏黎世大学儿童医院位于苏黎世-伦格区,坐落于名为布尔格霍尔兹利(Burghölzli)的山脚下。它毗邻来自不同时代的其他医院建筑,是瑞士最大的儿童和青少年医疗机构。医院由两栋建筑组成:急性护理医院和研究与教学设施。南部的急性护理医院由三层混凝土框架构成,内部填充了复杂的木质结构,与周围环境融为一体。其内部布局宛如一座小镇:各个医学科室就是街区,拥有广场和连接街道。三层楼的每一层都有一条中央主街,穿过各个提供方向指引并将自然光引入建筑的绿色庭院。屋顶上的病房就像是一间间独立的小屋。
教学与研究设施位于北侧的一座白色圆柱形建筑中,中央设有一个开放的五层中庭。研究领域围绕这一交流核心进行布局。其下方,三座讲堂镶嵌在倾斜地形的地貌之中,周围环绕着研讨室和学生学习区。大规模的景观设计包括种植了250多棵树。此外,建筑内外还摆放着施工过程中从地下挖出的巨石,讲述着冰河时代的冰川故事。新建筑群所具备的“内在自然”特质,对于将医院打造成一个有利于康复的场所至关重要。这两座建筑均获得了SGNI(瑞士可持续建筑委员会)严格规定下的建筑可持续性铂金级认证。
急性护理医院 -新儿童医院位于一片点缀着果园的住宅区。它毗邻被列为文物保护建筑的大学精神病诊所(PUK),大门开阔,正对着1869年建成的历史建筑的大门。医院立面的凹进设计,为这两家机构创造了一个共享的前庭。大门通向一个绿树环绕的圆形庭院,穿过庭院即可进入医院入口。餐厅和通往下方治疗设施的通道毗邻入口,拥有各自的花园。在另一侧,医院的主街通往使用率较高的诊疗区域,如影像诊断和日间手术室。这条中央轴线随着庭院的宽窄变化而变化,最终抵达急诊室,急诊室也可直接从外部进入。
二楼中央,主街两侧设有额外服务设施,如医院学校、药房及其他共享空间。一个面向外部的办公环境像花环一样环绕着这一中心区域,为医疗和行政人员提供了约600个工作空间。顶楼是医院最安静的区域,专为儿童和青少年以及留宿或长期住院的病人保留。114间病房每间都设计成带有各自屋顶的木制小屋,提供私密空间、绿色户外视野以及足够的空间供父母陪夜。紧邻小屋的主街沿线设有四个中心,儿童和青少年可以在这里接受跨学科治疗。医院的立面由三维承重混凝土结构构成,将一楼和二楼结合在一起。立面的深度和填充物(可能是木材、玻璃、织物或植被)根据朝向和内部活动而有所不同。除混凝土支撑结构和交通核心外,整栋建筑都采用了轻质建筑材料。这样一来,各部门可以根据需要调整大小:这座形状独特的平房建筑确保了医院内部至关重要的灵活性。设有住院病房的顶楼向后退缩,展现出独特的建筑语言。病房错落有致,屋顶倾斜度各异。这些个性化、基本的小屋形状强调了每位患者的独特性。
研究与教学设施- 这座圆柱形的白色建筑内,研究与教学用房围绕着中央中庭布局,鼓励研究人员之间的交流与合作。一个用于教学的广场在中庭下方展开,与周围的景观直接呼应。三座讲堂顺应自然地形坡度而建。自然光从外部倾泻而入,得益于可移动的隔断墙,讲堂、大厅和咖啡馆可以重新组合成一个大型空间。这样便形成了一个中央设有舞台的广场,可用于举办特别活动,同时可容纳670名观众。楼上的画廊设有开放式的学生工位。同一楼层的相邻研讨室完善了大学教学的可用空间。五层楼上设有研究实验室、诊断室及配套的办公室,可一览无余地欣赏周围的景观。中庭周围安排了开放式工位,供博士生和实验室工作人员使用。从这些工位上,可以同时看到多层楼面以及下方的广场,而广场又通过天花板上的小圆孔(即天窗)与上方的中庭相连。
这座研究与教学楼矗立于精心设计的景观之中,独立于一片果园内,与布尔格霍尔兹利(Burghölzli)众多花园中的果园相仿。建筑本身采用抽象而清晰的几何语言,所用材料简约。挑出的阳台配有高耸的白色栏杆,使建筑显得既稳重又轻盈。儿童医院的两座设施虽风格迥异,却相辅相成。研究教学楼位于山坡上,其圆形设计将视线引向湖面。而急症医院则呈狭长水平状,与平坦的景观融为一体,从医院可眺望后方的山峦。医院关注每一位患者的个体需求,这意味着不仅要关注治疗过程,还要关注患者家属及医护人员的福祉。研究与教学楼则强调科学家与学生之间的交流与合作,这是前瞻性研究的先决条件。
项目信息
△基地示意图
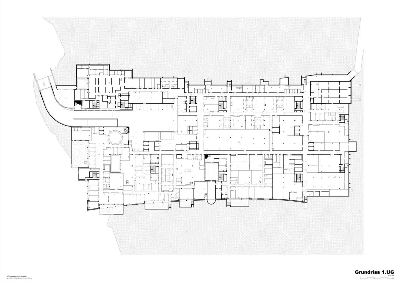
△急性护理医院地下一层平面图
△急性护理医院地下二层平面图
△急性护理医院一层平面图
△急性护理医院二层平面图
△急性护理医院三层平面图
△急性护理医院屋顶层平面图
△急性护理医院屋顶平面图
△研究与教学设施地下一层平面图
△研究与教学设施地下二层平面图
△研究与教学设施半地下平面图
△研究与教学设施一层平面图
△研究与教学设施二层平面图
△研究与教学设施三层平面图
△研究与教学设施四层平面图
△研究与教学设施五层平面图
△研究与教学设施六层平面图
△研究与教学设施七层平面图
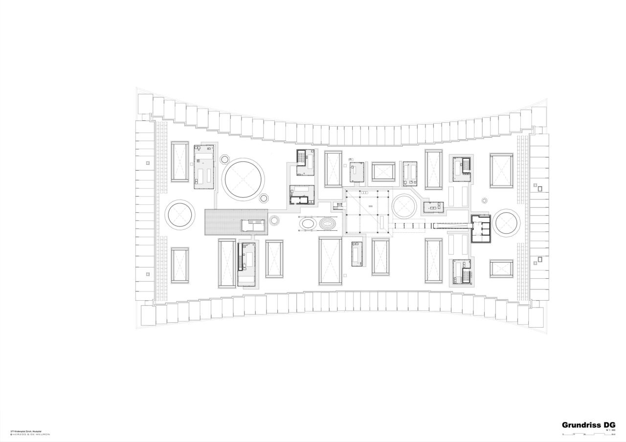
△研究与教学设施屋顶平面图
项目信息
建筑师:赫尔佐格 & 德梅隆
面积:46650m²
项目年份:2022
摄影师:Herzog & de Meuron
业主代表:Martin Vollenwyder (Chairman of the Foundation Board), Heini Brugger (Chair Building Commission), Françoise de Vries (Chairman of the Steering Committee), Thomas Hardegger (General Project Manager – KOMOXX GmbH Planung & Projektmanagement), Marcel Müller (General Project Manager – Novaloxx LLC)
项目合伙人:Jacques Herzog, Pierre de Meuron, Christine Binswanger (Partner in Charge)
项目团队:Michael Schmidt (Associate, Project Director), Mark Bähr (Associate, Project Manager Acute Hospital), Birgit Föllmer (Associate, Project Manager Building for Research and Teaching), Alexander Franz (Associate, Project Manager Building for Research and Teaching), Andrea Erpenbeck (Associate, Project Architect), Martin Fröhlich (Associate, Project Director), Michael Drobnik (BIM Manager), Judith Abele, Valentin Abend, Ömer Acar, José Aguirre, Luís Alves, Jens Andresen, Gabriella Antal, Michael Bär (Associate), Laurenz Batka, Michal Baurycza, Nathalie Birkhäuser, Filip Bolt, Sandro Camichel, Guanlan Cao, Axel Chevroulet, Benedict Choquard, Otto Closs, Victoria Collar Ocampo, Hernán Concha Emmrich, Joao Da Silva Moreira, Marc Anton Dahmen, Eva Danwerth, Léane Dott, Nicholas Dunkel, Silja Ebert, Ela Elmas, Santiago Espitia Berndt (Associate), Alessandro Farina, Maik Fischer, Daniel García Moreno, Kim Gartmann, Noémie Girardet, Irene Giubbini, Borja Goñi, Arnaud Greder, Daniel Grenz, Gustava Grüntuch, Lars Hagen, Christian Hahn, Kasper Hansen, Philipp Henestrosa, Anna Hernández García, Yuko Himeno, Ryoko Ikeda, Soraya Isak, Vasileios Kalisperakis, Marina Karova, Changsup Stephan Kim, Daniel Koo, Melisa Köseli, Sahng O Lee, Stella Lembcke, Matthias Leutert, Ruizhe Liang, Gia My Long, Theo Mayer, Raúl Mera (Project Architect), Laila Miarelli, Klaus Molterer (Project Architect), Miquel Montoya Moya, Neda Mostafavi, Stefan van Nederpelt, Don Nguyen, Anja Oertel, Mònica Ors Romagosa (Project Architect), Lukas Otrzonsek, Aldis Pahl, Jakob Elias Passernig, Vesna Petrovic, Fabio Prada, Corsin Raffainer, Timon Rajmon, Francisco Ramos Ordóñez, Bálint Rigó, Giulio Rigoni, Dominic Roth, Pascal Ryser, Ladina Schmidlin, Anna Schneibel, Balázs Schrammel, Sarah Söhnel, Magdalena Stadler, Maximilian Steverding, Paula Strunden, Jan Szonert, Milou Teeling (Project Architect), Emma Thomas, Ali Uzun, Yves Wanger, Patrick Welss, Mirco Wieneke, Niklas Winkler, Yaobin Yuan, Joanna Zabinska
竞赛团队:Mark Bähr (Project Manager), Jason Frantzen (Associate, Project Manager), Alexandria Algard, Maximilian Beckenbauer, Blanca Bravo Reyes, Alexander Franz, Ondrej Janku, Christoph Jantos, Johannes Rudolf Kohnle, Severin Odermatt, Raúl Torres Martín, Mika Zacharias
景观深化设计:Andreas Geser Landschaftsarchitekten
建筑自动化与智慧建筑:Jobst Willers Engineering AG
市政工程:EBP Schweiz AG
委托方:Kinderspital Zürich – Eleonorenstiftung
电力工程:Amstein + Walthert AG
给排水工程:Ingenieurbüro Riesen AG
驻场建筑师:Gruner AG
景观建筑师:August + Margrith Künzel Landschaftsarchitekten AG
结构工程:ZPF Ingenieure AG
地点:瑞士,苏黎世

BIM建筑网















































