随着新建厦门北站的建成,CCDI悉地国际创造了一项结构复杂而优美的交通建筑综合体。建成后的新建厦门北站是国内最大的双子型改扩建高铁车站,也是国内最大波浪形站房。
△建筑外观 Exterior view
△建筑外观 Exterior view@鲁飞
新建厦门北站赓续既有站闽南及嘉庚建筑风格,外型设计融入坡屋面、燕尾脊、拱顶,彰显“海上丝绸之路”文化特色。
△主入口立面 Main entrance facade@鲁飞
福厦高铁是我国“八横八纵”高速铁路网沿海通道的重要组成部分,线路开通后福州、厦门迈入“一小时生活圈”,联合老站联通投用总规模达13台27线预计站点年旅客发送量将达5000万人次。
△剖透视图 Section – Perspective
△进站广厅 Entrance hall@鲁飞
厦门北站于2010年首次建成投入使用,2018年CCDI参加了扩建工程的建筑设计竞赛,之后与中铁第四勘察设计院集团有限公司建立联合体设计合作、与中铁建设集团完成方案改进,2021年正式动工,经过两年时间的建设,2023年9月28日上午随着福州方向开来的首趟G9801列车缓缓驶入,国内首条跨海高铁福厦高铁全线贯通运营,厦门北站新站房正式启用。
主站房钢屋盖南北跨度达267米、东西跨度143米,由6根巨型开花柱擎起。波浪形的屋盖波峰与波谷相差24米。候车大厅室内设计顺应建筑屋面造型特征形成建筑内外统一的室内空间感受。
△空间推演 Spatial deduction
△候车大厅 Waiting hall@鲁飞
△候车大厅夜景 Waiting hall@鲁飞
△候车大厅 Waiting hall@鲁飞
△候车大厅夜景 Waiting hall@鲁飞
△剖立面图 Section – Perspective
△吊顶铝条板分段实施研究 Study on aluminum strip segment of ceiling
既是亮点,也是难点。候车厅吊顶采用2000处弧形,涉及150种弧形尺寸、100种弧度,充分展现了建筑内部的曲线之美,其中最大弧长53米、高差11米,为保证项目高质量完成度,施工充分发挥BIM技术在智通建造中的应用,激光投射定位、7000余个控制点位等多种措施确保精细施工,以科技创新为引领,使吊顶11685根铝条板拼接误差不超过2毫米,线条丝滑流畅。
2万平方米的无柱候车大厅吊顶采用多曲面波浪形造型,呼应建筑突出特色,在波浪形的海洋中一共有3个巨大的舟型采光天窗,整体配色明亮大气,搭配局部金漆棕色,为旅客营造温馨舒适候车环境。
△天窗方案细节 Skylight scheme details
△高架夹层的弧形楼板 The curved floor of the high-priced mezzanine
16.50米高架夹层的楼板突破性地使用了自由曲线造型,与整体空间的波浪形吊顶互相呼应融合,体现“海在城中,城在海上”的独属于厦门这座开放包容的滨海城市的独特空间。
换乘中心设置了中国高铁站房面积最大的天气感应式智能天窗,面积约1400平方米,约为三个标准篮球场大小。天窗和玻璃幕墙挑起站内采光的重担,自然光线挥洒站内。通过分布在四周的风雨感应器,无需人工干预,天窗便可根据实时监测的光照、降雨、风力等环境数据自动开合玻璃及窗帘。这样的智能天窗系统充分减少了二氧化碳的排放,体现了绿色健康节能的设计理念。
△换乘中心进站层视角 Transfer center@鲁飞
△换乘中心高架层视角 Transfer center@鲁飞
△换乘中心天窗细部 Transfer center Skylight detail@鲁飞
△换乘中心天窗细部 Transfer center Skylight detail@鲁飞
换乘中心是新老站之间的连接枢纽,交通功能上承载了城市BRT、公交车、地铁的便捷换乘,空间上需解决新老交接部位巨大的高低落差装饰效果。
△换乘中心与新站交接 Transfer center to the new station@鲁飞
△从新站看向换乘中心 View from the new station towards the transfer center@鲁飞
考虑与老站传统斗拱柱和格栅吊顶的衔接关系,室内采用既有站房外立面的窗花金属格栅进行装饰,增加层次感,与外立面形成呼应。
△换乘中心与老站交接 Transfer center and old station transfer@鲁飞
△新建花窗幕墙与老站斗拱柱 New window curtain wall and old station dougong column
△从老站候车大厅看向换乘大厅 View from the waiting hall of the old station to the transfer hall@鲁飞
出站层长达1公里的行走通道被室内设计师融入厦门城市万国建筑柱廊、钢琴、海浪等元素,结合建筑原始结构,打造具有序列感、当地文化性、未来感的独特魅力空间。
△出站通廊 Exit corridor@鲁飞
△城市通廊 City corridor@鲁飞
△出站层空间轴测图 Outbound floor spatial axonometry
通过十字拱券造型将空间视觉从原来的“扁平化”转变为“开阔化”,同时通过有选择地设置十字拱券造型来引导行走动线。
△地下换乘中心 Underground transfer center@鲁飞
△地下换乘中心动线分析 Analysis of moving lines of underground transfer center
站台乘车空间秉承“重结构,轻装饰”的设计理念,在充分考虑安全的前提下,对站台上方局部梁格进行阵列语言强调,希望兼顾安全、美观、吸声功能。
△站台雨棚 Platform awning
△高架下站台 Elevated lower platform@鲁飞
△建筑外观 Exterior view@鲁飞
高铁站的建设往往伴随着一个时代、一个城市的发展脉搏,是一个城市的记忆,新建厦门北站建筑与室内设计充满了现代感与未来感,彰显出科技的力量,同时也体现出地域文化特色,为城市建设发展贡献了一份充满诚意的答卷。
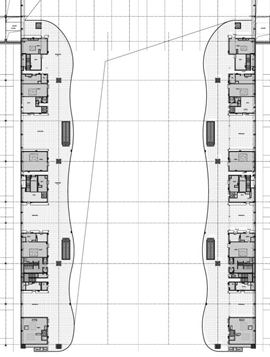
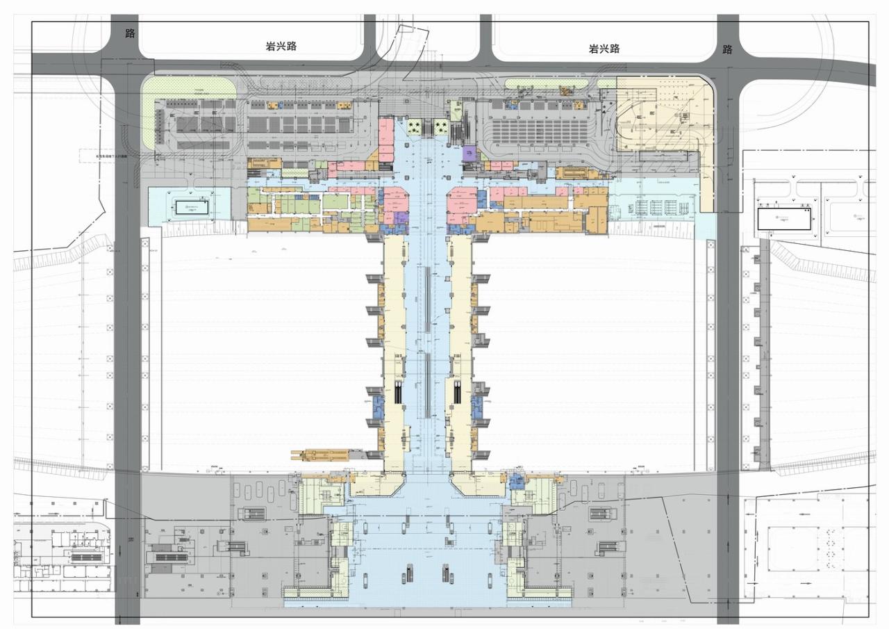
项目图纸
△-10.00米层平面图
△0.00米层平面图
△9.00米层平面图
△16.50米层平面图
△屋面平面图
△剖立面图
项目信息
项目名称:福厦铁路厦门北站扩建工程室内设计
建筑面积:25万平方米
室内设计面积:5.59万平方米
建筑设计团队:CCDI悉地国际 轨道交通产品直属建筑团队
室内设计团队:CCDI悉地国际 北京室内设计中心
公司网站:www.ccdi.com.cn
室内设计 & 竣工时间:2020.2-2023.9
室内主创及设计团队
设计总监:李秩宇
室内主创:王欢、浦玉珍
设计团队:张洲文、张新雨、李海涛、王明辉
项目地址:中国/福建/厦门
摄影团队:鲁飞、任恩彬
业主单位:东南沿海铁路福建有限责任公司
联合体单位:中铁第四勘察设计院集团有限公司
施工单位:中铁建设集团

BIM建筑网















































