沿江乡村学校位于江西沿江村,此扩建项目旨在为周边五个村庄的 450 名学生提供更完善的小学和幼儿教育设施,重建一所包含 13 间教室和一座图书馆的教学楼。
设计保留了现有宿舍大楼和树木,并在利用原有的环境构筑创造多个庭院空间。这些庭院让学校可自由按她的教育理念而运用,成为学校耕种的田地,让学生了解农业知识,鼓励他们推动未来乡村发展。项目设计强调实用性,采用本地物料并使用外露结构和排水系统。这种做法既能突显建筑工艺,也便于未来的维护管理。校舍施工期间受新冠疫情、预算和技术的限制,以紧密的远程监控来确保进度和质量。
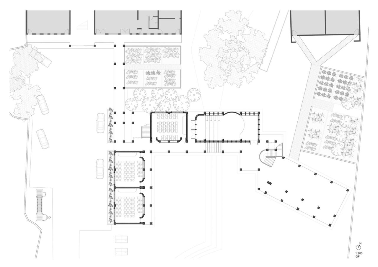
尊重原址环境校舍的建筑形式与现场建构及校园中的自然地理结合,形成了一系列庭院空间,并利用场地的高差创造有盖操场和图书馆,减少了挖掘工程,同时为学生提供了具有特征的活动区域。
被动式设计教室的南北布局为教室提供合适的间接阳光, 对流窗户有效的为教室和走廊通风。拱形屋顶为多雨的江西夏季而设,便于雨水排导,同时增加了教室内的净空,引入自然光的同时助于夏季降温,减低电量消耗。
材料结构表达建筑结构采用简单框架系统组织空间,排水管沿着结构柱子嵌入,整合美观同时也易于维修。曲线门道设计考虑人性化的动态,也符合消防疏散的要求。墙体使用当地采购的清水砖,透过展现建筑材料的内部,确保施工的工艺质素及完整性。
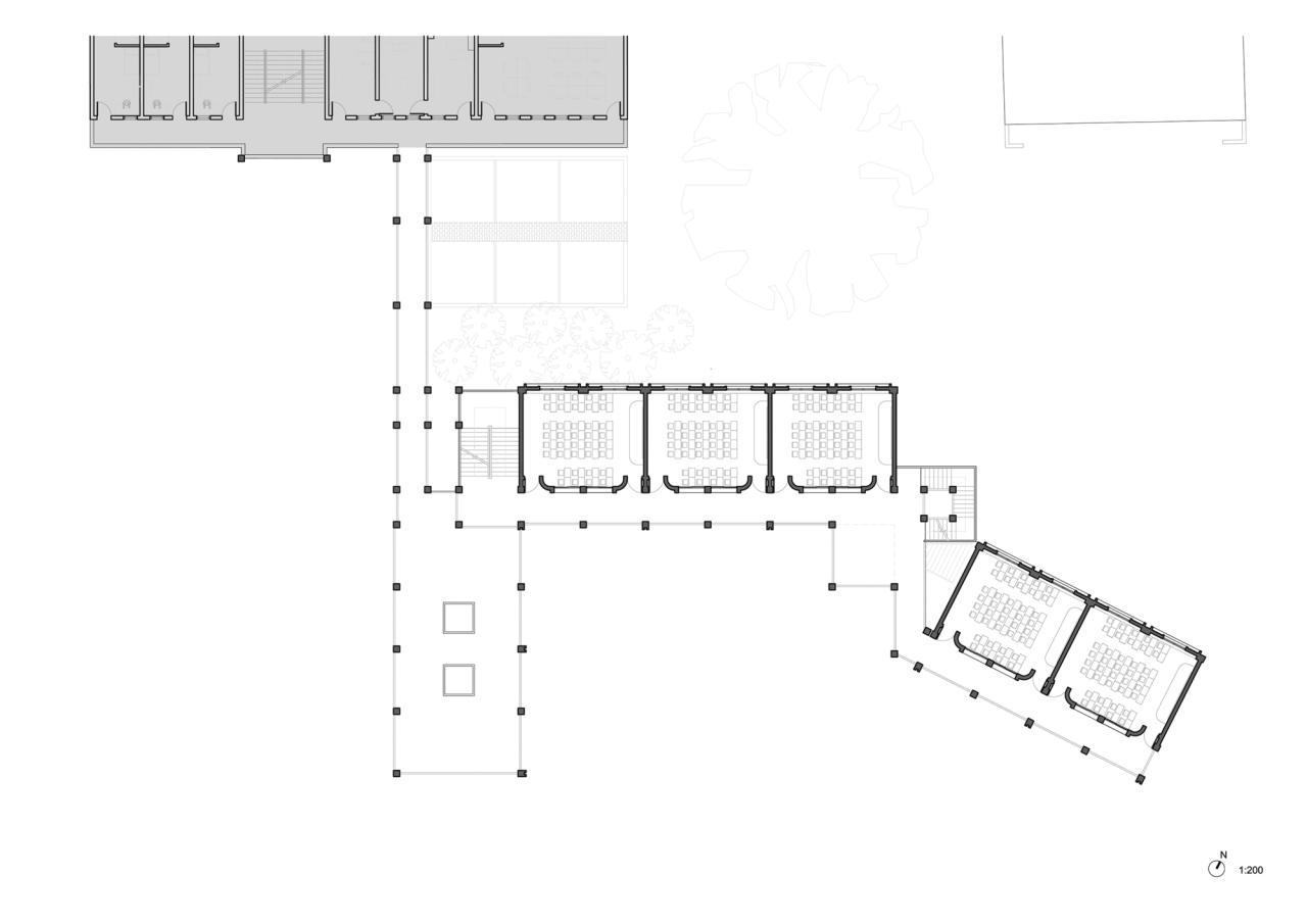
空间互动走廊设置了带座位的墙壁增进学生交流,开放式楼梯和平台空间鼓励楼层之间的互动。
项目图纸
▲模型图
▲模型图
▲模型图
▲基地示意图
▲一层平面图
▲二层平面图
▲剖面图
▲分析图
▲垂直交通系统
▲结构示意图
▲分析图
项目信息
建筑事务所设计团队:DOMAT
面积:1600m²
项目年份:2022
摄影师:DOMAT
主持建筑师:马洁怡, Mark Kingsley
项目团队:马洁怡, Mark Kingsley 陈启丰, 佟炜芝, Gianfranco Galagar, 吴启龙, 向颖
地点:宜春

BIM建筑网





























