
让图纸和分析图动起来,这是表现方案概念发展和演变的一种很好的办法。因此GIF动图因此可以作为一种非常实用的工具,来提高方案的表达,用简洁的方式表达大量复杂的信息。
当谈到建筑图纸时,清楚需要强调的信息和最好的表现方法是很重要的,去除一切多余的数据,只关注最有用的信息。牢记这一条,下面列出了7种不同类型的动图,能够最好地表现每个方案的特点。
1) 语境
在一张图中表现特定的环境特点,这是一项复杂的任务。即使你成功地将关于理解项目环境所有需要的信息都放进了图中,结果却常常显得混乱或信息过剩。 用清晰的方式表达精确的信息,GIF动图是一项强大的工具。
85Sheltered Housing Units for Senior and Public Facilities / GRND82

Casa 50.50 / Célula.Urbana

2) 设计概念
生动地阐述方案背后的概念可谓是真正的挑战。不论你想要关注潜在的形态逻辑,还是关注将你从现存建筑带到最终方案的推演过程,GIF动图都能提供清晰的序列,来传达你对方案的处理手法。
Armory Wharf / Lahznimmo Architects

Casa Taller Tampiquito / Dear Architects

Totihue Chapel / Gonzalo Mardones Viviani

3) 空间关系
大多数建筑方案都不只一层。即使是在一层的结构中,地面和屋顶也可能以复杂的方式,与天窗,屋顶平台等等发生联系。当方案超过一层时,楼层间的交互就变得更加复杂,也更加难以表达。 GIF动图可以用来表现各个楼层和整个建筑,或是各个楼层间的不同的关系。
Attic for an Architect / buro5

CircusBA / It Met

Zamudio / Arqtipo

4) 构造
建筑构造中可能会有非常复杂的连接节点和材质的做法。有时,某个构件可以翻转倒另一位置,或可以移动,打开及抬升。想象一下可调节的轻质立面,可以根据天气和阳光数量改变位置。 通过使用GIF动图,你可以描绘出某个特定部件的整个运转过程,将构造表达得更完整。
Conjoined Media Towers / REX

CRAFT / Sameep Padora & Associates

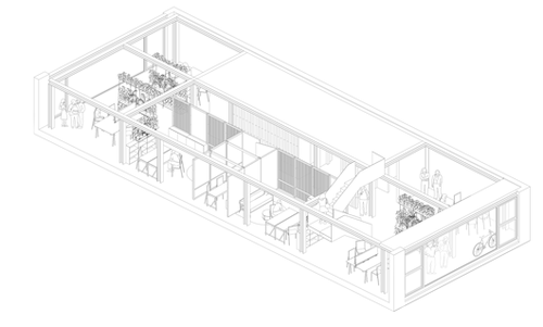
5) 功能
方案的功能确定了空间中大致的人际关系网络。分析图加上特定的移动,能以简单的方式传达出完整的信息。
Soyoo Joyful Growth Center / Crossboundaries

6) 结构和建造
通过GIF动图,建筑师得以在一张图中表现完整的结构或建造过程;从基础到最后一根梁,GIF都是能简单地表现建筑建造过程的伟大工具。
EFC Cabin / VOID

SIP m3 House / Ian Hs + Gabriel Rudolphy

Wooden Structure at Launchlabs / Stereo Architektur

7) 建筑效果图
会动的方案效果图能出色地表现设计的不同层次;你可以表现穿越建筑室内的旅程,或是在无数可能性中,停留在建筑中的多种方式。
Home at Intersection /Yushang Zhang
Nautilus / TEN + NGO City Creative Network


BIM建筑网