这是顺德一个五口之家的住宅,夫妇二人是镇上的职工,儿女刚成年,爷爷虽上了年纪但精神很好。场地位于镇中心,周围的宅基地也都以业主自住为主,属于珠三角典型的自建房街区。宅基地为8米面宽,10米进深,北侧南侧为通行窄巷,西侧为不通行窄巷。仅东侧视野采光较好。
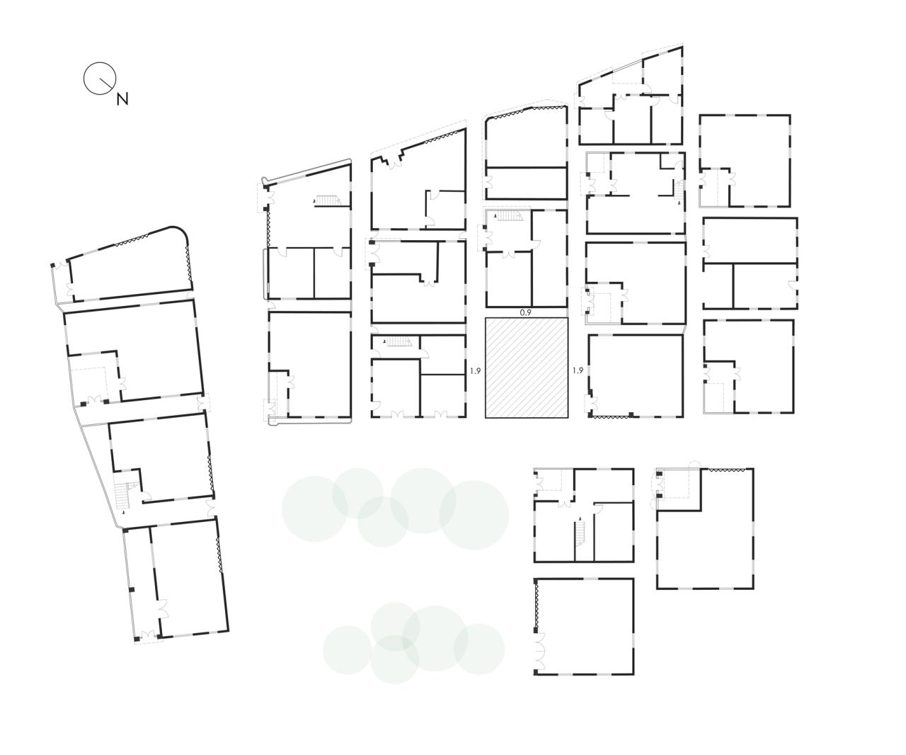
第一行(拆除平面):家族旧宅,建于80年代,3层框架结构。择南侧巷子为入口,红线内设小院,然后进入神厅,神台背北面南,序列感上佳。楼梯位于房屋中间,各层交通收束在用地中间。由于用地三面被围,这样的内部布局意味着首层厨房和二三层次卧均朝向不佳,该居住情况在当地较常见。场地受限,在建房过程中无法通过有针对性的布局来使生活空间获得想象力,是自建房领域普遍面临的问题。为了最优化地建设这块宅基地,夫妇开始寻找建筑师的介入。
第二行(平面):广府传统民居的原型是三间两廊,随着用地日渐紧凑,出现了两开间的明字屋和单开间的竹筒屋。在现行的4层自建房建设中,单层且至多两层的三间两廊原型似乎早已被忘却。开间数更多是经济规律而非生活所向,但从三开间,到两开间,再到单开间的过程中,进深却保持了经久,心间深处望向天井作为家中最大景深,神台端坐在阴影的最深处,另一端是承接着阳光雨水的天井,卧室开门,使得广府人世世代代在此进深中穿梭。
第三行(平面):我们将宅地理解为一个U型口袋,靠东侧是阳光与风景,U型内部将深远地望向它。
第四行(立面):在立面上,我们面临的议题:一是8米面宽,最多只够做两开间,二是垂直的生活体系。两开间可一大一小,个人空间3.7米,共有空间4.5米,这使得每位家庭成员在不同的层,夫妇则合住顶层,每层的共有空间则成为他们上上下下串联彼此的需要。
第五行(平面):四层+两开间,可以在优良朝向上布置出4个个人空间,和4个共有空间——神厅,餐厨,起居,书房。楼梯电梯则是为第三种空间——可以简单地叫交通空间,但它在U型口袋最内侧,沿共有空间一直望向深远的外景,且串联着个人空间向共有空间的过渡,它该带给主人家更丰富的空间感受才好,因此这第三种空间的平面尺寸并未被压榨至最低,而是留有做变化的余地。
第六行(立面):可以将车库的层高压至最低,为卧室留出更多层高,而共有空间的层高为匀质的3.5米,则个人空间与共有空间有高差,这样的高差将帮助第三空间的视线越过共有空间而获得意外的景深。
第七行(平面):依据以上节奏落位了九根柱子,U型开口处形成1.8米的悬挑,强化袋口与袋内在开放度上的差异。5根柱子自始至终隐藏在墙体里,但A3,B2,C1,C2则在二层三层四层依次露出。
第八行(立面):主立面确定为悬挑后,将砌体,开窗,飘檐等,均归纳为水平线条。
第九行(平面):平面图完成。
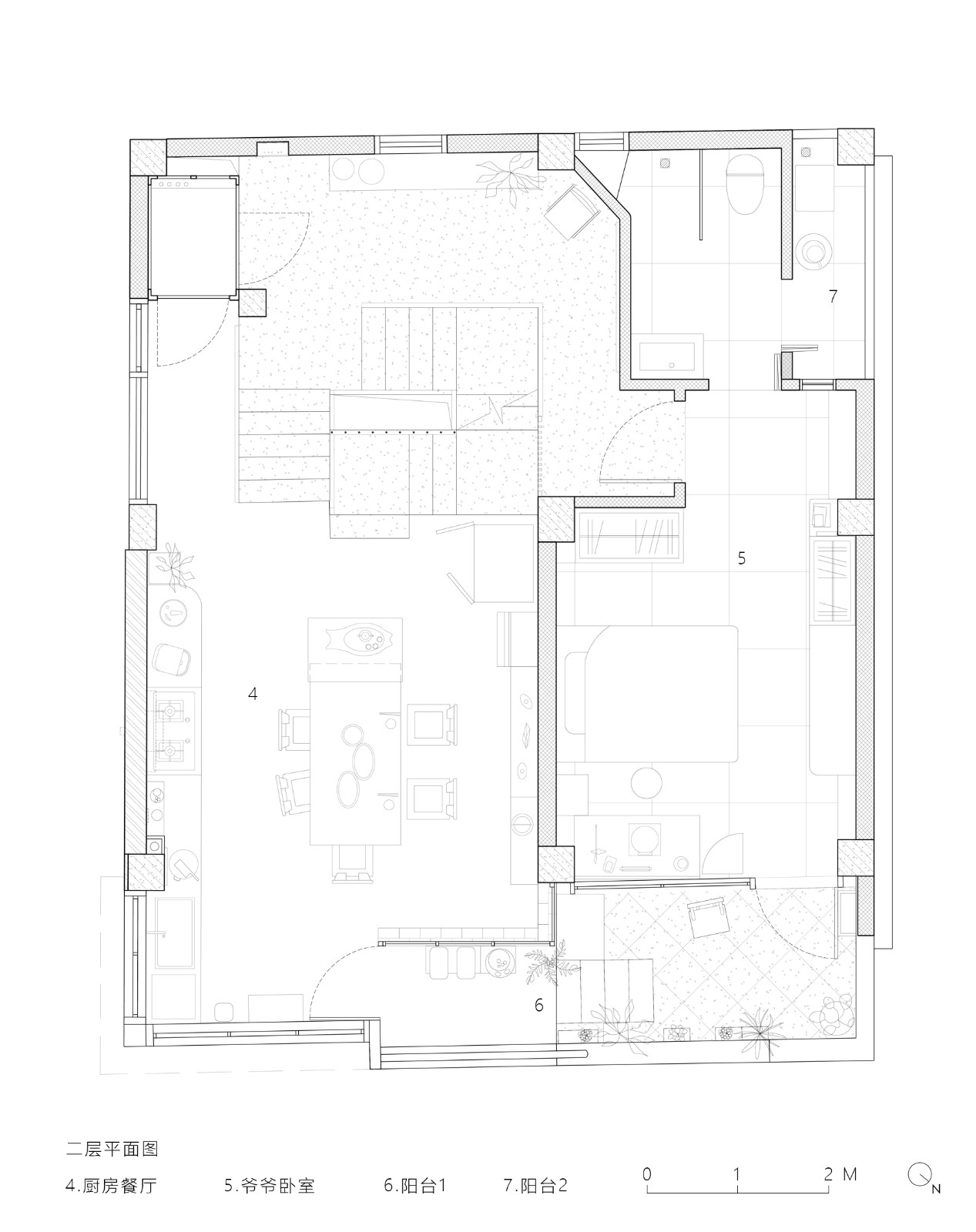
二层是餐厨和爷爷卧室。餐厨用口袋外的1.8米来观景,爷爷卧室则用这1.8米退出了阳台,能从户外走进餐厨。西侧为爷爷单独做了晾晒阳台,也使得A3柱显露。以上关系使得爷爷在家中时常处于游走状态。
项目图纸
▲基地示意图
▲基地位置尺寸
▲分析图
▲一层平面图
▲二层平面图
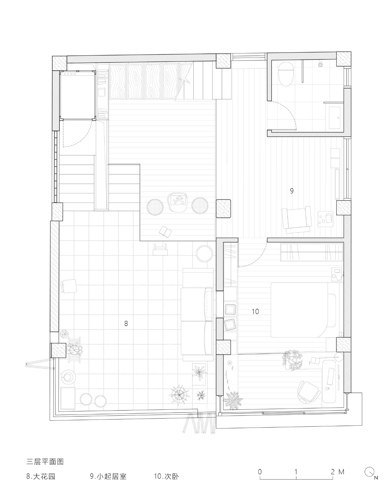
▲三层平面图
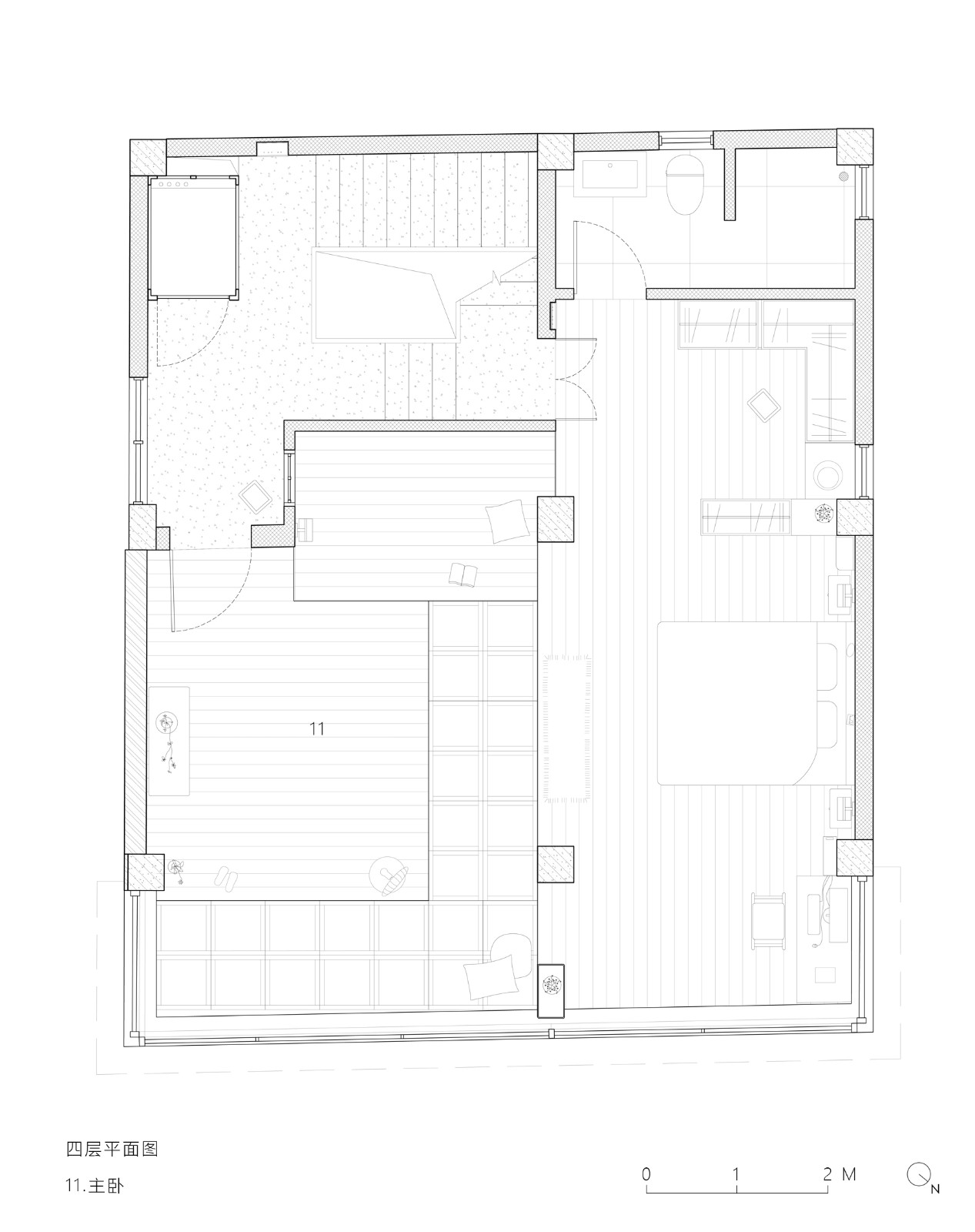
▲四层平面图
▲剖透视
项目信息
建筑师:多重建筑
面积:82m²
项目年份:2023
摄影师:吴嗣铭
主创建筑师:靳远
项目建筑师:王思虹
设计团队:杨嘉琪、颜业奇、陈利、计少敏
总工程师:光叔
工程团队:温工、代工
结构团队:陈朝骏、李满棠
灯光设计:杨嘉琪、王思虹
家具设计:杨嘉琪、王思虹
合作团队:棉哥(木作)、崔老板(清水砖墙)、辉哥(电工)、铭哥(水工)、张瑞华(水电)、林常敏(水电)、水哥(木地板)、喜哥(水磨石)、李总(灰泥)、陈工(门窗)、李工(铁艺)、明哥(花艺)
评图指导嘉宾:米笑
业主方:明哥、兰姐
电梯:西柏思
风热模拟分析:许哲嘉
地点:佛山


BIM建筑网

































