由备受推崇的隈研吾建筑都市设计事务所(KKAA)设计的 UCCA 陶美术馆,为宜兴这座以深厚陶艺传统尤其是紫砂陶艺而闻名的城市增添了新风采。宜兴被誉为“陶都”,该地区陶瓷生产历史悠久,是建立专注于陶艺博物馆的理想之地。因此,该博物馆选址于曾经的陶艺文化中心,四周环绕着众多工厂和工作室。此项目与该地区的广泛再开发计划相契合,旨在打造一个充满活力的陶艺文化中心,其中包括工作室和作坊,同时保留昔日陶艺工厂的遗迹。项目以陶瓷面板包裹的波浪形屋顶为特色,成为这座中国城市的标志性雕塑建筑。
在设计 UCCA 陶美术馆时,隈研吾建筑都市设计事务所的团队从一座名为蜀山的山体中汲取了灵感。据说,蜀山受到北宋著名文学家苏东坡的喜爱。此外,这座以陶板包裹的建筑还向有着六百多年历史的龙窑致敬。建筑蜿蜒起伏、层峦叠嶂的形态设计,旨在模仿山脉的轮廓,进一步融合了该地区的历史与地理背景。在这座山体形态的建筑中遍布开口,与附近的陶艺工厂和运河相连,不仅提升了场地的可达性,还增强了其历史意义。
UCCA 陶美术馆室内采用极具视觉标识的倒置贝壳状屋顶,该屋顶通过虚拟球体塑造,并由四层木格栅梁支撑。这些梁既承担结构作用,同时营造出轻盈动态的内部空间。梁的排列影响着博物馆内的移动路径和视线,引导访客深入探索建筑内部,与展品互动。
UCCA 陶美术馆的外立面是与当地工匠合作开发的,确保设计能够反映宜兴陶艺文化的精髓。建筑外立面则采用了手工烧制的陶板,呈现出自然渐变的窑变色彩,其色彩灵感源自宜兴著名的紫砂。这种设计方法产生了丰富多样的纹理和视觉表现,使访客能够以切实的方式感受到陶艺的“温度”。
项目图纸
△总平面图
△总一层平面图
△二层平面图
△立面图
△立面图
△立面图
△立面图
△剖面图
△剖面图
△剖面图
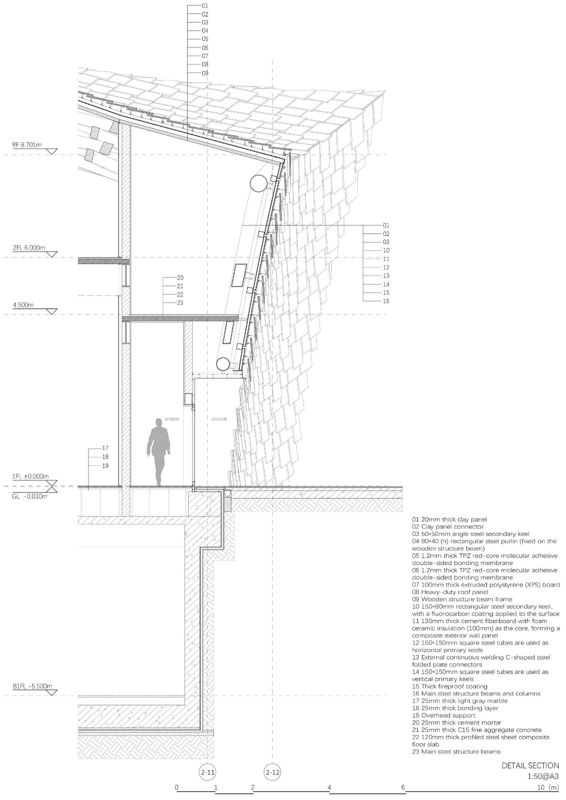
△结构大样示意图
△结构大样示意图
△结构大样示意图
△分析图
项目信息
建筑师:隈研吾建筑都市设计事务所
面积:3437m²
项目年份:2024
摄影师:田方方,加纳永一
设计团队:寺﨑豊、鲍梦娴、刘琪睿、沈屹雯、罗盘、黄小山、叶子萌 (绘图)
照明顾问:予舍予筑
建筑施工:江苏滨建集团有限公司
结构工程:苏州昆仑绿建木结构科技股份有限公司
地点:宜兴

BIM建筑网




































