设计从一棵树开始。我们希望创造一个童话里的大树空间,孩子们上上下下的攀爬、对望,排排坐在大台阶交谈,或是去发现一个个树洞所看到的不同的世界。树洞是最原始的空间形式之一,也是孩子对空间最纯真的感知,希望这里成为孩子们梦想开始的地方。
阳光充盈的中庭,曲面将孩子环抱,既是空间的中心也是探索的起点。中庭流畅的的曲面形态和肌理,让孩子们宛如置身河谷中央。亲和温暖的木纹肌理,让每个孩子随性触摸。不同大小形状的洞口,是发现好玩之事的前哨。连接中庭和各个功能房间的走廊,互相对望的楼梯窗口,为孩子创造更多的活动惊喜,是空间中的缓冲和联系层,也作为“大树”这个意向中“枝杈”的存在。
每一个洞口都可能有一个探出头来张望的小朋友,他们不需要一个个符号化和标语化的建筑体验,他们需要的是一个可以探索的小世界。多功能厅溶洞般的入口,和中庭及走道相穿套,激发孩子们探索的欲望。班级空间是完整的方块不做划分,色彩是低饱和度的暖灰,我们希望“留白”的活动空间和“留白”的色彩空间,为孩子布置和装点自己的教室提供无限可能。
从一棵树,到一个树洞里的造梦空间,长大的我们已经无法再用“孩子”的眼光看待世界,但是我们愿意创造一个个的梦境让“孩子”成为一个自己曾幻想,却未能成为的人。
项目图纸
△手绘意向图
△手绘分析图
△手绘分析图
△手绘分析图
△手绘分析图
△基地示意图
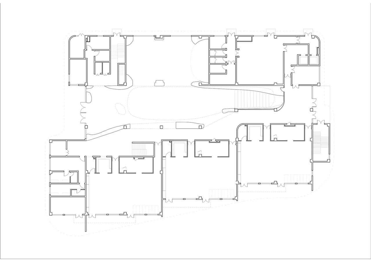
△一层平面图
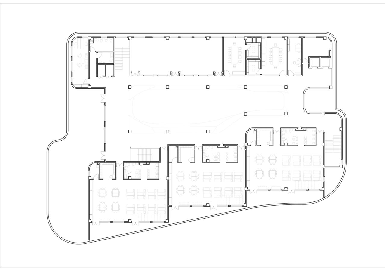
△二层平面图
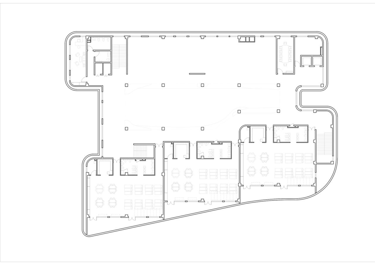
△三层平面图
△剖面图
项目信息
建筑师:ARCPLUS ECADI Shanghai Xian Dai Architectural Decoration & Landscape Design
面积:4182m²
项目年份:2024
摄影师:梁山
主创建筑师:刘海洋
方案设计:刘海洋,杨子江 ,于汶卉,程方,林子杰,张逸欣
深化控制:上海共谷空间设计有限公司
施工图设计:铭扬工程设计集团有限公司
施工方:上海发博建设有限公司
委托方:上海齐诚宣企业发展有限公司
地点:静安

BIM建筑网































