本项目位于武汉市东西湖区临空港大道以西地块,采用六馆一中心模式建设,功能包括剧院、博物馆、图书馆、档案服务中心等。总建筑面积15.26万平方米,容积率0.62,绿地率30%,配套建设机动车停车位1537个。项目以生态聚落为设计理念,采纳绿色建筑策略,营造出极具视觉冲击力的空间效果。
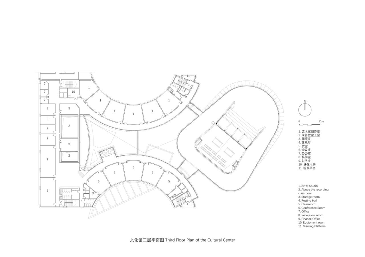
本项目打破了以单体建筑为中心的惯例,采用建筑环绕“都市花园”的布局,在演艺厅、报告厅、临时展览空间各馆之间的公共空间均实现开放共享,不仅提升了公共空间的质量,还降低了维护成本,打造了一个开放、共享、市民化的运营模式。“都市花园”连接了生态聚落,并融合了影剧院、创意办公、培训展览的文化元素,与北侧的城市绿带和西侧的公园绿化相衔接,形成了一个完整的城市绿色网络,为市民打造了一个充满活力的“市民客厅”。
项目充分利用被动式绿色设计,各馆环绕中央“都市花园“进行自然采光通风,多样化的廊下空间有效减少了能耗,实现了环保、节能、减排,与自然环境和谐共生。
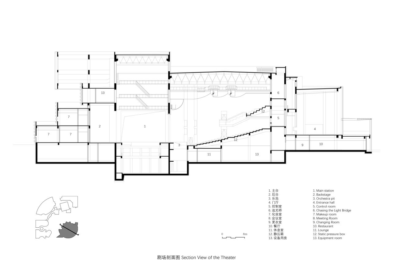
设计团队从方案设计阶段起,便全面统筹了区域规划、建筑、景观、室内设计、照明、软装以及视觉系统,确保了设计的整体性和协调性。建筑结构上采用悬臂钢桁架悬挂吊柱方案,满足了超限高层建筑的要求,兼顾了外形与内部空间的逻辑统一。团队运用先进的BIM技术,实现了建筑、结构、机电等专业的协同设计,确保了项目的高质量完成。
在社会效益方面,本项目已成为武汉的网红地标,吸引了众多年轻人前来打卡,显著提升了城市的文化品味,带动了周边地区的经济发展,促进了文化创意产业的繁荣,为武汉市经济增长注入了新动力,以其卓越的设计品质和精细化全系统控制,将武汉东西湖文化中心打造为武汉文化建筑的新地标。
项目图纸
项目信息
建筑师:中国院大器工作室
面积:152600m²
项目年份:2023
摄影师:存在建筑-建筑摄影
主创设计师:曹晓昕
建筑设计:曹晓昕、詹红、周龙、尚蓉、孙雷、孙超、李颖、王刚
结构设计:毕磊、成博、何喜明、孙泽人
给排水设计:董超
暖通设计:郭晓静
电气设计:许冬梅
智能化设计:唐艺
景观设计:余浩
总图设计:李爽
照明设计:丁志强
经济:杨冠杰
施工方:中国二治湖北分公司
委托方:临空港投资开发集团有限公司
地点:武汉

BIM建筑网































































