项目前情
项目位于北京市昌平区流村镇溜石港村,地处村落的西侧的最高点,前身是一个闲置的农家住房,两侧均有民宅,由于地势较高,正南方可以看见溜石港村的大片山景。
△项目位置
在此之前,后院乡旅集团已在此建成运营后院·溜石港精品民宿——一个拥有九间单房的酒店式民宿。
为了丰富空间产品类型,填补院落产品的空白,设计启动后院·溜石港1号院改造项目,产品定位在一个能够容纳3-4人住宿,6-8人用餐的家庭式乡村民宿小院儿。
△后院·溜石港精品民宿
由于在后院·溜石港的建造及运营过程当中投入了大量资金,本次的改造的重点主要集中在:
1. 如何进行空间产品差异化设计;
2. 如何利用有限的资金和时间达到院落改造的目的。
改造策略/建筑
项目原址仅有一栋北房,为上个世纪80年代典型的北方民居结构,整体框架由木头搭建,红砖砌筑而成,屋面是红色的粘土盖瓦,原始的木梁、椽子、花窗得以完整保留,极具乡村气质。
△项目改造前现场条件
考虑到施工周期以及资金,设计决定尽量的利用现场条件进行最小内容的改动。
△项目改造轴测图
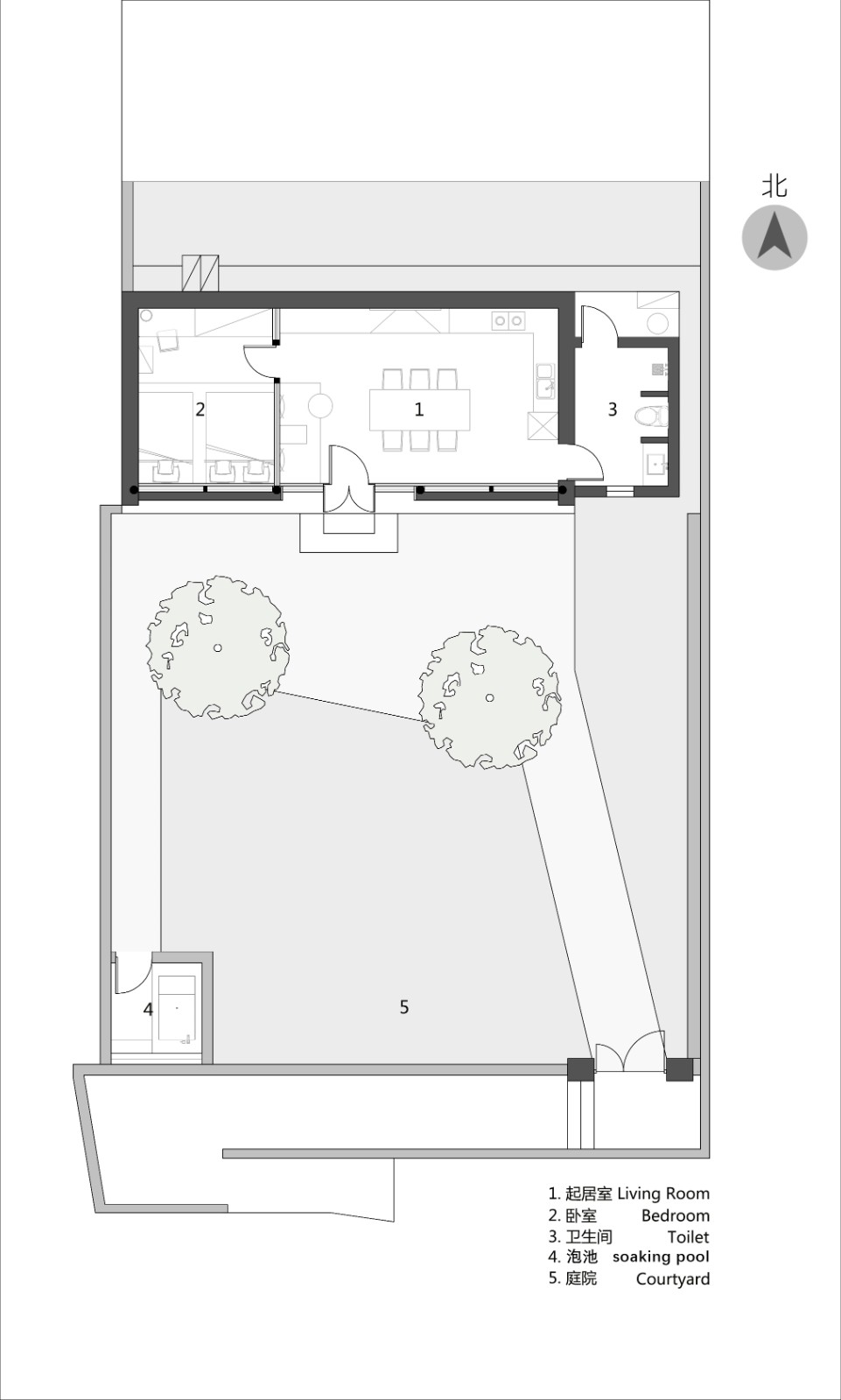
在空间维度上,由于现有建筑面积有限,我们在东侧利用房屋与院墙之间的夹角增设卫生间,不占用现有的房间面积;在西南侧加建泡池房,增加院落的产品功能属性;南部连同泡池房外墙面一起,筑起围墙和院门,形成一个仅有一间北房的围合型院落。
△项目改造后院落
由于整个院落的景观面均在南方,南部的围墙的上半部由玻璃砖代替,既隔绝了近处杂乱的屋面,远处的山脉也透过玻璃砖被完整的呈现。
△项目改造后院墙
院内的植物仅保留门前的两颗柿子树并修筑水泥平台,用于连接入口及泡池房,其作为北房的空间延展,天气好的时候躺在院子里、躺在柿子树下,看着远山、白云,围炉煮茶亦或是下棋聊天,是光连想象都会觉得格外惬意的乡村时光。
△项目改造后院落
改造策略/室内
△项目改造前室内条件
我们保留了原始房屋内被横梁及花窗切割而成的两个空间,东侧两跨间为起居室,设置厨房、餐厅以及座榻,可供6-8人同时用餐;西侧一跨为卧室,原空间中的火炕则被保留继续作为床,设置一张1.5m和一张1m的床垫,可供3人居住。
△建设过程
透过泡池房的高窗,远处的山景形成了一幅天然的流动画卷,一边泡汤一边看景,是我们想要营造的空间场景。
△北房起居室
室内改造的难点,在于如何既保留原建筑的花窗又增加功能性的玻璃门窗以达到抵抗冬天零下10度的气温和强烈的北风。
△花窗内加断桥铝门窗示意图
我们在南墙的梁柱框架内新增了一组木制框架及矮墙,用于向内加建并固定一层断桥铝门窗,这样,内里的门窗起到了功能性的作用,原有的木制花窗也得以完整保留。
△北房起居室
剩余空间的部分则修旧如旧 —— 原木梁、椽子、门窗全部打磨翻新,以天然木色为主基调;原墙体铲掉墙皮,保留初建房时的夯土稻草漆,所有管线均裸露走明管;为了保证冬天室内温度,地面做地暖并回填水泥。
△建设过程
硬装全部完成,光线透过花窗晒了进来,北方冬天的阳光正好,晒得整个屋里都暖洋洋的,是北方山居民宅独有的空间感受。
△北房起居室
△北房卧室
全屋从软装质感、灯光色彩、饰品材质,无不充满怀旧质朴氛围,原房中有一红色木箱也得以保存,作为桌面留在房内,也是在地主义的另外一种呈现。
△北房卧室
被重新修缮后的老房,既具备了岁月的痕迹,又增添了生活的温度,我们希望修旧如旧的他,能带给这里的客人更多的乡村回忆,也能让更多的人走进乡村、认识乡村,从而更好地进行乡村建设和发展。
项目图纸
△项目改造后平面图
项目信息
项目名称:后院·溜石港民宿1号院
项目位置:北京市/昌平区/流村镇/溜石港村
建筑面积:61.5㎡
院落面积:212.0㎡
设计单位:GW空间设计
设计/竣工:2024.09-2024.11
酒店管理:后院Rareyard精品民宿
项目摄影:鲁飞、任恩彬
联系设计:gwdesign@yeah.net
 
            
 BIM建筑网
BIM建筑网



























 
			



 
			