森野长廊位于野岛⽂化⽣活社区的C区,社区前身是建于1951年的东江粮酒厂,在保留原有18栋楼群及景观肌理的基础上,自2019年开始改造后逐渐成为惠州最具活力的文化社区。BDSD吾界设计与野岛的故事始于2021年,我们在这里打造了一个独立书店——上野书屋。2022年,我们再次对野岛公共花园“野趣绿洲”完成更新,到2024年又进行了野岛C区公共区域的改造。
本次改造设计以“森野长廊”为主题,用新旧交错的方式延续场地精神和氛围,并以新的建构体打造全新的记忆点,让人们在穿行中感受新与旧的碰撞与融合。在点、线、面三个维度上将景观、廊道、广场、建筑进行链接,创造出不同尺度的开放空间,实现横向与纵向的丰富层次和界面。
连廊:构筑流畅的动线
70多年前的老厂房粗犷而厚重,残留的建筑相互独立缺乏系统性,要将建筑和商业空间结合,让人产生漫游的乐趣,需缝合现有场地的割裂感,一面是考虑原始建筑条件,一面是弥补老建筑与新的应用场景之间的差距。
保留,是对历史建筑改造最好的设计表达。为避免不必要的拆改,BDSD吾界设计重新梳理动线,以轻量化的空中连廊与上下的楼梯串联空间,带来整体的流畅体验,在动线上拓展单一的漫步功能,优化了二层空间的可达性,兼具了老建筑的保护和创新。
台阶:微小尺度的细腻重塑
C区靠近园区出口的一侧在改造前缺乏吸引力,游人很少通过它进入整个园区。BDSD吾界设计希望通过出口的改造,让建筑与行人通道一体化,将出口处的几栋建筑串联在一起,既丰富游园体验,又能吸引游人前来打卡。开放式的功能既作为通道,又可以成为台阶广场,满足节假日时的庆典所需。踏上台阶,建筑间开阔的道路在轴线上与标志性的老烟囱相连接。
野性:自然的粗犷
设计师希望于无形中呈现自然的魅力。保留原来高大的植物,打造一处让植物可以随意生长的荒野花园,自然的无序与人工的精巧几何相碰撞,加强了老建筑的氛围感。工业风所凝固的时间与自然的四季枯荣交织,现在与未来逐渐融合。
“一个生长中的生活街区”,是BDSD吾界设计在野岛历时4年的更新中持续秉持的宗旨,空间是一个容器,它可以承载人们的喜悦、激动与惆怅,可以赋予历史与老建筑新的活力,每一次的设计更新只是个起点,留出了成长的可能性才是把空间真正还给人。
项目图纸
△基地示意图
△改造顺序示意图
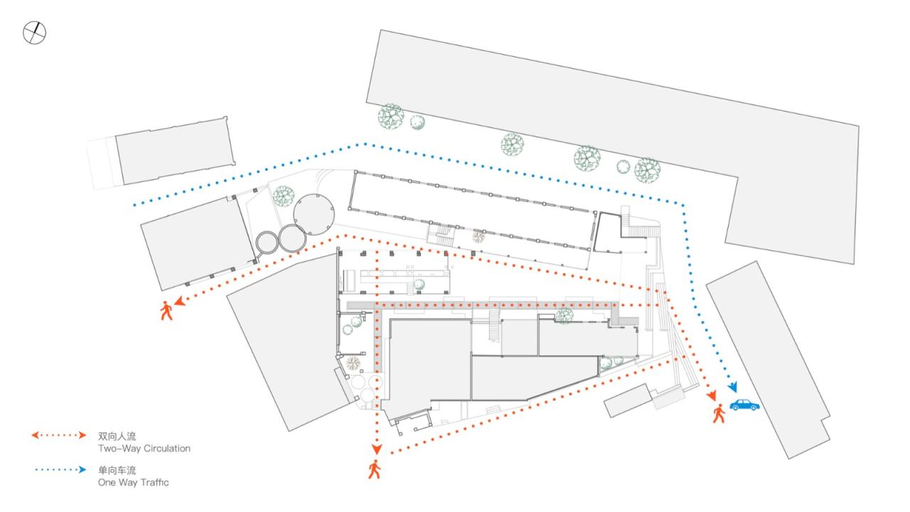
△流线图
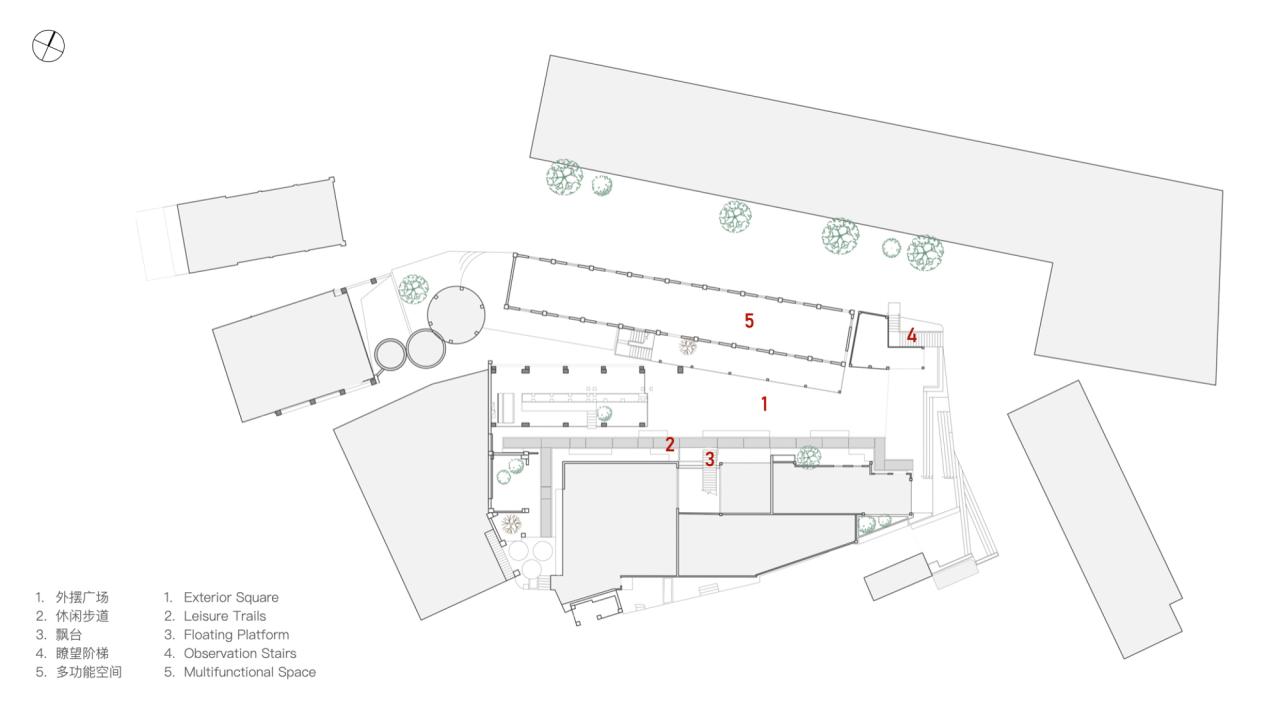
△平面图
△立面图
△立面图
△立面图
项目信息
建筑师:BDSD 吾界设计
面积:2000m²
项目年份:2024
摄影师:Greenimages
主创建筑师:林文科、孙征远
设计团队:潘美嘉、何海权、邬锐康、徐朝阳、苏日贤
委托方:野岛文化生活社区
地点:惠州

BIM建筑网


































