项目缘起
梨木台风景区地处天津最北端,是国家地质公园、国家森林公园、国家4A级旅游景区。这里峰峦叠翠、峡谷雄险、林海秀幽、溪水长流,素有“天津的神农架”之称。90%以上的森林覆盖率使这里成为名副其实的天然氧仓,是周边地区游客休闲徒步的重要目的地之一。2021年夏天,业主与景区达成合作,计划将位于景区入口附近的一处休闲驿站打造成多业态的民宿综合体。莘野佚筑团队也在这个时候收到业主的邀请,负责该项目的设计工作。
△项目概览
△项目概览
作为景区内的第一家民宿,得天独厚的自然景观资源成为了项目的先天优势,但同时景区人流量大带来的热闹的气氛与民宿自身对私密宁静氛围的要求之间存在矛盾,加之建设成本有限,设计工作充满挑战。我们希望通过对现状空间及环境的创新规划,营造独属于这片场地的场所感,为旅人提供亲近自然的独特旅居体验,使之成为每一位旅人心中那处远离喧嚣、充满野趣,又适合现代人生活的身心疗愈场。正如“水雲乡”这个名字的寓意一样:枕山而卧,倚水为眠,不负这般胜景。
△项目概览
△项目概览
场地策略
时隔3年,第一次到现场踏勘的画面仍然记忆犹新:从山门一路曲折而上,伴着水声潺潺,在经过一段林荫路后,视线豁然开朗,颇有五柳先生笔下桃花源的意味。项目用地依山势展开,整体西高东低,被南北两座青峰环抱;一条溪流从场地中央涓涓而过,天然地划分出南北两个区域,一座木桥悬于流水之上,充满诗情画意。小溪北岸,蜿蜒而过的是游客登山的必经之路,路旁有一大一小两栋闲置的二层建筑。在与业主充分沟通后,大家一致决定对现状建筑进行改造,做为客房区域,并在隔岸相望的空地上布置配套商业业态,利用民宿的区位优势,将客群拓展为景区全部游客,将其打造为登山路线上的重要补给节点。
△场地区位和场地现状条件
△总平面图
△老房子的新生
1. 现状条件
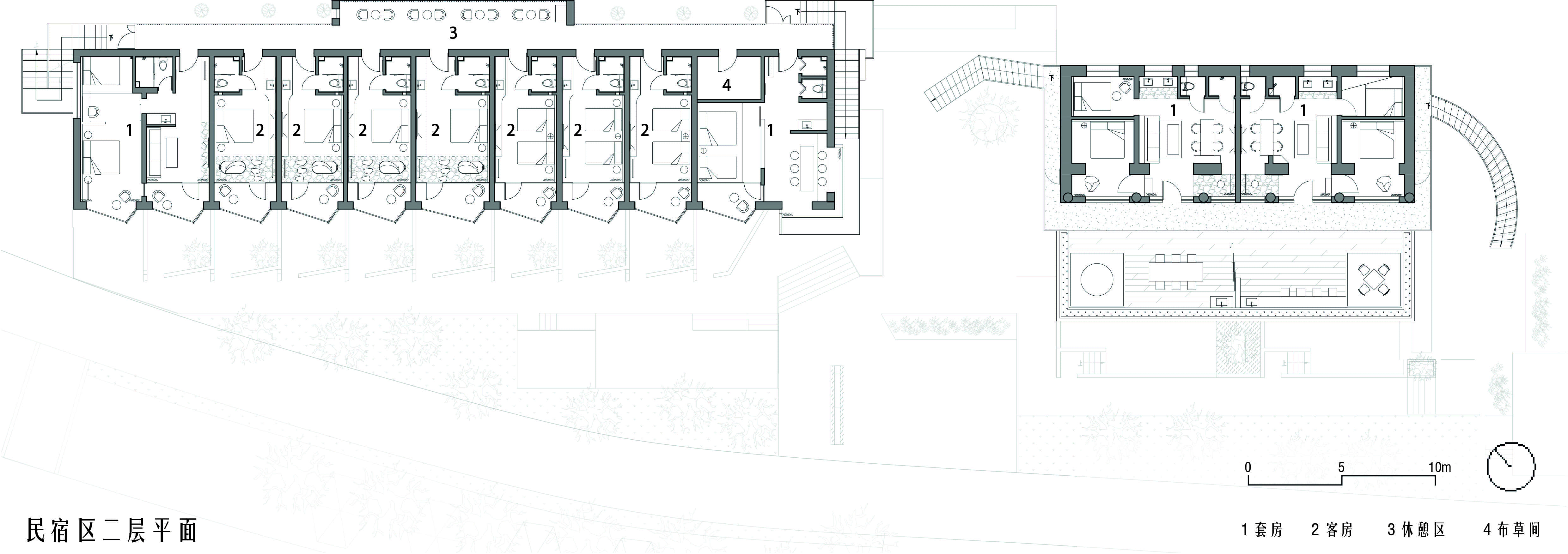
现状西侧主楼长约40米,入口位于楼体中央,紧邻楼梯间。左右两侧并列布置房间,每间面积约二十平米,通过北侧走廊进入。房间窗户虽面向景观但尺寸较小,且隔墙以承重墙为主,不能拆除。楼体基座与道路存在高差,楼前是一片草坪。东侧则为一栋石头小楼,原本功能是餐厅和后勤辅助用房,空间分隔凌乱。由于靠近山体,经过长时间雨水冲刷,使得房间阴暗潮湿。原本漂亮的石头立面也在时间的侵蚀下,出现脱落的情况。这样的现状条件与理想中的客房有着很大的差距。
2. 建筑策略
对现状建筑的改造从功能梳理开始。我们将两栋建筑之间的草坪区域进行部分铺装,形成民宿的落客空间,并将接待厅布置在主楼最东侧。设置大尺度台阶并转向客人到来的方向,呈现出欢迎的姿态,同时增强入住仪式感。将建筑前场空间抬高,作为民宿客人的专属休息区,并通过植被绿化与登山道路间隔,完成与景区客流的分离。取消主楼内部楼梯间,在东西两侧增设外挂楼梯,释放室内空间,并形成东西贯通的环形动线。将一、二层原有北侧走廊与房间打通,扩大客房面积。家庭亲子客房被设置在拥有较好的通达性的一层。将南侧窗台拆除,作为新的客房入户门,并在门前设置围墙,为每间客房提供独立的入户庭院。围合建筑与山体之间的消极空间,将其打造为一层客房的专属的观景庭院。二层房间则因其良好的景观视野及私密性,主要安排情侣房及套房。在建筑北侧二层外挂走廊,保持北向入户,将景观留给客房。同时,对南侧幕墙做内退处理,创造开放的阳台空间,提升客房品质。东侧小楼则在现有平面基础上,重新规划布局,将一层南侧空地抬高作为庭院,并在屋面植入观景露台的概念,打造四间高品质套房。
△原始平面图vs改造后平面图
△改造后的老房焕然新生
△入口仪式感
△主楼正立面
△夜幕下温馨的氛围
入目皆为绿,灵动自然,我们希望建筑以一种谦逊的姿态融入其中。毛石、木材、夯土、稻草、木模混凝土……材料朴素的质感,与山林的绿意交织在一起,如同一首协奏曲,叙述着野趣盎然,将人们的注意力引导至一件件的小事上——荡漾的波光、摇曳的树影、淙淙的水声,平凡但美好。同时,我们在主楼立面上嫁接一组斜向竖格栅,即作为雨檐,也为客房提供隐私,与连绵的山体相呼应,赋予建筑起伏的韵律感。二层东侧外挑的景观飘窗,好似一盏明灯,指引旅人归家的路。
△改造策略
△自然质朴的材料
△石头立面保留场地记忆
△围墙与隔栅为客房提供隐私
△节奏与韵律感
△隔栅与连绵的山体相呼应
△自然、阳光与几何线条
3. 空间体验
游走体验的营造一直以来是我们设计工作中非常重要的一部分。我们相信空间是拥有情绪的,影响着每个进入其中的人。穿行于建筑之中,身体的感知完成从广袤山林到舒适房间的过度,心绪也逐渐归于平静。沿着楼梯,拾级而上,视线先是被一堵墙限定,突然出现的挑台将注意力引向楼侧茂密的枝桠,一条石阶隐约其中。转身步入走廊,刻意压暗的色调放大自然的绿意,温暖的木隔栅使绿的清冷得以被中和,镜面材料模糊了现实的边界,营造出虚幻的错觉感,微光照射下,树影轻摇,洒满了整个空间。推开木门,移步房间,山林美景被通透的景窗装裱,四时更迭间,渲染出一幅幅生动的画卷。温馨惬意的客房氛围让每一位远道而来的客人卸下旅途的疲惫,身心得以放松下来。顺势坐到窗前,浮光掠影间,“我”已融入自然,生活的琐碎淡去,一切仿佛在此刻凝滞。
△楼梯是游走体验的一部分
△楼梯回望
△茂密的枝桠,一条石阶隐约其中
△镜面营造出虚幻的错觉感
△树影洒满整个空间
△山林美景被景窗装裱
△景观飘窗扩展室内空间
△消极空间转变为观景庭院
△木质提供的温暖氛围
△温暖的木质中和绿的清冷
△一棵老树的入画
“江山风月,本无常主,闲者便是主人。”我们理想中的民宿不仅仅是旅途中的容身之所,更应该为旅人提供一种有别于都市生活的体验,是身心的疗愈场。伴着微风,泡壶热茶,期待听一场山雨,将注意力聚焦于当下,感受曾经被忽略的美好,这或许才是生活该有的样子。
△温馨惬意的客房氛围
水的意象
在小溪南岸商业区的设计上,我们希望打破传统“商业街”模式,以一条柔美的水带为线索,通过一座座拱桥连接,将咖啡吧、餐厅、农产品市集、休闲茶馆等功能业态进行串联,并结合场地高差关系,营造一座“可游、可观”的山间小游园,与对岸民宿建筑遥相呼应。
△水是串联功能业态的线索
△夜幕下的商业区
尾声
曾有很多朋友向我们提出疑问,为何将工作室命名为莘野佚筑,这里面有何含义。其实在古文中,莘野指代隐居之所,而建造之人可能就是居于其中的隐者,是位佚名之人。这表达了我们的一种营造价值观,即以一种顺势而为的方式介入每一个项目,不强调对建筑师个人意志的表达,努力营造与内心共鸣的空间。“水雲乡”项目是对这一思考宝贵的经历的实践,也更加坚定了我们的实践方向。
从初次踏勘到项目落地,历经两年时光,我们与业主、施工方一起见证了这片土地的春夏秋冬。施工初期移栽的樱桃树,如今已经可以与到访游人分享它努力生长后的果实了。
项目图纸
项目信息
项目名称: 水雲乡
项目设计时间:2021.07-2022.03
项目建造时间:2021.09-2023.06
占地面积:10亩
建筑面积: 1750㎡
建筑设计:莘野佚筑设计工作室
室内设计:莘野佚筑设计工作室
景观设计:莘野佚筑设计工作室
联络人姓名:周柏岑
公司所在地:上海|天津
设计团队:汪俊成、周柏岑、闫涛
小红书账号:8190654246
项目地址: 中国,天津,蓟州区,下营镇船舱峪村
委托方(公司名称): 季忆文旅产业发展(天津)有限公司
主要材料:木饰面(塔唯),断桥铝门窗(金鹏),镜面不锈钢板(钿联)、毛石板、夯土板、木模混凝土板、竹席、艺术涂料
空间摄影:刘国威
项目类型:建筑/室内/改造
 
            
 BIM建筑网
BIM建筑网












































 
			



 
			