随着深圳人口和城市的快速增长,城市建设用地和发展空间变得日益紧张,导致中小学及幼儿园学位供应面临巨大挑战。为了应对土地资源有限、人口规模扩大以及对高质量基础教育的需求,如何在集约用地的基础上设计符合未来教育发展且“有趣”、“高颜值”的高密度校园成为热门议题。设计师通过创新的平面布局、密中有疏的活动空间,以及与自然相融合的“谷地游园”设计,为孩子们创造了一座可以躺在天台数星星的“校园山谷”,在潜移默化中激发孩子的想象力和创造力。
深圳市龙华区清泉外国语学校初中部是一所24班初中学校,总建筑面积约29266平方米,位于龙华区清泉街道。学校以泉文化为基础,以“清·活”为办学理念,旨在遵循教育发展规律,构建风清气正的校园文化,培育求真致知、清雅向善的学生。然而,在巨大的城市进程中,开阔的山川树林逐渐被钢筋混凝土所取代,人与自然的链接日渐薄弱,在追求高质量教育的过程中往往忽略了孩子们的精神追求与心理健康。
因此,设计师结合学校的办学理念在校园设计中更多地强调自然属性,通过丰富整个校园趣味空间缓解孩子们的学习压力,让他们在充满阳光与野趣的校园里快乐成长。学校原始地块呈不规则梯形,项目北临清龙路,南接永淳路,东至龙华大道,西至和平路,用地面积为14589.7m²。项目地形存在高差,最大有7.1米,整体呈西北高,东南低的状况。结合场地高差,在用地红线边缘放置两栋六层教学楼,解决基本体量问题,并把底层架空,营造更加开阔的首层视野,丰富校园建筑空间体验。
在两座教学楼中间设置空中图书馆连接两侧教学功能,通过建筑退台创造连续的屋顶花园并与操场空间形成有机的连接。依据地势高差顺势而为,在南北建筑体量之间形成“谷地花园”,创造出绿意盎然充满童趣的坡地景观。精心设计的廊道、平台、小木屋、探索洞穴为孩子们在校园活动中创造了一片属于他们的山谷天地,下课时可以放肆玩耍。延绵的两侧教学楼就像两座建筑“山体”在入口处汇聚并悬挑而出形成一个半封闭的开放空间,形成沿街主界面,同时承载家长接送等待区的功能。
将运动场架空成为谷地花园的延续,扩展孩子们的运动场地面积,增设风雨球场,为孩子们在风雨天提供运动场所。报告厅入口藏在室内运动场旁的洞穴里,用童趣的方式重新诠释别有洞天。从屋顶延续的绿色天空观景台、连续精巧的空中漫步道、有趣好玩的谷地花园、丰富的多重功能空间将整个校园高效的串联起来,形成地毯式的校园生态网络。
中午孩子们可以到屋顶花园漫步野餐、放学后在学校观景台看一场红霞满天,让架空层、坡地、台阶、阳台、屋顶、平台——都成为孩子们学习和玩耍的空间,享受校园内愉快的时光。一境希望校园不仅是一个传统意义上教学的场所,还能培养孩子们多元的兴趣爱好,在这里可以听到孩子们的朗朗书声和他们在“绿谷”游园时的开怀大笑,为他们奉献一所与大自然共同成长、有趣、寓教于乐的校园.
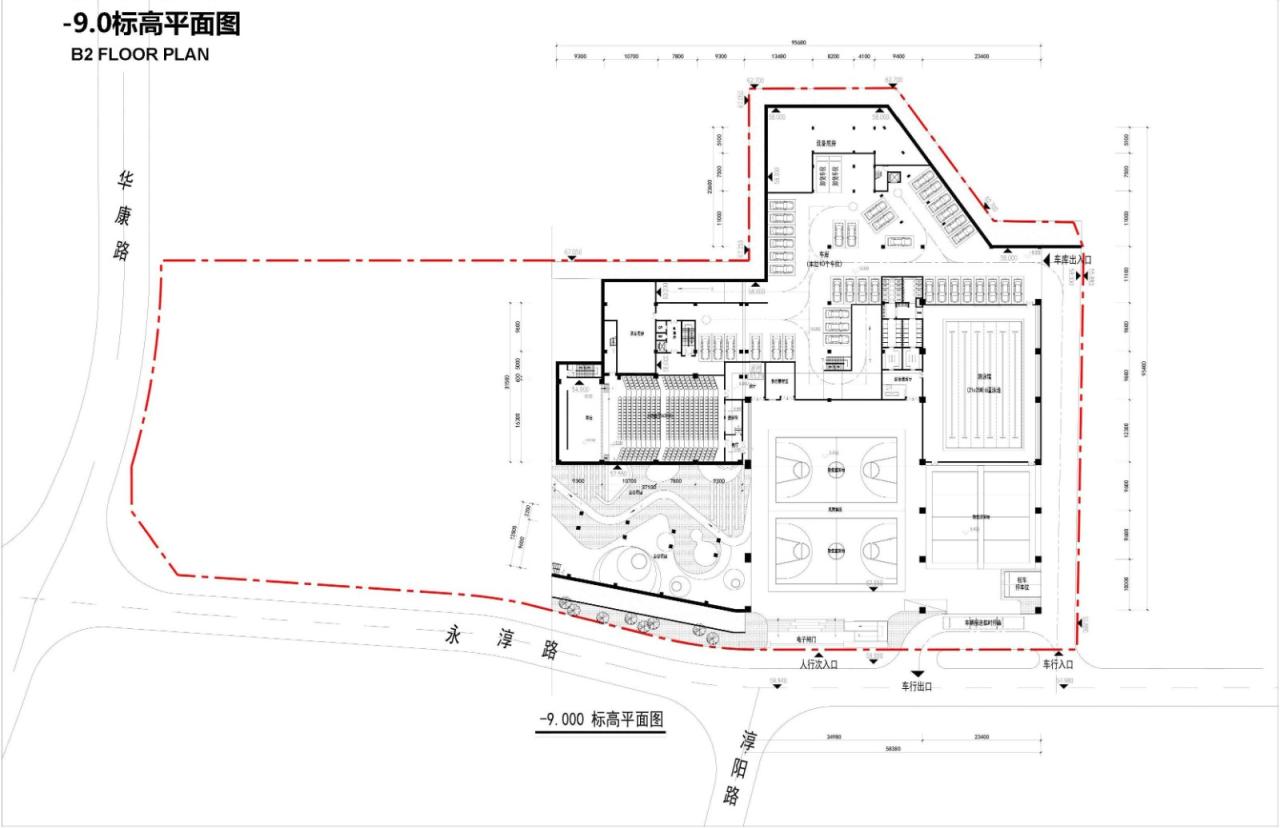
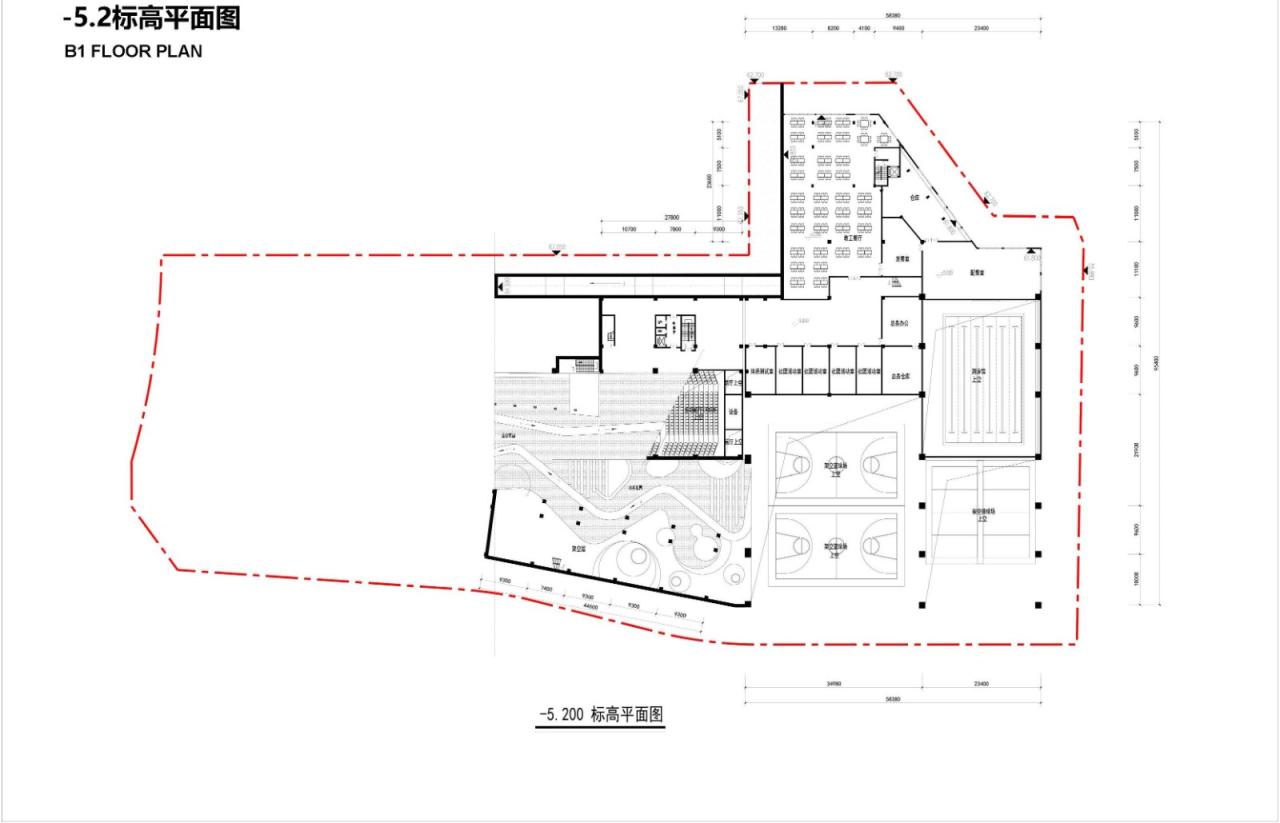
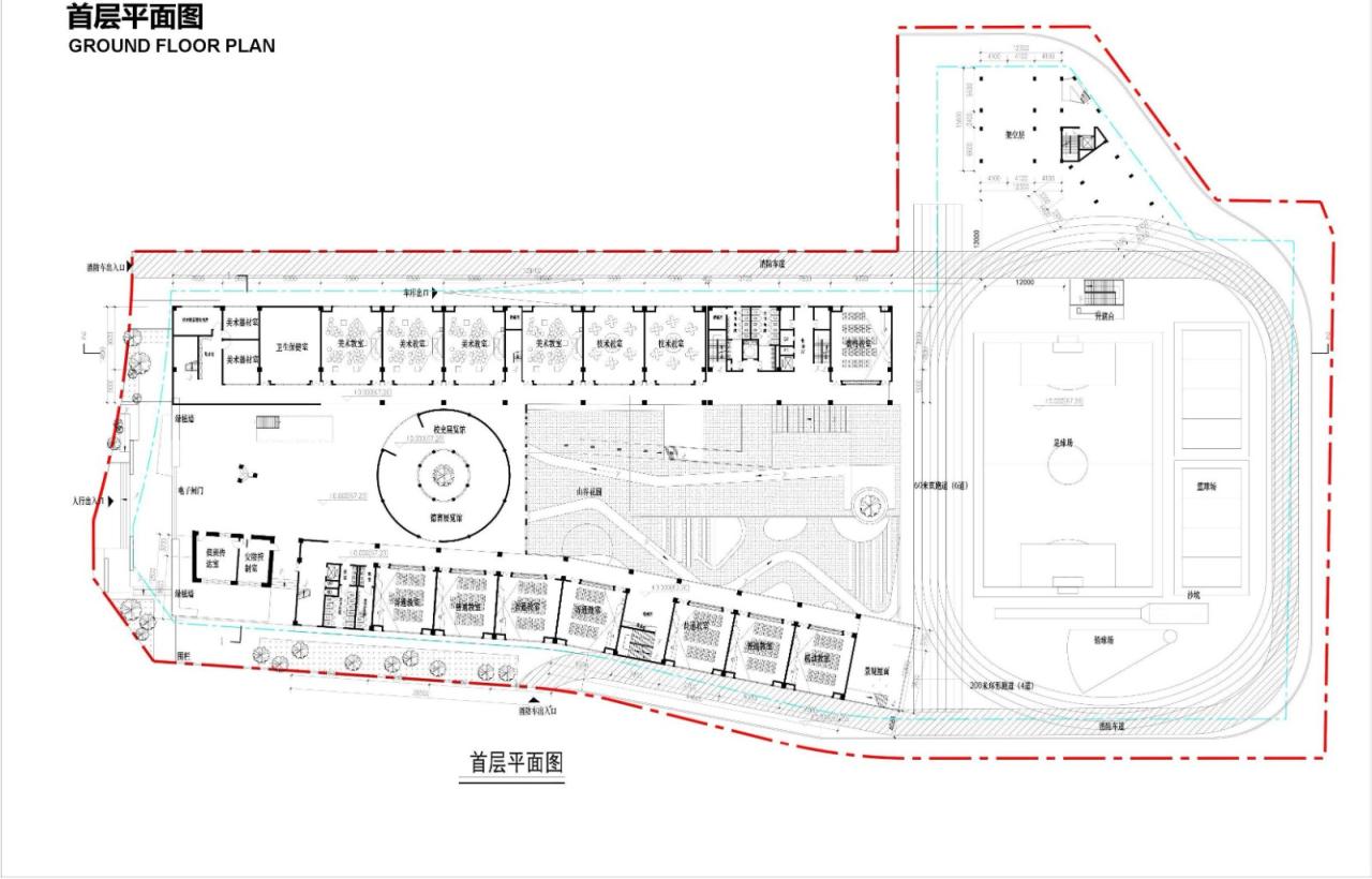
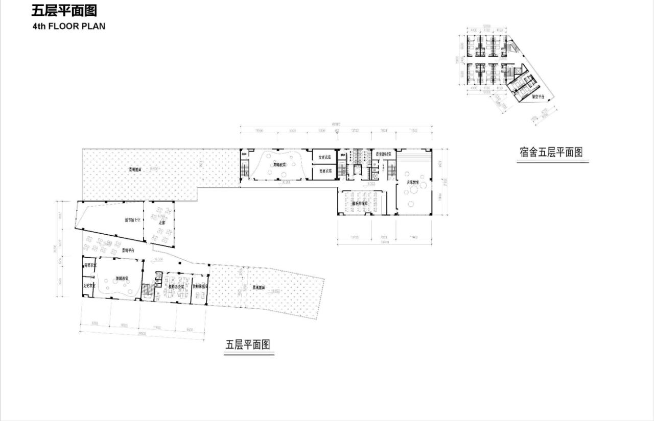
项目图纸
项目信息
项目名称:深圳市龙华区清泉外国语学校初中部
项目类型:建筑
项目地点:深圳市龙华区永淳路(清湖地铁站D口)
建成状态:建成
设计时间(起迄年月):2021
建设时间(起迄年月):2023
用地面积(平方米):14589.7m²
建筑面积(平方米):29266㎡
设计单位:深圳市一境建筑设计有限公司
主创建筑师:何敏聪
设计团队完整名单:肖利军、谢翊、陈日明、刘渝
景观设计:深圳市一境建筑设计有限公司
施工图设计(公司名称): 深圳华阳国际工程设计股份有限公司//深圳市市政总工程总公司
可研单位(公司名称): 深圳市建筑科学研究院股份有限公司
全过程工程咨询单位: 四川元丰建设项目管理有限公司(主体单位)
北京城建设计发展集团股份有限公司(成员单位)
勘察单位: 深圳市勘察研究院有限公司//中国电建集团华东勘察设计研究有限公司
客户:深圳市龙华区建筑工务署
摄影师:林绿

BIM建筑网








































