经过这些年的宣传普及各地方BIM标准的相继颁布,大部分的人不论有意无意,都已经认识到BIM的强大,也或多或少的了解了BIM的相关知识及相关软件。目前在国内BIM相关软件有很多,借助AutoCAD的天然优势,Revit有相当不错的市场表现。很多小伙伴也开始尝试学习。
不过很多同学又会开始困惑:学Revit除了学会建模外,究竟能解决哪些实际问题?
下面本人以Revit为例,从自己的切身体会来说一下BIM解决了设计师的哪些痛点。
刘老师
●国家一级注册建造师(房建、市政)、高级项目管理师、英国皇家特许建造师,擅长项目BIM(系列软件)管理、施工技术管理。
● 知名公司BIM负责人、BIM项目经理
● 可熟练应用各类BIM软件
第一点,解放“指标表”
在方案阶段,我们总会为各类指标烦恼,每调一下方案,都要重算指标,这样繁琐的工作大家都是视如猛虎,尽量远离。每次方案分配工作,都想着不要落到自己头上。这成了每个设计师的一大痛点。
不过,巧用Revit族和明细表可以顺利解决这一点。
以小区规划为例:小区规划的过程,就是布置各类构建族的过程。各类构建布置完成,相当于各类信息已输入完成。而我们需要的“指标表”,只是用“明细表”功能将自己所需要的信息提取出来而已。这样就做到了无论方案怎么调整,都无需手动计算。
当然,其他各类表格诸如门窗明细表、材料做法表、各类构件统计表等等也是如此。


第二点,解放“对图”
相信很多设计师遇到过各种图纸对不上的问题。CAD绘图方式是纯二维方式表达三维信息且数据源头不唯一,造成很多“对不上”问题,比如平面图与立面图对不上,建筑与结构对不上,土建与幕墙对不上。
这就造成了很多对图的工作量,而且由于设计修改频繁及工期的紧张,对图不可能做到“面面俱到”,这就难免造成错漏碰缺,在后续施工过程中,设计师要出很多变更。

但是Revit强大的三维关联设计,一处修改,处处更新,所有数据源头唯一。让最让设计师头疼的设计修改变得简单,不但大大减少了专业内及专业间对图的时间,也尽量避免了因专业间不一致而造成的变更。做到了“设计一体化”。
省去了平面与立面对图的时间。其他专业间协作原理亦是如此。


第三点,“化繁为简”,提高效率
Revit提供了更加灵活的技术手段,让本专业绘图及专业间的配合更高效。
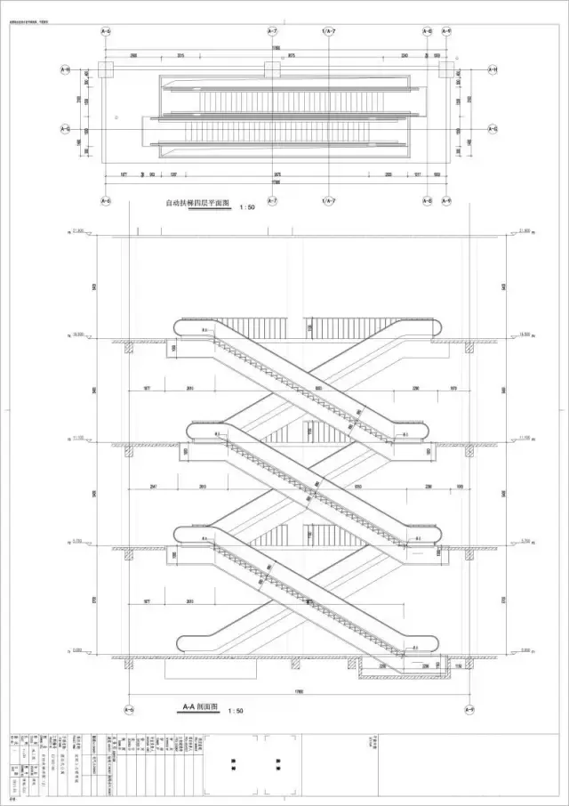
在工作中我们经常会遇到一些这样的项目:单元对称的住宅楼,左右多称的办公楼等等。在CAD绘图过程中,往往会遇到一些麻烦。
比如想节省时间,只绘制一半,将房间名称、尺寸标注等成块后镜像,但是成块镜像后,字体也镜像了。如下图:

用Revit链接功能结合视图样板功能可以有效的解决这类问题,有效减少了重复工作提高工作效率。
链接的应用有效减少了重复工作。以住宅项目为例:


类似技术手段还有很多,比如一些族的使用,既形象直观又提高了效率。
第四点,解放脑细胞,让沟通变得简单
以往在CAD绘图过程中复杂节点的绘制一般靠想象,而且信息往往掌握在本专业设计人员中,比如遇到复杂点,建筑专业要像每个专业解释一遍相关解决方法。


但是BIM的“可视化”使“外行变成内行,内行成为专家,专家可以回家”。虽然这是句顺口溜,但反映出可视化的作用确实意义非常,能够把抽象的、需要大脑思维分析判断的事物转化为视觉直观地表达。
第五点,让建筑的“颜值”一直在线
二维设计中,这个可能是被说烂了的梗。不过如果有更好的方式能避免这种情况,何乐而不为呢。
BIM的可视化不仅体现在三维模型,而且体现在其前后信息的信息的一致性,即生命周期周期。如果前期方案阶段阶段模型能顺利交接到施工图阶段,并由设计师全程跟踪把控,那方案设计的效果就能被有效的控制。

当然,这种“颜值”的把控不止局限于外立面,对于室内设备的安装也是同样的道理。
我们经常见到这样的车库
但是通过在Revit模型里的“预安装”,通过碰撞检测及管线综合后,车库可以实现这样的效果:


以上这些,只是总结了在工作中体会最深的几个点,还有很多功能的效用不在此一一赘述,我们可以在学习中慢慢实践。当然总结这些也不是说CAD不好,BIM技术无敌,Revit软件毫无缺点。只是在多年的实践中体会到了技术的进步给设计工作带来的效率及利益,觉得值得小伙伴们一试。

BIM建筑网