项目背景
项目位于张家口市怀来县的中心城镇——沙城,这里海拔550多米,距离北京市中心120公里。这个地处燕山山脉北侧的县城海拔高、空气透明度好、日照强度也非常高。尤其是冬天,风沙大、太阳亮到人睁不开眼睛。它是内蒙的风沙刮进北京的最后一道屏障,地名也起得直白——沙城。当地人调侃沙城的风是“一年刮两次,一次刮半年”。
除主体幼儿园之外,还有面向社会开放的早教中心部分以及为在北京等地聘请的老师提供的宿舍楼。这三种功能,有需要的时候得互相连通,平时又需要完全隔离。
复合功能与空间组织
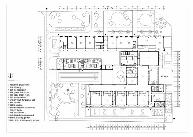
根据这些先决条件,设计通过用一条折线型体量,将场地分成条状肌理,用建筑体量替代围墙,对幼儿园的各个功能进行组织与区分,令面向东侧支路的尺度与相邻的住宅区呼应;早教部分作为对外经营的区域,将幼儿园区域与北侧主干道隔开。
褐色体量部分是有明确功能界限的房间,如早教中心、职工住宅、班级活动室、专业教室、教室办公、后勤服务区等。而白色体量则是公共性较强的活动区域,将其他功能体块连接在一起。
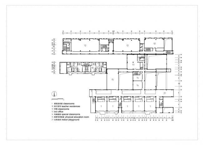
自北向南根据建筑高度限制与日照要求,依次布置早教中心、职工住宅和幼儿园。三种功能之间分别有600mm的高差,这些高差又通过内部庭院的台阶联系起来。即是分隔,也是过渡。
职工住宅和早教中心通过后勤广场分隔,并将儿童的活动场所与这些区域隔离。横跨班级活动室与职工住宅区的体育活动室,有着开阔的视野。孩子们在上体育活动课时,也可以看到操场。
院落产生空间层次
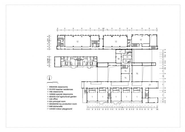
褐色与白色相间的体量之中,植入了若干大小不一的院落,比如入口小院、西侧外挂楼梯小院、后勤院落等。这些院子不仅给孩子们提供了夏天的户外活动场地,也为每个房间都提供了良好的自然通风采光。同时也为从室外与室内空间之中产生了一种过渡及缓冲的空间,增加了空间层次与丰富性。
交通即交流空间
儿童需要通过奔跑、玩耍来释放能量以及认识这个世界,幼儿园的设计规范也一直强调需要户外的班级活动场地。但是在怀来,刮大风的时候,只要张嘴就会吃到一口沙子,连成年人也无法在风中站稳。
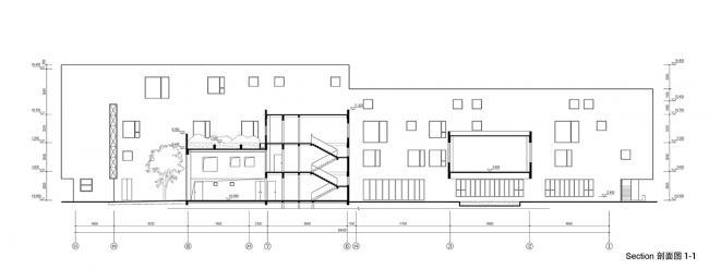
设计方案提出了一个超尺度的、满足全园儿童四季可用的室内活动空间。它颠覆了以往走廊的概念,将该走廊拓宽至6米,形成中庭。长度达80多米,连接15个班级活动室。因为这个空间足够长,幼儿园的小朋友不仅可以在里面做普通的游戏,还可以进行羽毛球等活动,甚至还可以骑自行车。小朋友各个班级之间的活动也可以相互看见,产生视觉听觉上的联系。
室内设计中考虑到过大的建筑尺度会对儿童造成心理压力,在大空间的墙上嵌入一些符合幼儿尺度的小盒子,为幼儿提供了玩耍攀爬的空间。班级活动室外的橙色墙面下的小柜子,既可以用来存放孩子们室外穿的鞋,也是他们玩累了坐下来休息的小凳子。
图纸
一层平面图
二层平面图
三层平面图
轴测图
东立面图
模型
剖面图
项目信息
项目名称:莱佛士幼儿园及早教中心
项目地点:河北省怀来县
用地面积:11850㎡
地上建筑面积:10044㎡
地下建筑面积:550㎡
容积率:0.85
占地面积:3555㎡
建筑密度:30%
绿化率:30%
功能:15班幼儿园、早教中心、宿舍
结构形式:混凝土框架
设计单位:空格建筑
设计范围:建筑设计、室内设计、景观设计
主持建筑师:高亦陶,顾云端
团队:高亦陶,顾云端,刘闻天,黄晋,方寒柒,龚宇婕,祁立晖,董行,陈鑫,孔鸣,司马志彦,杨诗雨
灯光设计:缪海琳
建设单位:莱佛士幼儿园
合作设计院:张家口中天建筑设计咨询有限公司
摄影:顾云端

BIM建筑网


































