(续上期:百年经验!德国装配式建筑发展深度分析)
编者按
目前,大力发展装配式建筑已经成为我国推动建筑业转型升级的重大战略。鉴于目前我国装配式建筑还处于试点示范到全面推广的过渡阶段,发展过程中还存在一些技术问题有待进一步研究解决;而德国装配式建筑标准规范体系较完善,技术水平也较先进,可供我国装配式建筑研究和实施提供借鉴,洲联五合副总裁卢求先生特撰文《德国装配式建筑发展及经验借鉴》,全面深入介绍德国装配式建筑的政策、标准、技术体系、相关统计数据及经验教训,为中国装配式建筑发展提供借鉴,供广大从业者参考。
本文共分6章,限于篇幅,本网特分为三篇全文转载,具体如下:
1.百年经验!德国装配式建筑发展深度分析,介绍第1~3章内容:主要包括德国装配式建筑发展概况;德国装配式建筑政策措施、发展建设研究;德国装配式建筑标准规范研究。
2.欧洲典范!最全的德国装配式建筑技术体系研究,介绍第4章内容,德国不同类型装配式建筑技术体系研究。
3.深度思考!德国装配式建筑发展数据及经验教训,介绍第5~6章内容:德国装配式建筑相关统计数字、德国装配式建筑的发展对中国的借鉴作用。
4. 德国不同类型装配式建筑技术体系研究
工业化预制建造技术的优点:
工业化预制建造技术的优点是大量建造步骤可以在工厂进行,不受天气影响,现场安装施工周期大幅缩短,非常适用于每年可以进行室外施工时间较短的严寒地区。另一方面优点是建筑构件部品在工厂加工制造,利用机械设备加工制造,工作效率高,精度和质量有保障。
工业化预制建造的缺点:
成本高
在预制建筑出现的初期,工业化建筑产品成本低于传统古典建筑。而今天 用预制混凝土大板形式建造的住宅和办公大楼的成本通常高于常规建造技术建造的建筑物。究其原因,钢筋混凝土墙是比砌体墙成本更高。预制梁、板结构上大都是简支梁而非连续梁,因而需要较大的用钢量。此外,预制件的连接点通常复杂,有些须采用昂贵的不锈钢材料连接。如果使用保温夹芯板构造,节点更加复杂,大板缝隙的密封处理也会导致额外的费用。大体量的预制板的运输导致更高的运输成本。
缺少个性化
工业化预制建造技术的缺点是任何一个建设项目,包括建筑设备、管道、电气安装、预埋件都必须事先设计完成,并在工厂内预安装到混凝土大板内,只适合大量重复建造的标准单元。而标准化的组件导致个性化设计降低。
德国现代建筑工业化建造技术主要可分为三大体系 :
预制混凝土建造体系
预制钢结构建造体系
预制木结构建造体系
4.1 预制混凝土建造体系
4.1.1 预制混凝土大板体系
虽然20世纪中叶以后德国有大量混凝土预制大板建造的居住区项目,但这类项目今天看来大部分不太受欢迎,如今预制混凝土大板建造技术在德国已遭抛弃,从1990年代以后基本没有新建项目应用。
取而代之的是追求个性化的设计,应用现代化的环保、美观、实用、耐久的综合技术解决方案,满足使用者的需求。通过精细化的设计,模数化设计,使大量建筑部品可以在工厂内加工制作,并且不断优化技术体系,如可循环使用的模板技术,叠和楼板(免拆模板)技术、预制楼梯、多种复合预制外墙板。因地制宜,不追求高装配率。
4.1.2 预制混凝土叠合板体系
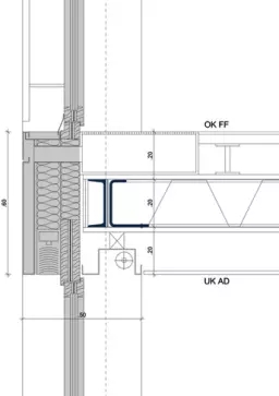
德国大量的建筑是多层建筑。现浇混凝土支模、拆模,表面处理等工作需要人工量大,费用高,而混凝土预制叠合楼板、叠合墙体作为楼板、墙体的模板使用,结构整体性好,混凝土表面平整度高,节省抹灰、打磨工序,相比预制混凝土实体楼板叠合楼板质量轻,节约运输和安装成本,因而有一定市场。有资料显示混凝土叠合预制板体系在德国建筑中占比达到50%以上。 采用这种装配结构体系,外立面形式比较灵活。由于德国强制要求的新保温节能规范的实施,建筑保温层厚度在20cm以上。从节约成本角度考虑,采用复合外墙外保温系统配合涂料面层的建筑居多。
图19 采用预制混凝土叠合楼板、墙体体系建造的住宅1
图20 采用预制混凝土叠合楼板、墙体体系建造的住宅2
图21 采用预制混凝土叠合楼板、墙体体系建造的住宅3
图22 由德国国家建筑技术研究院审核批准的一种
混凝土叠合板建造体系的节点构造1
图23 由德国国家建筑技术研究院审核批准的一种
混凝土叠合板建造体系的节点构造2
图24 由德国国家建筑技术研究院审核批准的一种
混凝土叠合板建造体系的节点构造3
图25 由德国国家建筑技术研究院审核批准的一种
混凝土叠合板建造体系的节点构造4
4.1.3 预制混凝土外墙体系
2012年在柏林落成的Tour Total大厦,代表了德国预制混凝土装配式建筑的一个发展方向。
该项目建筑面积约2.8万平米,高度68米。外墙面积约1万平米,由1395个、200多个不同种类、三维方向变化的混凝土预制构件装配而成。每个构件高度7.35米,构件误差小于3mm,安装缝误差小于1.5mm。构件由白色混凝土加入石材粉末颗粒浇铸而成, 精确、细致地构件、三维方向微妙变化富有雕塑感的预制件,使建筑显得光影丰富、精致耐看。
图26 德国Tour Total大厦建筑效果图
图27 德国Tour Total大厦细节1
图28 德国Tour Total大厦细节2
图29 德国Tour Total大厦预制构件示意
图30 德国Tour Total大厦预制构件1
图31 德国Tour Total大厦预制构件2
图32 德国Tour Total大厦细节3
图33 德国Tour Total大厦构件安装节点
4.2 预制钢结构建造体系
4.2.1预制高层钢结构建造体系
高层、超高层钢结构建筑在德国建造量有限,大规模批量生产的技术体系几乎没有应用市场。同时高层建筑多为商业或企业总部类建筑,业主对个性化和审美要求高,不接受同质化、批量化、缺少个性的装配式建筑。另一方面,近年来高层、超高层钢结构建筑的承重钢结构、以及为每个项目专门设计的复杂精致的幕墙体系,都是采用工业化生产、到现场安装的建造形式。因此可以归纳到个性定制化装配式建筑。
法兰克福德国商业银行总部大楼是德国为数不多的高层钢结构建筑。钢制构件和金属玻璃幕墙采用工业化加工、现场安装方式建造。
图34 法兰克福商业银行塔楼实景
图35 法兰克福商业银行塔楼构件示意
图36 法兰克福商业银行塔楼局部效果1
图37 法兰克福商业银行塔楼局部效果2
获得德国2012年钢结构建筑奖的帝森克虏伯总部大楼,代表德国近年来钢结构建筑的一个发展方向。由于混凝土结构优异的防火、隔声、耐久、经济实用等性能,以及现代建筑技术能够成熟地利用混凝土结构优异的蓄热性能,来满足愈来愈高的建筑节能和室内舒适度要求,使混凝土或钢混结构成为德国高层建筑最主要的结构形式。建筑核心筒和楼板通常采用现浇混凝土形式、梁和柱采用钢材、钢混或混凝土形式,以满足承载、防火、隔声、热惰性等综合技术要求;建筑外墙、隔墙地面、天花等部品则大量采用预制装配系统。
图38帝森克虏伯总部大楼建筑效果1
图39帝森克虏伯总部大楼局部1
图40帝森克虏伯总部大楼局部2
图41帝森克虏伯总部大楼局部3
图42帝森克虏伯总部大楼局部4
2014年落成的欧洲央行总部大楼,一定程度上代表了德国高层办公建筑发展的特点。项目位于法兰克福,建筑高度185米。采用双塔形式,两栋塔楼之间形成一个巨大的室内中庭,中间用钢结构设置多层连接平台,布置绿化和交往空间。建筑结构为现浇钢筋混凝土,以满足承载、防火、隔声、热惰性等综合技术要求;高性能的全玻璃幕墙、隔墙、楼面、天花等采用预制装配系统。
图43 法兰克福欧洲央行总部大楼建筑效果
图44 法兰克福欧洲央行总部大楼施工
图45 法兰克福欧洲央行总部大楼连廊构件吊装
图46 法兰克福欧洲央行总部大楼示意
4.2.2 预制多层钢结构建造体系
汉诺威VGH保险大楼采用一种模块化、多层钢结构装配式体系建造。由承重结构、外墙、内部结构和建筑设备组成。基本构件:楼板5.00mx2.50m,厚度20cm(可加长到10.00m),墙板3.00mx1.25m,厚度15cm。楼板和墙板由U型钢框架和梯形钢板构成,表面防火板。楼面地面可采用架空双层地面构造。 楼板和承重墙板之间采用螺栓固定,并用柔性材料隔绝固体传声。
墙板之间可作为窗、门、百叶等。非承重隔墙采用轻钢龙骨石膏板墙体。
图47 汉诺威VGH保险大楼效果
图48 汉诺威VGH保险大装配式建筑楼模型
图49 汉诺威VGH保险大楼剖面
图50 汉诺威VGH保险大楼节点构造1
图51 汉诺威VGH保险大楼节点构造2
图52 汉诺威VGH保险大楼节点构造3
图53 汉诺威VGH保险大楼节点构造4
图54 汉诺威VGH保险大楼局部1
图55 汉诺威VGH保险大楼局部2
有特殊要求的多层建筑项目亦有采用预制装配形式建造。法兰克福SQUAIRE商业综合体内部功能包括商业零售、餐饮、酒店、办公等。建筑位于法兰克福机场高铁站上方,因为需要横跨铁路线,因而建筑整体坐落在钢绗架之上,为减轻重量,建筑结构进行了多方面优化设计。钢结构和幕墙体系采用工业化生产现场安装形式建造。
图56 德国法兰克福机场高铁站SQUAIRE
商业综合体效果1
图57 德国法兰克福机场高铁站SQUAIRE
商业综合体效果2
图58 德国法兰克福机场高铁站SQUAIRE
商业综合体局部效果
图59 德国法兰克福机场高铁站与
SQUAIRE商业综合体示意
4.3 预制木结构建造体系
德国小住宅领域(独栋和双拼)是采用预制装配式建造形式最高的领域,而其中大量采用的是木结构体系。木结构体系之中又细分为木框板结构、木框架结构、层压实木板材结构三种形式。
4.3.1木框板结构
承重木框架与抗剪板体是木框板结构建筑的特点。
框体采用实木,最好是构造用全实木(KVH)形式。板材主要由木材或石膏板材料构成。标准化的木截面和标准化的板材尺寸使加工生产和建造得到优化。实木框架和板材有机组合,形成的墙壁、楼板和屋顶结构体系,能够有效地吸收和承载所有垂直和水平荷载。木框板结构建筑自重轻,保温层位于木框材料厚度之间,因而建筑显得轻盈。
要达到被动房的节能水平,需要增加外侧或内侧保温材料,这一步可以在工厂预先完成。外墙部分可以选择装饰木材面板、面砖、或保温层加涂料等形式。
图60 现代高效保温预制木框板墙体结构
图61 预制木框板结构装配体系构件生产过程
图62 用预制木框板结构装配体系建造的小住宅项目1
图63 用预制木框板结构装配体系建造的小住宅项目2
图64 用预制木框板结构预制装配体系建造的多层居住建筑
在工厂预制的墙体等板材中,已经预先安装好建筑的保温隔热、隔蒸汽层和气密层,以及建筑上下水、电气设备管线、或预留穿线和接口空间。工厂预组装的组件还包括建筑的外门和窗户。工地上的工作包括: 建筑上下水管线和电气线路的连接,瓷砖、地板、粉刷、室内门等。预制装配建筑,可以保证质量、控制成本,大大缩短了施工周期: 通常在地下室或建筑地面板完成之后五个星期内可入住。
计算机控制、自动化生产、现代化的生产组织优化使工业化预制木构住宅不断完善进步。
预制木结构建筑质量有严格保证,每件预制产品在出厂时都有质量检测合格标识。
除了小住宅建筑之外,木框板结构在办公建筑、幼儿园、多层住宅、商业建筑等领域也有应用。
4.3.2木框架结构
木框架结构体系是指垂直承载的木制柱和水平承载的木制梁组成的木结构体系。木材大多采用工程用高质量的复合胶合木(Brettschichtholz),跨度可达5米。这种工程用复合胶合木,也被用来建造大跨度体育馆等建筑。辅助性木结构,如楼板次梁、檩条等则采用构造用实木。
用木框架结构体系建造的房屋,其外墙板也具有保温隔热层,隔蒸汽层和气密层,但木框架结构体系中的内外墙板不承担任何结构作用。建筑物的抗剪由木制、钢制斜撑或刚性楼梯间承担。由于墙体是填充性构件,因而墙体可随意布置并在未来轻松更改,楼板也可方便设置挑空构造。建筑内部空间灵活流动,开窗位置与面积灵活,采光和景观好。
图65 典型木框架结构体系建筑细部
图66 预制木框架体系构建加工
图67 预制木框架体系建筑部品在工地进行安装
图68 用预制木框架结构体系建造的独立式小住宅项目1
图69 用预制木框架结构体系建造的独立式小住宅项目2
图70 用预制木框架结构体系建造的独立式小住宅局部
图71 用预制木框架结构体系建造的多层居住建筑
图72 用预制木框架结构体系建造的多层办公建筑
4.3.3 层压实木板材结构
层压实木板材结构建筑近十年来得到快速发展。实木板材结构采用交叉层压木材(Brettsperrholz),有很好的结构承载性能,可以加工制成楼板、墙体、屋面板。现代化的计算机控制切割机床,能够轻松切割出任何需要的洞口和形状。层压实木板材结构不受建筑模数限制,可以创造出独特的、纯净的空间,受到建筑师、结构工程师和业主的青睐。
层压实木板材结构,同以上两种木结构形式一样,可以在工厂加工预制,到现场组装。
图73 层压实木板材结构建筑
图74 层压实木板材结构构件存放
(未完待续)
作者简介:卢求,洲联集团-五合国际 副总裁,德国可持续建筑委员会(DGNB)国际部董事。
(欢迎各大媒体转载,全面宣传推广装配式建筑!转载请注明出处)

BIM建筑网























































