来源:预制建筑网
资料来源:户型库
什么样的住宅才是我们的未来?被动式住宅有必要紧急全国推广!有一种住宅无论在夏季还是冬天,竟然都可以不安装空调,这种住宅你想要吗?
这种住宅就是西方国家所谓的“被动式住宅”,中国台湾叫“被动式节能屋”,日本称作为“无暖房住宅”。“被动式住宅”的英文名字是“passive house”,德文名字是“Passivhaus”。
那到底什么是“被动式住宅”呢?今天让我们一起来学习一下,看看我们未来的住宅长啥样?
被动式住宅
你的房子是否在地下室内装有供暖或是壁炉,可能还有中央空调或是窗户系统你是否质疑过这些是否真的必要?1991年,物理学家Feist博士建造了第一栋被动式房屋
合适的保温
就像在冬天穿着合适的夹克,这样就不需要供暖设备了。
消除漏气
无论大小,都不应当有漏气孔洞,否则室内的温暖空气会溢出室外。
无热桥
热桥就像热量移动的公路,比如热量可以穿透墙体,实际上,大多数住宅的墙体存在着热量高速公路,热量可以很容易溢出室外。此外,房装配式建筑屋还需要合适的窗户,大多数是三玻窗户
窗户需要正确朝向,实现冬季有充足太阳光照,夏季可提供遮阳。
使用显热回收系统,该系统可在防止热量逸出的同时为室内提供新风。
实现以上几点以后,你的房屋就不需要供暖设备或是空调设备了。
那么热量从哪里来呢?被动式房屋可实现90%的节能,剩下的能力可很容易得通过人体、光照、植物、灯泡甚至电视。
这可以为你节省大量供暖费用。
可能你还没看懂,没关系,接下来咱们来看两个案例,分别来自美国和法国,看看万恶的资本主义国家住的是什么住宅!
法国第一栋被动式住宅
这栋住宅是法国建筑、设计、节能、住宅产业化领域里一致认可的最节能,最环保,最绿色的房屋。并且是法国第一个获得欧洲PHI,被动式房屋研究所,认证的房屋。最有意思的是,这栋房屋有很多中国元素,比如像中国自建房一样,提出了朝向要坐北朝南,并且使用了大量竹子,利用竹子的天然特性,为房屋实现被动式的标准。
这栋房屋只有基础使用的是混凝土,房屋主体采用的是工厂预制的板式木结构,也就是集成房屋,或者新型房屋体系。整个房屋被罩上了一层外衣,也就是把竹子串起来,覆盖整个房屋,同时戴上了太阳能板的帽子,你看看下图片形象不?太阳能保证了房屋绝大多数电力和热能的供给,已经成为被动式房屋标配。
仔细看一下这些竹帘,竹子与竹子之间并没有紧密连接,而是有一定距离,保证了即使竹帘全部关闭,房屋也有足够的亮度。同时,竹子之间这恰当好处的距离,保证了只有太阳初生和夕阳的时候,才能直接照射进来,正午等太阳光是不能直接照射到墙体的。
房屋朝南的一面,基本上都是大大的窗户,不同的是窗户选用的是3层玻璃窗,能有效切断热传导,保证房屋的宜居。新鲜空气仅通过带有热交换的新风系统进入,加强了房屋的热绝缘性。
被动式房屋也就是不需要主动加热制冷的房屋,仅依靠屋顶的太阳能,和人在室内正常生活带来的热量,比如人走动散发出来的热量,咖啡辐射出来的热量等。
目前的房屋建造技术已经发展到,即使在荒漠中建房子,也可以舒适的使用现代化的生活设施。马桶,淋浴,上下水等都没有问题,被动式房屋只是做的更节省能量,更加环保。
被动式房屋常年将温度保持在20度左右,居住起来非常舒适。墙上不再需要空调,也不再需要暖气,有些极其寒冷的地方,采用太阳能蓄热水罐的形式铺设地暖,提供更多的热量。
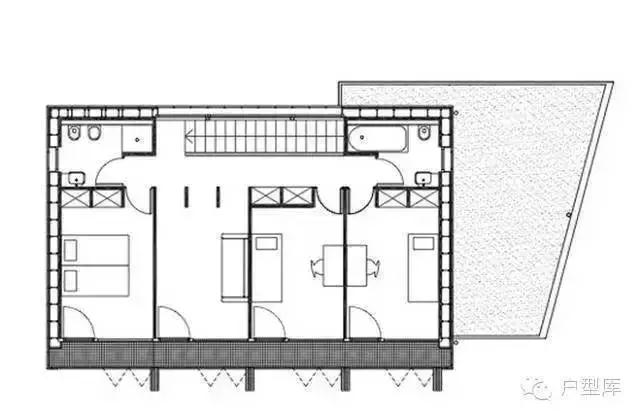
奉上二楼平面图,以便大家更好的欣赏这套房屋,看到没,二楼是有一个连廊的,在竹帘与窗户之间,可以凭栏远眺。
美国纽约州第一栋被动式住宅
这套住宅,坐落在纽约向北两小时车程的哈德逊谷,是纽约州第一栋经过认证的被动式住宅。
平面图:一楼有个挑高的客厅,一面墙全部是窗户,主卧有独立卫生间,衣橱。二楼两间卧室,带书房,即使不说被动式性能,户型设计的就很好,把坡屋顶改成平屋顶。
房屋的主体结构也是以原木为主,与其他被动式房屋不一样的是,或者说性能更优异的是,不再需要太阳能板去蓄热,而是靠太阳直射和人在室内活动所散发出来的能量来保证温度。
这样的房屋装修风格,先不说是不是被动式,即使是普通房屋,居住起来想必也是极好的。
房屋建造速度也很快,框架都是工厂生产好,现场安装的。
建造过程如下:房屋被动式性能优越的原因就是这些原材料,有效的阻断热交换,可以使房间冬暖夏凉。

BIM建筑网






























