工业化建筑▪如何高颜值?
〝造价高&立面单调〞是工业化建筑在我们心目中的形象,其实不然,这只是您的错觉,今天就通过万科对工业化建筑的研发成果让你明白:工业化建筑也可以快速、高效、高颜值…….
一.万科基于成本+效益的优化
(一)通过建筑方案优化降低成本
(二)通过构件拆分优化降低成本
标准层拆版图
(三)万科降成本+提效益和品质
立面细节做法
立面细节做法
(四) 通过构件表及策划提高效率
一、将每层划分为两个施工段,用7个小时吊装完成半层所有预制墙板,支护完成后灌浆养护,利用夜间休工时段使灌浆套筒强度达到设计要求。
二、第二天浇筑现浇节点的混凝土,同时吊装剩下半层所有预制墙板,利用夜间休工时段使现浇节点及灌浆套筒强度达到设计要求。
三、第三天吊装半层预制叠合楼板,浇筑剩下半层现浇节点的混凝土……
四、采取措施保证结构装配与室内装修进度相差10层,节约工期。
(五) 通过BIM信息系统减量提效
根据模型提供工程量信息的计算每一组成部分的经济算量得出最终经济算量
模型提取工程量X换算系数=工程量清单
模型提取工程量X换算系数X清单定额=清单成本
清单成本需要根据清单定额定期更新
万科BIM模型可视化设计
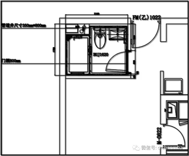
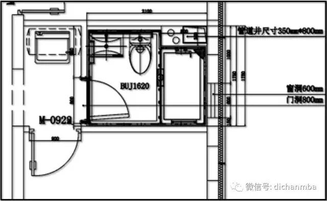
(六)通过系统集成卫浴降低成本
一、集团采购国内成熟品牌整体卫浴,降低成本。
二、重新整合卫生间排布,优化洗衣机、热水器位置。
三、卫生间无湿作业,无土建防水做法,提高工效。
四、配合整体卫浴叠合楼板局部降板130,实现本土化的卫生间SI分离体系。
二.万科对工业化建筑立面的研发
(1)屋顶做法
▲屋顶拆板图
屋顶预制外墙与预制楼板交接处节点大样示意图
(2)标准化入口大堂
大堂平面图
(3)工业化立面效果
三.万科工业化建筑BIM的应用
(1)BIM模型可视化设计
BIM可视化模型整体卫浴及降板表达
(2)BIM模型构件库
(3)我们能出的图纸
1.所有墙板的三维模型图和钢筋图
2.所有三维叠合板图
3.所有三维预制楼梯图
预制墙板配筋
BIM可视化楼板模型
预制楼板配筋
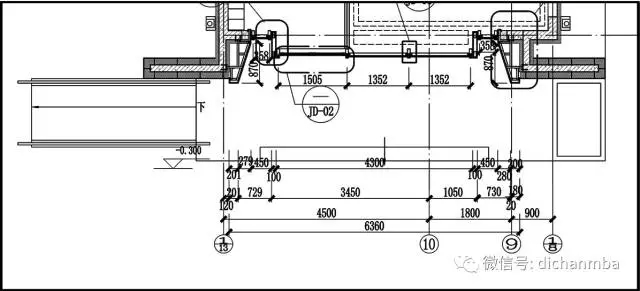
整体厨卫降板区
(4)我们要干的事
钢筋算量明细表
构件试拼装
楼板配筋
❶与构件厂合作用BIM构件图直接指导构件生产,进行碰撞检查
❷用BIM构件图直接指导构件安装(包括安装三维示意图和施工组织计划)
用BIM构件图直接指导楼梯生产
三维图纸对于构件拼装的模拟施工指导
用BIM构件图直接指导构件安装(包括安装三维示意图和施工组织计划)
四.万科Art-deco风格与工业化
万科工业化住宅公园里以Art-deco为基调,通过研究优化,在立面造型、使用功能、成本控制之间寻找到合适的平衡点
1.形体:三段式,垂直意向,顶部收分(上升感,体量,节奏)
2.色彩:暖色系为主
3.材料:石材,真石漆等
4.细部:几何化的为主。而非新古典装配式房屋风格的植物图案
深圳万科金域缇香
万科ART-deco总结-竖向装饰
万科ART-deco总结-横向装饰
万科工业化预制技术导向
万科工业化趋势—预制肌理化
万科松山湖—GRC构件预制
装修用的GRC构件应该是glass-fiber reinfored concrete. 既增加型玻璃纤维混凝土,里面的C for concrete, not for cement.
万科住宅工业化流程
工业化与传统建造方式比较

BIM建筑网














































































