项目概况
近日,国内首个双T板大型商业广场项目“颛桥万达广场”在上海开始进行施工安装作业。
项目建设为上海颛桥万达广场投资有限公司、建筑设计单位为中国建筑上海设计研究院有限公司,总包单位为中国建筑第八工程局有限公司,监理单位为上海三凯建设管理咨询有限公司,由上海天华建筑设计有限公司完成PC顾问及深化设计。
项目为集购物中心、休闲娱乐为一体的大型商业购物中心项目,位于上海市闵行区都市路与颛兴东路交接处,北临六磊塘,东临居住区。地上建筑面积约10.3万m2,地上4层(局部5层影院),平面尺寸约为183mX167m,柱网尺寸8.4mX8.4m,主屋面高度为20.9m,局部影厅屋面高度为23.75m。
项目采用装配整体式混凝土框架结构,主要预制构件范围:预制钢筋叠合板、预制预制叠合梁、预制楼梯、预制叠合双T板底板,单体预制率30%。
整体效果图
技术特点
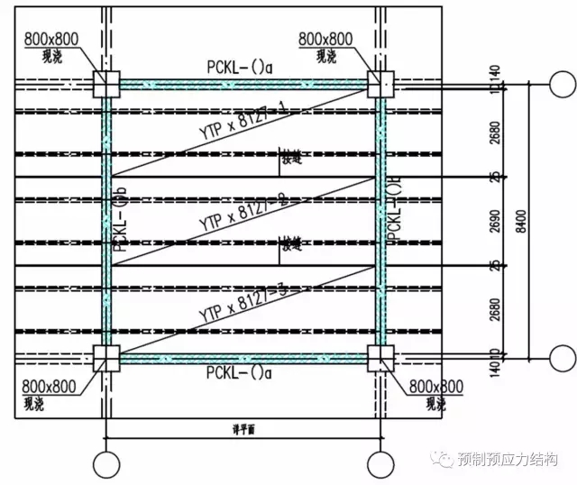
本项目的2~4层标准层选用了预制双T板叠合板。双T板技术参数:标志跨度8.1m(轴线8.4m,支承梁宽300mm),板宽为2.7m,肋距1.50m,肋高450mm,叠合层厚度60mm,标准板块重量5吨左右。
设计前期,对双T叠合板和钢筋桁架叠合板+次梁两种预制方案进行了经济性对比,结果表明在同样的楼盖面积下,双T板方案每平方造价比钢筋桁架叠合板低15%左右,同时构件总数大幅减少,没有叠合次梁顶筋和主次梁节点的安装作业,施工效率高。
本项目双T板标志跨度8.1m,不在国标图集选用范围内,且商业楼面活荷载较大,故需对双T板进行单独设计。考虑本项目工期紧、双T板在大型商业项目中尚未有应用先例,在项目实施前在现场提前建造了标准柱网工法楼,用以检验安装工艺并指导现场施工。
为了节约层高,考虑在结构梁侧设置牛腿(即倒T梁做法)。考虑施工现场的便利性,对牛腿进行了优化,并兼顾了因建筑功能限制不能采用双T板部位次梁的搁置。
标准跨预制双T板布置示意图
工法楼施工
钢牛腿与混凝土牛腿对比
预制双T板切角处理
倒T梁钢模
双T板侧边缝施工处理方法
工法楼建成实景
构件安装施工
本项目二层预制构件共2.5万方,分6天吊装完成,预制构件数量如下:
预制框梁457件、次梁208件,叠合板212件、双T板397件,楼梯梯段128件、楼梯梯梁125件。
塔吊布置
堆装配式结构场布置
预制构件堆场
倒T梁吊装
梁柱节点施工
主次梁节点施工
预制双T板现场堆放
预制双T板吊装
双T板拼缝处理
无桁架筋叠合板底板吊装
预制楼梯板吊装
梁柱节点区钢筋排布
项目小结
本项目预制率30%,考虑工期、成本、施工难易程度等因素,预制构件布置优先顺序为:楼梯——水平构件(叠合板、叠合梁)——外挂墙板(本项目外围为幕墙)——框架柱。经过多方比对,最终选择了预制楼梯,预制水平构件(部分叠合板底板、预制框架梁、预制预应力双T板底板)。
预制双T板,由于采用了高强钢筋和混凝土,承载力高、经济性好,有利于减轻结构自重,节约钢筋及混凝土用量;采用预应力技术,适合于大板跨的功能需求;耐久性好、承载可靠。
本项目是上海也是国内首次采用双T板、结构坡顶的装配整体式框架结构体系建造的大型商业广场项目,鉴于民用建筑工程中缺乏类似案例,在项目实施前,参与各方进行了大量前期准备工作,包括PC技术方案论证、双T板生产工厂考察、施工组织前期策划、专项吊装方案的制定、工法楼的建造等等,确保了本项目按预定计划顺利开展。
设计施工实践表明,商业建筑往往功能明确、柱网相对规则、复制体量大,所以适合采用装配式技术建造。而双T板能实现商业对大空间的要求,与主体结构连接便捷、标准化程度高、大型化减少构件数量、吊装效率高,这些均充分体现出双T板的技术经济性优势,未来应用前景广阔。
(欢迎各大媒体转载,全面宣传推广装配式建筑!转载请注明出处)

BIM建筑网



















