1962年9月9日建筑学家梁思成 在《人民日报》 发表《从拖泥带水到干净利索》,他曾畅想“在将来大规模建设中尽可能早日实现建筑工业化。那时候,我们的建筑工作就不要再拖泥带水了。”
2017年北京也正迎来装配式建筑的大发展。自发布“安居北京”发文:重大进展!北京市3类项目全部采用装配式建筑,文章关注度很高,点击量迅速过3万,网友积极留言,小编也很开心。看到留言栏大家不仅关注装配式建筑,更关心装配式建筑的安全、质量、抗震、防水等一系列问题。为了让更多的人全面了解这种建造方式,小编在留言栏搜罗了10个问题,并精心做了回答,希望能给您新的认识。
问题 1
我想知道,装配式建筑经过验证了吗?是简单的“搭积木”吗?
绝不是简单的“搭积木”
无论从理论基础的各类国家标准与图集的发行(如:《装配式混凝土结构住宅建筑设计示例》《装配式混凝土结构表示方法及示例》《预制混凝土剪力墙外墙板》《预制混凝土剪力墙内墙板》)等…)还是从实践的项目(国内外实际项目案例数不胜数),装配式建筑是经过验证的可靠安全的建筑。
装配式建筑是建筑产业化中装配化施工环节的直观表现,是将工厂生产的预制部品部件在工地现场装配而成的建筑,全流程应为标准化设计、工厂化生产、装配化施工、一体化装修、信息化管理和智能化应用。装配式建筑具有质量稳定、能耗低污染低、生产效率高、安全事故降低、劳动强度小、作业条件好等优势。
美国:钢+PC挂板组合结构
新加坡:预制剪力墙+灌浆套筒
日本:预制框架+灌浆套筒
香港:PC外墙挂板+标准定型化
问题 2
装配式建筑的房子质量与安全有保障吗?结实吗?
请放心,技术成熟可靠
在设计过程中通过各类计算模型的模拟,多样化全方位的实体实验,通过国内外大量项目的实践,证明房屋的质量与安全是经得起考验的,技术是成熟可靠的。
装配式建筑由于大量的部品部件都是工厂生产的,对品质的把控能力远远大于传统现浇的现场湿作业。
动态水密试验:依据AAMA 501-1之规定,以3.4升/分/米方之喷水量喷洒于试体上,启动2100马力之涡轮飞机引擎在定压+720Pa风压力作用下,喷水时间15分钟。
模拟地震层间位移
问题 3
能抗地震吗?
抗八级地震没问题
目前我国的装配式建筑结构的抗震性能基本等同于现浇结构的抗震性能,甚至某些性能超过现浇结构建筑的抗震性能,可以满足北京抗震八级的设防要求。
能抗震的关键技术之一:装配式节点的连接技术。目前北京主要采用的技术70年代诞生于美国,72年传入日本,套筒被预制在构件内,另一端钢筋在施工现场通过高强的灌浆料灌浆进行连接。
钢筋灌钢筋套筒连接技术,上世纪浆套筒连接在日本和美国得到了大量的实践,其中包括套筒应力-应变曲线、循环张拉疲劳试验,这样一个技术经过长期实验,而且经过了强震的考验,美国和日本的结论都认为它可以在高层建筑中放心大胆使用。
另外,装配式建筑还可以通过引入隔震措施,加强抗震性能。
节点连接套筒
问题 4
过去有过大板房,现在为什么还要推广装配式建筑?
人口红利减少、环境污染严重
上世纪80年代,我国基本建设重心从生产向生活转型,为了快速解决人民的住房需求,装配式大板建筑开始出现并快速发展,据不完全统计,北京地区70年代~90年代,20余年建成约1000多万平方米,占全国1/3。
但90年代初大板建筑“突然消亡”。究其原因,一是市场要求户型多样化、装饰个性化,大板结构体系未能解决设计标准化与多样化的矛盾,造成工厂生产难度增加,成本增加;二是大板结构体系未能很好地解决防水问题,在建成 15 年左右出现了大量渗漏现象;三是现浇混凝土建造技术(如大模板技术)较快发展,农民工进城,人工成本低廉,加速了大板结构体系的消亡;四是未能及时吸收新的技术、工艺及材料。
随着我国人口红利减少和环境污染问题的紧迫性,十八大提出了“生态文明建设”的要求,建筑行业必须走节约资源能源、减少环境污染的工业化道路,结合国内外的经验,采用装配式建筑是主要的手段之一。
目前,装配式建筑的材料改进,技术进步,已克服抗震、渗漏、开裂等技术问题;装配式方式和传统现浇方式建造成本的差异逐步缩小。同时通过标准化设计、工厂化生产、装配化施工、一体化装修,有效提高工程质量和安全、提高效率和缩短工期,降低资源能源消耗、减少建筑垃圾和扬尘噪声污染。和过去的大板楼有着质的差别。
过去的装配式大板房建筑
现在的工业化建筑
问提5
这样的房子,住进去隔音怎么样?
隔音效果很棒
装配式建筑楼板采用的是叠合楼板,这种叠合楼板与过去的空心楼板不同,它是在预制楼板的基础上再现浇一层混凝土楼板,从而形成实心的装配整体式楼板。在隔音标准上,不仅与现浇楼板一致,而且平整度好、节约模板、方便施工。
叠合楼板
内隔墙主要有轻质混凝土内隔墙、轻钢龙骨内隔墙等轻质隔墙。两种隔墙均具有重量轻、强度较高、耐火性好、通用性强且安装简易的特有性,有适应防震、防尘、隔音、吸音、恒温等功效,同时工期短、施工简便、不易变形。
蒸压轻质加气混凝土隔墙板
轻质混凝土内隔墙通常是由轻质条板或混凝土制品等制成,其材料本身就具有优越的隔音性能。
轻钢龙骨内隔墙
轻钢龙骨隔墙通常在中间添加岩棉或保温板等隔音材料,在隔音标准上符合国家标准。
问提6
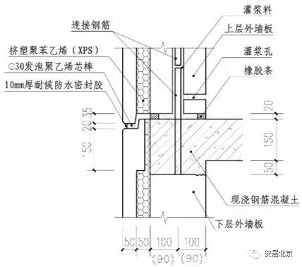
装配式优点很多,唯一问题是接缝处用胶粘接,冻胀、腐蚀、雨雪防渗漏问题目前还有待进一步提高。对此本人持观望态度,作者过于乐观主义了吧。
之前接缝处做法
之前由于施工技术问题,接缝处防水方式单一,要么只做构造防水,要么只做材料防水,没有综合考虑设计,导致漏水问题。
目前装配式建筑通过结构防水、构造防水、材料防水解决漏水问题。
现在接缝处做法
自防水:竖缝现浇混凝土浇筑,结构自防水。构造防水:水平缝反槛构造,防止水流入室内。材料防水:外墙缝均用“改良硅酮胶”做材料防水
现在门窗处构造做法
工厂制造的外墙板,门窗洞口误差在2毫米以内,与工厂制造的保温隔热外窗精确安装、严丝合缝。保温效果更好,根本解决外窗渗漏。
问题 7
装配式建筑是不是很贵,造价很高?
有增有减,不能一概而论
装配式混凝土建筑和传统现浇混凝土建筑比较
装配式建造方式的成本相比传统现浇方式有增有减,要视结构形式、技术体系、抗震设防水平、预制率、管理水平、项目规模等具体情况而定,不能绝对地说装配式建筑的成本高或者低。
概括而言,装配式建筑成本增加部分主要包括:预制构件产品和运输费、现场安装吊装费、大型机械租赁费、墙板和楼板拼缝处理及相关材料费用;成本减少部分主要包括:钢筋和混凝土工程都在预制构件厂进行,减少了现场砌筑费用,减少了抹灰人工费,还减少了现场支撑和模板费。
成本增加的原因,主要是预制构件的生产未实现规模化采购、规模化生产和规模化运输;由于目前国内预制构件的标准化较低、规格尺寸多,被迫采用散装运输方式,运输效率低;预制构件标准化程度不同;目前设计、生产、施工一体化程度低;部分项目管理经验不足;产业工人不足等。
从本质上看,装配式和现浇两种建造方式的施工工艺区别较大,建造过程不同,组织管理方式不同,带来的经济、社会和环境效益也不同,不应简单比较二者之间的“成本”。
今后,大力推广装配式建筑,将加大政策扶持力度,通过面积奖励、推行全装修缩短工期、技术培训产业工人、降低人工成本、建筑业营改增降低建造成本等方面降低装配式建筑的增量成本。
清水混凝土预制楼梯,体现工厂化预制便捷、高效、优质、节约的特点。
装配化无外架施工
问题 8
其他国家盖房子也用装配式建筑吗?我们国家目前的水平?
欧洲
欧洲是现代工业化革命的起源,在住宅的工业化生产领域也不例外,特别是北欧地区由于气候寒冷、施工期较短,人工费成本很高。
为了加快工期和节约成本,最早兴起了“工厂预制、现场组装”的住宅生产建设方式,如芬兰、瑞典、挪威等国家的建筑预制率高达70%以上,可以节省大量的脚手架和模板用量,不但质量好、速度快,而且造价低于现浇,体现了住宅产业化的优势。
芬兰坦佩雷市某装配式住宅小区施工场景
日本
日本70%的城镇住宅为独门独户的别墅建筑,多数为轻钢木结构体系,在大城市也有许多高层住宅,多数为“装配式框架结构体系”,该体系技术特点为“装配式框架结构+外墙挂板”,一般先进行主体施工,后进行挂板的安装。
日本多采用明管明线,并用二次装修用龙骨和面板把管线包起来,这就是日本倡导的“SI 体系”(即主体结构与填充体分离体系)。
日本装配式框架梁安装
美国、加拿大、澳大利亚
装配式建筑 美国、加拿大、澳大利亚由于人口密度较小,普通住宅主要以独立别墅为主,再加上木材资源丰富和个性化的追求原因,一般很少使用混凝土结构,别墅的结构体系多数为轻钢结构或木结构为主,所需要的部品已经完全标准化合部品化,能够实现工厂化生产,甚至住户在超市就可以买到所需要的各种建材,自己就能够完成住宅的建设工作。
只有在大城市人口稠密区存在一些多、高层的集合式住宅、公寓、酒店大量使用装配式混凝土结构技术,主体结构体系为“装配式框架(或钢结构框架)+预制夹心保温外墙挂板+预制空心楼板”,一般先进行主体施工,后进行挂板安装的施工方法。在美国大量的立体停车库、厂房、写字楼采用装配式结构,大跨度预应力空心楼板和双T 板的应用非常普及。
美国PRESSS 预制预应力抗震结构体系
问题 9
农村房子也能用装配式建筑吗?
我们农村已经有了
装配式建筑最大的优势是工厂生产机械化程度高,所以构件精度高,生产效率高;现场房屋起主体一般只用一两天,节省大量人工,在人工费越来越贵的今天,这点很重要。装配式建筑包括很多种新型房屋体系,轻钢,钢木,预应力混凝土(PC)等都可以采用装配式建造。农村地区采用装配式建筑方式在我国已经开始出现并发展,只要控制住成本,装配式建筑将是农村住宅的趋势。
问题 10
为什么好多保障房用装配式建筑,商品房有吗?
以后会越来越多
由于保障性住房是政府投资建设,对品质有较高要求,装配式建筑在品质上更有保障,加之保障房大规模建设、户型标准化程度相对高,使用同一构件的数量多,利于工厂化批量生产,提高经济效益,因此各地都将保障房作为推动装配式建筑的主力军。
目前,有实力的商品房开发商也在积极应用装配式建筑。但是由于商品房的户型多样、标准化较低,而且由于前期开发和后期物业维护分离,开发商从经济角度出发,重视开发建设成本,没有对后期运营维护成本低、节能减排效益高的装配式建筑加以重视。
2017年是北京市装配式建筑发展的重要一年,最新通过的《关于加快发展装配式建筑的实施意见》,提出到2020年实现装配式建筑占新建建筑的比例达到30%以上的目标。而且还要在面积奖励、财政资金奖励、税收优惠、房屋预售等方面激励装配式建筑的落地。未来,相信装配式建筑在保障房和商品房会更多。
北京已完成的装配式商品房
(欢迎各大媒体转载,全面宣传推广装配式建筑!转载请注明出处)

BIM建筑网





































