PC技术
预制混凝土构件技术
通过研究客户需求、产品定型,
进而实现工厂预制、现场装配的生产方式
以提升产品品质性能为目的
以提升产品生产效能
PC技术简述
在我国早就有PC这种工法的应用,但目前还没有相应的技术规范及政策支持,所以如何使国外的先进技术与我国现有的设计标准相融合、匹配,最终配合相关部门形成行业标准,需要设计单位通过配件工厂及施工现场做出大量的研讨和试验工作,才能真正地将该技术掌握并在国内工程中加以广泛的应用。
香港PC技术
香港政府为支持住宅产业化的推行,对采用PC技术的项目在容积率指标上比非PC体系的项目优惠十个百分点。同时专设香港建筑事物监督屋宇署,对PC进行品质控制和质量监督。对参观香港大角咀PC住宅项目的基本情况的直观感觉:整个小区50多栋住宅,每栋为58层的超高层住宅,每单元8户的照准户型,全部采用标准PCF外墙体系,粗略估算该项目规模为建筑面积200万-300万平方米。
1、香港PC工程现场照片
大角咀住宅项目
2、日本PC工程现场照片:
日本模式与香港模式的粗略比较
(一)、PC的应用范围比较:
香港PC结构构件主要包括阳台、楼梯、凸窗、空调板及PCF墙板五部分,主要应用于高层住宅和公寓,多以剪力墙结构体系为主;对梁、柱、楼板的PC构件应用目前仅用于少量五层以下的中小学等框架结构。
日本PC结构构件没有太多限制,除阳台、楼梯、凸窗、空调板、PCF墙板五部分外,梁、柱、楼板,包括整体卫生间、整体厨房等均可使用,所以评价日本的建筑是否采用PC不单纯指哪些构件,而是看它采用PC的百分比,比如80%的PC,甚至做到100%PC,整栋楼全部工厂装配。
(二)、构件配筋方式的比较:
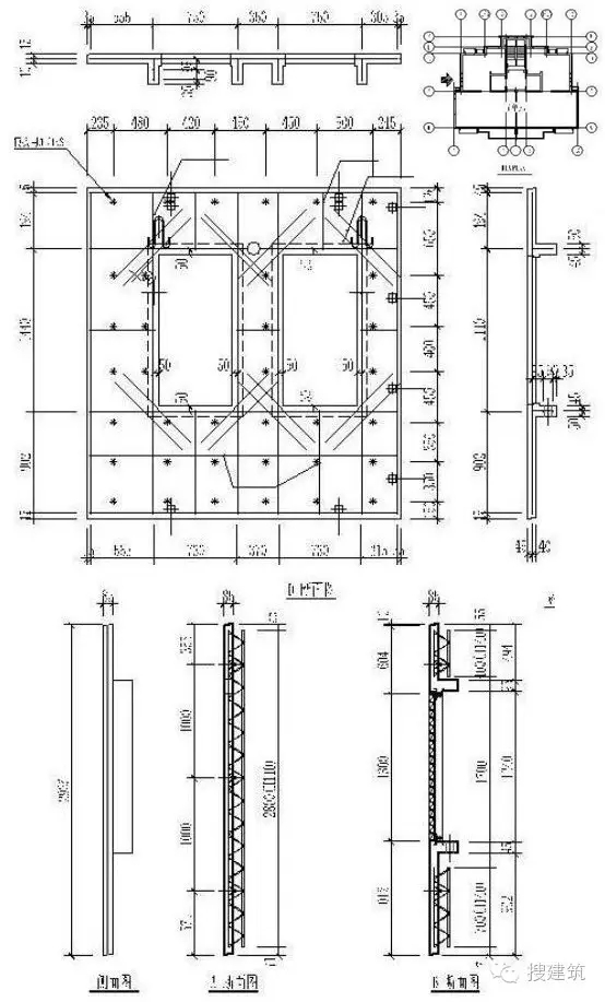
香港模式的PCF构件采用普通直锚式拉结筋,混凝土板无加强构造,预制构件的刚度较小,强度也不能保证,在运输和吊装等施工过程中会产生裂缝及较大变形,必须采取补强设备防止构件破坏,这样就使施工成本增加较多。直锚式钢筋是一种开放式的拉结筋,构造相对简单,只适用于香港这种非抗震地区使用。通过在香港的考察,PCF板的厚度多为100mm。
日本模式的PCF构件采用纵横双向桁架筋,可以保证预制构件在脱膜、运输、吊装、存放过程中具有足够的刚度和强度,不会产生裂缝及过大的挠度变形,桁架筋是一种封闭式的拉结S筋,能使预制构件与主体结构构件叠合得更牢固,整体性更强,具有良好的抗震性,适合抗震地区使用。
(三)、PCF与结构主体关系的比较
香港模式的PCF为纯外挂构件,不参与结构主体受力工作,所以构造配筋较简单。
日本模式的PCF可将PC内部一定的厚度与结构外墙或框架柱的钢筋保护层叠加工作,从而减薄外墙厚度,增加可用面积。
(四)、适用范围的比较:
香港PC模式是近年来在日本模式的基础上模仿、简化,以适应香港当地的情况总结出来的一种模式,相对日本模式较为粗糙,节点简单,技术工艺不及日本精湛,但没有规范限制,可操作性强。
纯日本PC结构体系在现有国家规范要求下存在无法完全照用的问题。我们无法将PCF的一部分加入结构主体的计算,没有相应的计算软件、验算方法,无相应的规范可遵循。在日本各大建设集团均有完善的设计、制造工法,相当于行业标准;它是通过这些建设集团的雄厚试验基地和实践项目积累出的经验数据作后盾;日本是个多地震国家,PC工法形成了完整、可靠的设计制作施工流程。
具体操作措施:
中国院上海中森独立完成PC设计的上海万科金色里城B04地块项目中,融合两种PC的工法,结合90小户型特点,采取以下措施:
•结构主体采用剪力墙体系,使室内小空间尽量完整。
•在PC应用范围上参照香港模式,外围护体系为纯PCF形式,楼梯段为PC构件。
•在PC与结构主体关系上以PC不参与主体工作,纯外挂考虑,使项目在工期紧,无法进行实验检验的情况下,能使项目得到相关部门的批准,尽快合法化。
•同时发挥日本PC工法的优势,细部节点处理细致,安全性能好,交接缝的防水措施牢固,外部构件的配臵更美观、人性化。
•PC外墙厚度尽量减薄,发挥日本PCF丰富的计算经验和缜密的配筋方案,由原来的95mm减到85mm,减小外墙厚度,加大使用空间。
PC施工工艺介绍:
1、制作不同大小、形状的PC钢模具(一般须45天左右)
2、绑扎PC内钢筋
3、在钢模中铺贴瓷砖、安装窗框
4、再放入事先已绑扎好的钢筋、各类预埋件(保护层垫块等)
5、经过加工厂、总包、监理的隐蔽验收,浇捣混凝土
6、混凝土蒸汽养护,蒸汽养护6~9小时后,砼强度达到70%后脱模、清洗
7、检查合格后,按工地的进度装车、送至工地
8、工地吊装施工(目前上海万科浦东金色里程的PC项目外墙板、叠合楼板、楼梯、阳台、空调板等为PC,其余柱、梁等为现浇)
成果案例分析:
以高层单元住宅和多层联排住宅为主的高品质居住小区,高层部分尝试采用了PC技术
高层住宅以简洁的现代风格为主要格调,尽量保持各楼层的一致性,确保更有效的工业化生产模式。
实景照片
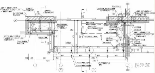
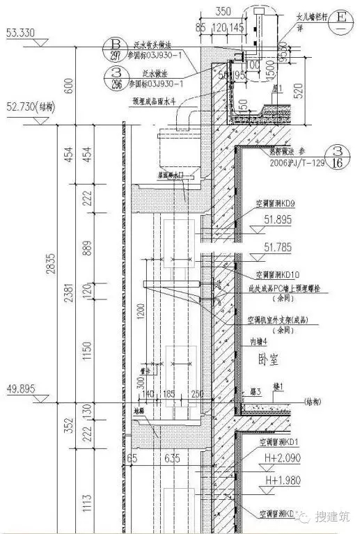
预制混凝土板工厂加工,现场施工时作现浇混凝土的模板。外墙、窗、阳台、楼梯、空调板等预制。
PC位置示意
工业化生产
现场吊装
框架剪力墙结构主体
外挂PC构件
拼接组合
立面图
标准层户型鸟瞰
室内设备管线
结构板上预留100厚建筑面层,做架空楼板,下走管线和地暖,与结构主体脱离
内隔墙采用轻钢龙骨石膏板,内填吸声棉,当中可走管线。房间分隔可自由调整,管线方便维修。
设备管线综合
(欢迎各大媒体转载,全面宣传推广装配式建筑!转载请注明出处)
装配式建筑

BIM建筑网


















































