万科工业化住宅
模块造梦,这是王石的梦想,也是万科人的梦想,万科在住宅工业化方面远远走在了时代的前列,今天就从住宅工业化管理(设计、采购、施工)、成本分析(构件费、施工费)等方面分享万科住宅工业化的成果……
一、万科对工业化的理解
这模块造梦
万科对工业化的理解,像造汽车一样造房子
现有技术体系
❶内浇外挂体系
❷PCF体系
❸预制剪力墙体系
❹全预制剪力墙、夹芯保温剪力墙
万科现有工艺
万科已实现无外架施工、石材面砖反打、窗框预埋、免抹灰
工业化住宅PK传统住宅
二、万科对工业化的理解
工业化设计管理
工业化采购
工业化施工–工期管理
工业化施工-质量管理
工业化施工-安全管理
三、万科工业化住宅案例
万科翡翠公园—预制体系
采用上海万科第三代PC技术体系(预制率28%)
万科翡翠公园—工业化设计
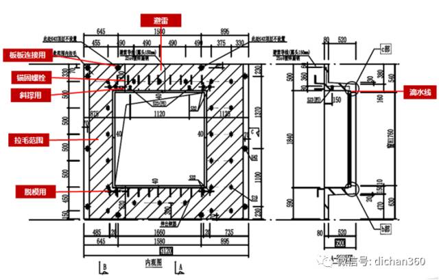
万科翡翠公园—pc设计图
详细反映各块板上的预埋件等信息,并将地漏、新风洞、空调洞等准确预留,实现无后开槽
万科翡翠公园—场地布置图
PC占地面积大,考虑PC堆场、起吊顺序、起吊部位等提前进行系统规划
万科翡翠公园—无外架施工
万科翡翠公园—PC质量管理
万科翡翠公园—安全文明管理
万科翡翠公园—人性化管理
四、万科工业化住宅展望
(欢迎各大媒体转载,全面宣传推广装配式建筑!转载请注明出处)
微信公众号:xuebim
关注建筑行业BIM发展、研究建筑新技术,汇集建筑前沿信息!
← 微信扫一扫,关注我们+

BIM建筑网




































