13日,北京市住房和城乡建设科技促进中心主办的2装配式结构016年第二期“推进住宅产业化工作”——装配式剪力墙结构住宅公益讲座在京举办。
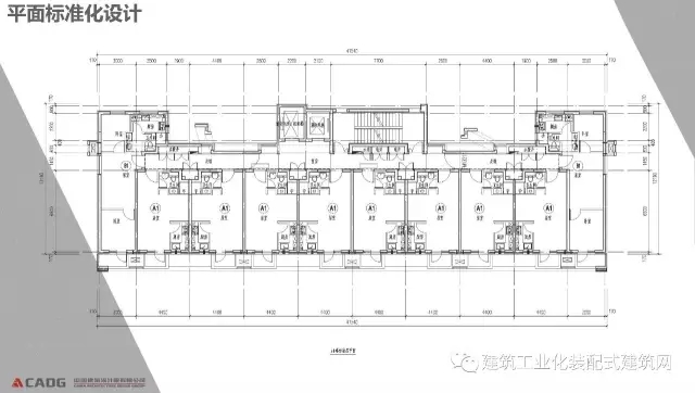
赵钿院长以《从郭公庄一期公租房项目看开放式街区规划与装配式建筑发展》为题,阐述了开放式街区设计和关于装配式建筑的思考。并结合郭公庄一期公租房项目,介绍了该项目开放式街区设计、装配式建筑标准化设计及装配式内装等内容。本网现全文转载,以期与读者共享。
赵钿院长演讲全文(共110张图片):
(欢迎各大媒体转载,全面宣传推广装配式建筑!转载请注明出处)
微信公众号:xuebim
关注建筑行业BIM发展、研究建筑新技术,汇集建筑前沿信息!
← 微信扫一扫,关注我们+

BIM建筑网
















































































































