青浦新城63A-03A地块普通商品房
全国装配式建筑科技示范项目
全国建筑业绿色施工示范项目
上海市装配式建筑示范工程
上海市工业化科研的示范工程
▲鸟瞰图
青浦新城63A-03A地块普通商品房项目是全国装配式建筑科技示范项目、全国建筑业绿色施工示范项目、上海市装配式建筑示范工程、上海市工业化科研的示范工程。项目位于青浦新城东部,属于上海市青浦区新城一站大型社区的规划范围,项目总用地面积27938.2平方米,包括8栋16-18层装配式住宅(其中8#楼裙房为社区和商业配套)、一座地下车库、一座垃圾房和一座变电站,总建筑面积83218.35平方米,其中地上建筑面积56917.49平方米(其中计容面积为55873.69平方米),地下建筑面积为26300.86平方米。项目建筑面积100%实施装配式建筑,单体预制混凝土装配率≥30%。作为绿色示范工程,项目采用了多项先进绿色、节能技术,取得很好的效果。
项目信息
项目名称:青浦新城63A-03A地块普通商品房项目
建设单位:上海宝悦房地产开发有限公司
建设地点:基地东至规划五路,西至规划地块,南至北淀浦和路,北至规划四路
建筑类型:住宅社区
设计/建成:2014年/在建
总建筑面积:83218.35m2
建筑高度/层数:59.15米/18F
容积率:2.0
设计单位:华建集团华东都市建筑设计研究总院
深化设计单位:宝业集团上海建筑工业化研究院
构件生产单位:上海宝岳住宅工业有限公司
施工单位:浙江宝业住宅产业化有限公司
▲区位图
▲总平面图
【建筑专业】
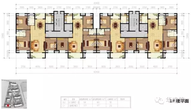
小区住宅楼层数主要为16~18层,标准层层高2.95m。户型以一梯四户和一梯两户为主,每单元设2台电梯和1部疏散楼梯,地下一层为机动车与非机动车库及设备用房。
住宅房型设计以标准化模块化为基础,以可变房型为设计原则。住宅3层以下竖向构件采用现浇,顶层屋面采用现浇,其余楼层采用预制。立面造型风格简洁明快,具有工业化建筑的特点。
▲6#楼效果图
▲2#楼效果图
▲7#楼(左)、8#(右)楼效果图
1.标准化模块化的设计
项目设计围绕基于工业化建筑的标准模数系列,形成标准化的功能模块,设计了标准的房间开间模数,标准的门窗模数,标准的门窗洞口尺寸,标准的交通核模块,标准的厨卫布置模块,并将这些标准化的建筑功能模块组合成标准的住宅单元,各功能模块的尺寸详见下表。
表:房型标准化
▲标准化的楼梯构件(左)与标准化的阳台构件(右)
根据标准化的模块,再进一步拆分标准化的结构构件,形成标准化的楼梯构件、标准化的空调板构件、标准化的阳台构件,大大减少结构构件数量,为建筑规模化生产提供了基础,并显著提高构配件的生产效率,有效地减少材料浪费,节约资源,节能降耗。
▲标准化的空调版构件
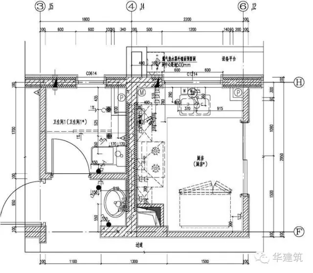
2.实现基于装配式建筑的土建装修一体化
为有效节约资源(节能、节地、节水、节材)、保护环境、减少污染,给人们提供健康、实用和高效的使用空间,打造与自然和谐共生的绿色二星建筑,项目以建筑-装修一体化设计取代传统离散化的装饰装修,用规模化、规范化的工业化生产取代劳动密集型粗放不规范的个体手工业生产,提高项目装饰装修的安全、美观、健康、环保等建筑性能。在方案设计阶段,充分考虑精装修与土建设计同步进行,土建专业、装修专业之间互相协调协同工作。在建筑施工图阶段,做好各工种的集成,在施工图中注明机电管线、点位及设备孔洞的预留,并在构件深化图中一一标注,指导结构构件工厂化制作。不破坏和拆除已有的建筑构件及设施,避免二次装修的拆除破坏和浪费,从根本上节约建材和建造成本。
▲装配式建筑机电点位图
【结构专业】
1.装配式结构体系概况
本地块所有住宅单体皆采用装配式剪力墙结构体系,主要预制构件包含叠合墙板、全预制剪力墙、叠合楼板、叠合梁、预制阳台、预制空调板、预制楼梯;各单体采用的预制率、外墙面积率、装配式结构体系见下表,单体预制率皆大于30%,满足相应的土地出让文件要求。对4#楼单体内各类型的预制构件的体积进行统计,单体预制率为31.2%。
表:单体预制率统计表
表:预制构件占单体预制率的比例统计表
2.结构体系
1)双面叠合剪力墙结构
双面叠合剪力墙结构,是指由叠合墙板和叠合楼板,辅以必要的现浇混凝土剪力墙、边缘构件、梁、板,共同形成的剪力墙结构。叠合墙板,由内外叶两层预制墙板与桁架钢筋制作而成。现场安装就位后,在节点连接区域采取规定的构造措施,并在内外叶墙板中间空腔内浇注混凝土,预制叠合墙板与边缘构件通过现浇段连接形成整体,共同承受竖向荷载与水平力作用;叠合楼板,由底部预制层和桁架钢筋组合制作而成。运输至现场辅以配套的支撑进行安装,并在预制层上设置与竖向构件的连接钢筋、必要的受力钢筋以及构造钢筋,以其为模板浇筑混凝土叠合层,与预制层形成整体共同受力。
叠合墙板、叠合楼板充当现场模板,省去了现场支模拆模的繁琐工序,预制构件在制作过程中采用全自动流水线进行生产,工业化程度较高,是发展住宅工业化行之有效的方式。
▲叠合墙板三维模型示意图
▲预制叠合墙板的示意图
▲叠合楼板的示意图
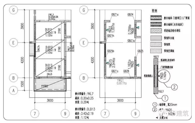
2)预制构件平面拆分图
对4#楼单体内的预制构件代号汇总如下表所示。
表:预制构件代号
预制构件种类
预制构件代号
预制构件种类
预制构件代号
预制外墙
YWQ
叠合梁
YKL
预制内墙
YNQ
预制梁
DKL、DLL
叠合楼板
DLB
预制阳台
YYTB
预制楼梯
YLT
预制空调板
YKTB
预制构件的平面布置图、立面布置图,通过不同的填充图例对预制构件与现浇段进行区分。平面布置图中详细注明了构件编号、尺寸、重量、支撑方向等,同时还示意了叠合楼板拼缝位置,水电预埋位置等,为现场施工提供可靠的数据支持。
▲预制构件的平面拆分图
▲预制构件的三维拆分图
3)构件拆分的原则
A)综合立面表现的需要,结合结构现浇节点及装饰挂板,合理拆分外墙。
B)注重经济性,通过模数化、标准化、减少预制构件类型,节约造价。
C)预制构件的大小考虑工程的合理性、经济性、运输的可能性和现场的吊装能力。对于4#楼出现的预制构件的最大尺寸及重量统计如下表。
综上,本项目单块预制外墙板重量不大于3吨。为减轻构件自重,降低运输和吊装难度,使板块划分和塔吊选择更为自由;同时为了满足计算模型的假定,部分山墙及窗下墙采用填充泡沫板等减重、减刚度的措施。
表:最大预制构件尺寸及重量统计表
4)基于Allplan的钢筋碰撞检查
本项目采用内梅切克的Allplan工程软件进行构件钢筋的碰撞检查,根据碰撞检测的结果,调整、修改钢筋间距和位置,降低现场施工难度。
▲L形节点的三维模型
▲一字形节点的三维模型
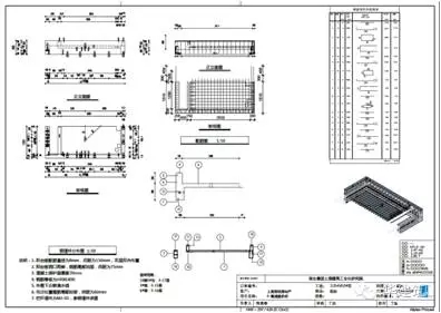
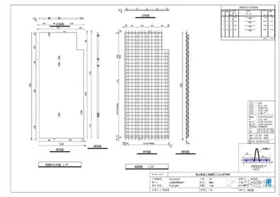
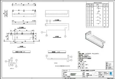
5)预制构件的深化设计
本项目采用内梅切克的Allplan工程软件进行构件的深化设计,模型建立之前先定制预制墙板,楼板,梁,阳台,楼梯,空调板等预制构件深化原则,建立预制件钢筋的类型、形状、预埋件信息、节点大样等族库。自定义好各项参数后,在软件中根据结构拆分方案进行实体模型的建立,包括墙板的尺寸,门窗洞口,局部开孔开洞等信息;实体模型搭建准确无误后,设置安装用支撑预埋件,机电预埋管线,精装修点位埋件预埋,模板埋件、塔吊埋件等预埋件的设置;最后进行钢筋的配置及调整,洞口补强钢筋,钢筋间距的调整。
▲叠合墙板设计三维图
▲预制阳台深化设计三维图
▲叠合墙板设计三维图
▲预制楼梯深化设计三维图
▲预制设备平台深化设计三维图
进行三维建模设计好构件后,再制定出图样式标准包括尺寸标注、图形比例、钢筋埋件、构件列表、设计说明以及图纸的项目名称、构件编号、绘制人及日期等信息,将三维图转化为二维图纸以供生产和施工使用。
▲叠合墙板深化图
▲预制阳台深化图
▲叠合楼板深化图
▲预制楼梯深化图
▲预制设备平台深化图
【设备专业】
项目在可变房型的基础上,在有限的层高和开间内,建筑与机电设计师共同研究提出了一系列的尝试,将机电管线与结构墙体的分开设置,有效的减少和避免了在结构预制构件上的留洞,避免了装修、机电管线的变化对主体结构的破坏,有效地解决了可变房型的机电适应性,在建筑的全寿命周期内实现了真正的绿色建筑。
▲机电管线与结构墙体的分开设置
厨卫的一面墙体不布置结构构件和机电管线,使得厨卫空间能够自由的变化,满足各种家庭的使用需求,卫生间采取了同层排水措施满足空间可变的要求。
▲厨房空间可变
▲侧墙式同层排水
【创新点】
1)预制构件的连接节点
为进一步提高装配式混凝土结构的经济性,考虑到现浇部分的结构边缘构件标准化,所有一字型构件尺寸为200*400,L型构件尺寸统一为500*500,丁字型构件尺寸为400*400,节约了铝模板的品种和数量,有效的减少了装配式建筑的造价。
▲一字型现浇构件
▲L型现浇构件
▲T型现浇构件
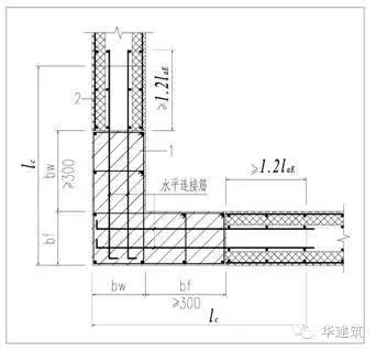
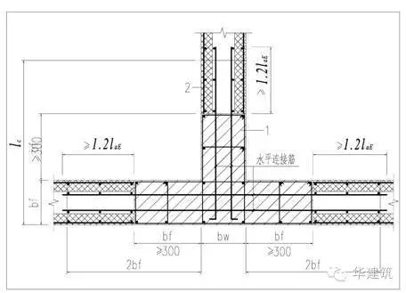
2)与常规的全预制剪力墙相比,叠合板式剪力墙边缘构件具有如下特点:
①预制双面墙板、叠合楼板充当现场模板,省去了现场支模拆模的繁琐工序,整个体系在制作过程中工业化程度较高,可采用自动流水线生产,是发展住宅工业化行之有效的方式;同时墙体的质量比全预装配式研发制剪力墙减轻一半,相应的减少了施工中制作、运输、吊装等过程中的措施费用。
②与全预制剪力墙相比,双面叠合剪力墙侧面不出钢筋,这样能最大限度的避免现场放置钢筋时产生碰撞,极大提高了施工效率。
③非边缘构件的叠合剪力墙体水平分布筋、竖向分布筋皆预制在叠合剪力墙内,边缘构件区域由箍筋代替墙体分布筋,边缘构件与剪力墙身采用现场工人放设附加钢筋做法的方式连接。
④为提高结构的整体性,剪力墙在边缘构件区域采用现浇,其余非边缘构件区域采用双面叠合剪力墙,两侧预制墙体厚各50mm,中间现浇剪力墙部分100mm。
▲“L”型约束边缘构件
▲“T”型约束边缘构件
▲“L”型构造边缘构件
▲“T”型构造边缘构件
▲构件钢筋预制在叠合墙内
▲边缘构件钢筋现场放置
3)与常规的全预制剪力墙相比,叠合板式剪力墙边缘构件具有如下特点:
①竖向分布钢筋在工厂中预制在叠合墙板内,连接钢筋由工人在现场放设。
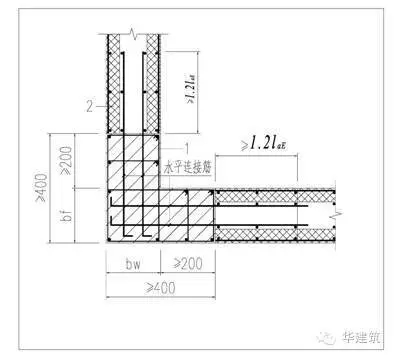
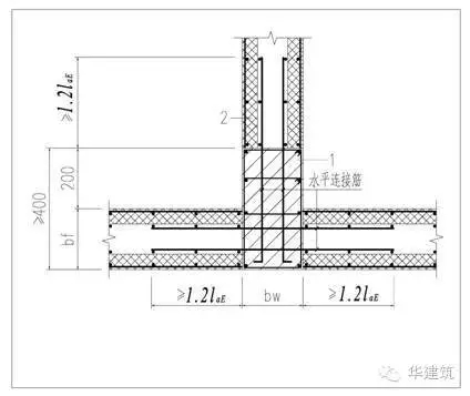
②叠合板式剪力墙预制墙板的竖向接缝与水平接缝处,布置连接钢筋,且连接钢筋应通过计算确定;连接钢筋的直径和截面积分别不应小于预制墙板内配置的竖向、水平分布钢筋。竖向连接钢筋与预制墙板内纵筋搭接长度不应小于1.2la(laE),上下端头错开距离不应小于500mm。
▲叠合式墙板竖向钢筋搭接
▲叠合式墙板水平钢筋搭接
▲双层叠合板式剪力墙体系
▲户型装配率解析
青浦新城63A-03A地块普通商品房项目拟建8栋16-18层装配式住宅,预制结构形式采用双面叠合混凝土剪力墙结构、装配整体式混凝土剪力墙结构、装配整体式预应力混凝土框架结构。设计团队通过优化的整体设计及连接构造,在实施过程中引入BIM技术以实现建筑信息化管理,并通过试验和有限元的方法对预制构件的性能进行研究和探讨。在项目的实施和推进过程中,设计、生产、施工单位间密切交流沟通,为装配式建筑的顺利实施提供了坚实的基础。通过不断学习、交流、探索和总结,团队在建筑信息化的道路上迈出了坚实的一步,相关成果将为推动我国建筑工业化的发展贡献一份力量。

BIM建筑网


























































