来源:同济设计四院
项目信息
结构类型:高层框架-剪力墙结构、剪力墙结构
建设地点:上海市浦东新区
建筑面积:53800㎡
项目团队:住区养老事业部——结构团队
如果2010年让世界知道了上海浦东有个后滩,那么如今“前滩”必定是热词。而在这个即将成为上海新的世界级中央商务区的地方,同济设计也已呈现出最高品质的设计作品。
项目概况
业主:三湘地产
建筑性质:住宅
建设地点:上海市浦东新区桐晚路以东、前滩大道 以南、芋秋路以西、晓会路以北
层数:地下2层,地上12层
结构高度:41.4米
抗震设防烈度:7度(0.1g)
场地类别:上海IV类
为贯彻十三五期间上海装配式建筑发展的指导思想, 并响应《上海市装配式建筑2016—2020年发展规划》。前滩36地块住宅项目均采用装配整体式混凝土结构,单体预制率≥25%,立面覆盖率≥50%。住宅外墙采用预制夹心保温墙体,预制夹心保温墙体面积可不计入容积率,不计容建筑面积不超过总建筑面积的3%。
1~3号楼装配式简介
结构体系:装配整体式框架-剪力墙结构。
预制构件的立面分布范围如下图,底部加强区和顶部退台层采用现浇结构,中间8层标准层采用预制结构,立面覆盖率S=66.7%>50%。
预制构件平面分布如下,单体预制装配率27.5%>25%
相较于常规的装配整体式剪力墙结构住宅,1~3号楼在结构方面做了一些创新
(一)适应建筑功能创新
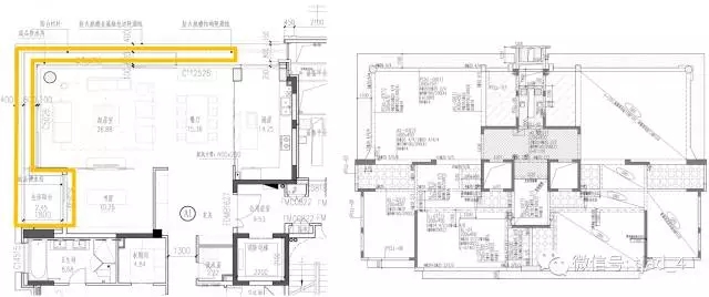
1.采用框架-剪力墙结构形式,大板跨的梁板布置方案。
户内竖向构件控制在极小范围,实现无梁无柱的大尺度起居空间。客厅面宽9.6米,客厅、餐厅、书房、玄关80㎡的空间无柱无梁,装修空间灵活,可塑性强。少次梁的大板方案可以充分发挥楼板的承载能力,提高结构经性,同时有利于建筑功能的灵活分隔。
客、餐厅仅设一根角柱,基本无遮挡的引入北侧黄埔江景。
BIM技术运用
通过BIM碰撞检查协调解决各专业之间错漏踫缺问题,减少施工现场返工造成的施工成本
通过BIM技术进行各专业管线综合后,形成结构构件预留洞图,指导施工现场进行构件留洞及套管定位,避免由于后期施工现场调整开洞损坏结构。
4,5号楼装配式简介
结构体系:装配整体式剪力墙结构。
预制构件的立面分布范围如下图,底部3层和顶部退台层采用现浇结构,中间8层标准层采用预制结构,立面覆盖率S=66.7%>50%。
4,5号楼均为复式户型,奇数层平面开大洞除周边为叠合梁外,楼板和内部梁均为现浇;偶数层部分区域采用叠合楼板,预制构件平面分布如下,单体预制装配率25.8%>25%
奇数层预制构件分布图
偶数层预制构件分布图
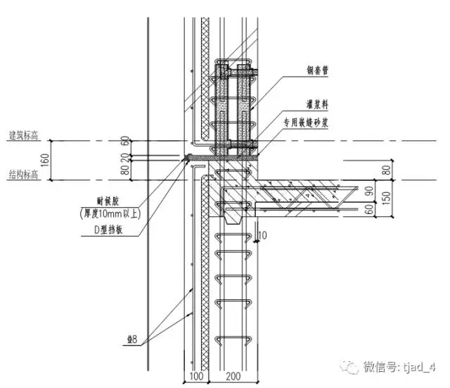
预制构件连接简介
1.预制剪力墙竖向筋连接采用灌浆套筒梅花型连接:
2.预制外墙填充墙与现浇剪力墙的连接:
3.夹心保温预制剪力墙内页板和外页板见的连接:
支承连接件
限位别针
4.剪力墙边缘构件过渡装配式建筑段和中间段的连接:
过渡段连接
中间段连接
结语
上海——生机勃勃的创新之城,绿色环保的装配式住宅,已开始慢慢改变我们的生活。
我们将在设计中不断探索与进步。
结合更多的先进技术
让装配式住宅真正以人为本
……

BIM建筑网






















