谢旺兰:“上海天华建筑设计有限公司总工程师,研究领域预制混凝土结构、超限高层混凝土结构、预应力混凝土结构;主编国标图集《装配式混凝土结构连接节点构造(剪力墙)》、《预制装配式混凝土结构连接节点构造(楼盖和楼梯)》,参编《全国民用建筑工程设计技术措施装配式建筑专篇》-装配式混凝土设计(剪力墙结构住宅)、多本上海市标准及行业标准。”
本文从装配式结构设计流程、构件组成分析,设计分析、连接设计、深化设计、案例分析六个方面介绍了装配式混凝土框架结构设计要点,结合多年工作经验总结了装配整体式混凝土框架结构设计过程中需要注意的问题。
一、装配式结构设计流程
从设计角度比较现浇式建设流程和装配式建设流程(见图1)。装配式建筑建设过程中因为包括构件生产的环节,必然会增加构件加工图设计,就是通常所说的构件深化设计。根据装配式建筑的特点,主体结构施工需要与内装设计同步进行。除此以外,装配式建筑建造技术含量较高、装配式建筑容错性很差,如果设计阶段发生错误就会造成很大损失。所以,在装配式建设流程前期中还增加了技术策划这个阶段,而技术策划这个阶段又往往被忽视。一方面设计单位接触这个内容比较少,另一方面开发商的装配式建筑项目比较少,所以都没有注重技术策划阶段。装配式建筑设计和传统设计较大的差异就是有贯穿始终的协同设计过程,从技术策划直到主体施工、内装施工,都要与业主、设计各专业、施工单位协同、协作(见图2)。
(a)现浇式建设流程
(b)装配式建设流程
图1 现浇式建设流程和装配式建设流程的比较
图2 技术协同贯穿装配式设计流程
装配式建设流程中有三个重要环节(见图3):
图3 装配式设计流程特点
第一,前期技术策划十分重要,主要是分析产业政策,设计师除了考虑政策目标,同时要考虑客户的利益需求最大化,有时客户的想法远远超过政策目标,那么就要兼顾政策同时达到产业化目标,从而确定技术方向。前期的技术策划,对整个装配式建筑设计的技术走向至关重要,对成本影响特别大。
第二,技术协同贯穿设计全过程。过去传统设计停留于设计院内部的建筑、结构、设备、内装专业配合,如毛坯房交付这样的简单设计连内装专业都没有,专业配合很少。而在装配式建筑中,内装设计的配合就极其重要,和设计单位、建设单位、生产单位都需要协作,比如考虑深化设计、生产能力等。
第三,构件深化设计繁复琐碎,装配式建筑都需要做构件的深化设计,这部分设计内容在传统设计中不是放在设计院做,而是放在加工厂做,而对于装配式建筑,有些设计院和加工厂不愿意或没有能力做构件的深化设计,深化设计的内容比想象的多得多,要考虑的问题也和传统分工差距比较大。传统建筑设计对施工问题考虑得很少,装配式建筑设计必须考虑生产、吊运、现场施工等要求,内容繁琐复杂。
二、装配式框架结构件组成分析
1
装配整体式结构设计的一般要求
1)建筑设计应遵循少规格、多组合的原则
2)宜采用主体结构、装修和设备管线的装配化集成技术
3)建筑设计应符合建筑模数协调标准
4)围护结构及建筑部品等宜采用工业化、标准化产品
5)宜选用大开间、大进深的平面布置
6)宜采用规则平面和立面布置
结构设计是一个复杂的体系,但是做装配式建筑设计是需要把复杂的体系分步骤来解决问题的。做装配式建筑首先很重要的是要具有工业化的思维,就是我们常说的概念设计,只要把成本因素、施工的便利性考虑进去,就比较合理。例如,我们说标准化是为了降低成本,不做标准化设计构件规格和数量就会很多,必然会提高成本。对于施工的便利性,传统设计中开间会选用2-3m的跨度,板厚度较小,而对装配式的叠合楼板来说,可能4-6m是比较合适的正常板跨,也有一些案例选取了更大板跨。
2
装配整体式结构最大适用高度
设计时首先要考虑装配式结构是否适合在该建筑中应用,图4的表格给出了装配整体式结构与现浇结构体系的最大适用高度,如果结构体系的主要抗侧力构件节点连接采用现浇混凝土,应该能满足受力要求(装配整体式剪力墙结构和装配整体式部分框支剪力墙结构,在规定的水平力作用下,当预制剪力墙构件底部承担的总剪力大于该层总剪力的50%时,其最大适用高度应适当降低;当预制剪力墙构件底部承担的总剪力大于该层总剪力的80%时,最大适用高度应取表6.1.1中括号内的数值)。差别有三点:1)9度抗震设防烈度不适用于装配式混凝土结构;2)装配式框架结构及装配式框架-现浇剪力墙结构的最大适用高度与现浇式结构相同;3)装配式剪力墙结构的最大适用高度有所降低。
图4 装配整体式结构与现浇结构最大适用高度
3
框架结构和框架-剪力墙结构的预制构件
装配式框架结构和框架-剪力墙结构建筑的预制构件包括:柱(全预制柱)、梁(叠合梁、全预制梁)、板(叠合板(免模或免模免撑)、全预制板)、楼梯(全预制楼梯)、外墙板(全预制外墙板(单墙或夹心保温))、女儿墙等(见图5),这里所说的外墙板不是指剪力墙,而是指外挂墙板,因为框架-剪力墙结构中的剪力墙部分按体系要求必须是现浇的。以下内容较少涉及外挂墙板、楼梯和女儿墙等,主要针对抗侧力构件。笔者认为一个装配式建筑连主体结构都未采用装配式,离装配式建筑的标准就还有一段距离。
(a)装配式框架结构三维示意图
图5 框架结构和框架-剪力墙结构的预制构件
4
预制构件布置负面清单
并不是所有的结构都适合采用预制构件。标准为设计人员提供依据,设计人员也习惯用标准约束行为,在现行规范下,
1)装配整体式框架-剪力墙结构的剪力墙部分应该是整体现浇的,不适宜采用预制构件。
2)高层装配整体式结构,《装配式混凝土结构技术规程》JGJ 1-2014(后简称JGJ 1)中规定:
6.1.8 高层装配式整体式结构应符合下列规定:
1 宜设置地下室,地下室宜采用现浇混凝土;
2 剪力墙结构底部加强部位的剪力墙宜采用现浇混凝土;
3 框架结构首层柱宜采用现浇混凝土,顶层宜采用现浇楼盖结构。
高层装配整体式结构的框架结构宜设置地下室,地下室顶板不宜采用装配式,宜采用现浇混凝土;需要特别注意,装配整体式框架结构中预制柱水平接缝处不宜出现拉力,这种情况下不能采用装配式。
3)带转换层的装配整体式结构,JGJ 1中规定:
6.1.9 带转换层的装配整体式结构应符合下列规定:
1 当采用部分框支剪力墙结构时,底部框支层不宜超过2层,且框支层及相邻上一层应采用现浇结构;
2 部分框支剪力墙以外的结构中,转换梁、转换柱宜现浇。
4)装配整体式结构的楼盖,JGJ 1中规定:
6.6.1 装配整体式结构的楼盖宜采用叠合楼盖。结构转换层、平面复杂或开洞较大的楼层、作为上部结构嵌固部位的地下室楼层宜采用现浇楼盖。
5)装配整体式框架结构预制柱,JGJ 1 中规定:
7.1.3 装配整体式框架结构中,预制柱水平接缝处不易出现拉力。
5
框架结构和框架-剪力墙结构的预制率
根据上海的《上海市住房和城乡建设管理委员会 关于本市装配式建筑单体预制率和装配率计算细则(试行)的通知》(沪建建材[2016]601号)文要求计算出来的预制率(见图6)。很多地方政府部门提出了装配式建筑比较重要的两个指标:预制率和装配率。如果框架结构和框架-剪力墙结构所有的构件都采用预制,一个框架结构采用免模楼板计算的预制率系数能达到73%,如果采用免模免支撑楼板能达到78%,这个数据并不是用预制混凝土构件部分与建筑全部混凝土总体积比例产生的,而是根据601号文用权重系数计算出来的。如果符合设计条件,用601号文可以计算出更高的预制率。图6表示的是框架-剪力墙结构如果所有的构件都采用预制构件,预制率系数达到80%左右,那么按照这个文件计算预制率就可以达到40%上下,满足上海地区的要求。这种计算结构都没有包括使用外挂墙板和预制隔墙的情况,其实在框架结构和框架-剪力墙结构中还是有机会使用外挂墙板,如果选用外挂墙板后,甚至可以选择比较少的其他构件采用预制。
图6 框架结构和框架-剪力墙结构的预制率
装配式框架结构构件组成方式有三种:1)按照体型分类,预制构件有一维的、二维的、三维的,现在常用的是一维的构件 ,主要针对的是杆系体系的框架结构;2)从节点形式分类,节点选用预制(图7(a)~(c))或现浇(图7(d));3)以柱的形式分类,分为单层或跨层。现在常用的还是一维杆件,优点是构件容易预制安装,提供了在节点调整误差的余地,如图8中跨层截断式柱的情况。从安全的角度来说,三维的构件安装精度要求高,但从制作的角度来说,三维构件制作难度大,占用场地更大,运输维护困难更大。
(a)预制节点一
(b)预制节点二
(c)预制节点三
(d)现浇节点
图7 装配式框架结构预制与现浇节点
图8 一维构件跨层截断式
6
楼盖结构布置形式
楼盖结构的布置形式有单向板和双向板两种,布置形式会影响到主体结构的设计。布置时需要考虑三个因素:构件的生产、构件的运输和吊装、构件的连接,这三个问题都是装配式结构区别于现浇混凝土结构的要点,如JGJ 1中的图6.6.3所示。
三、装配式框架结构设计分析
1设计方法
从设计方法上说,规范明确了装配式框架结构等同于现浇混凝土框架结构,不是说连接、构造等做法都等同于现浇混凝土框架结构,而是指性能上等同于现浇混凝土框架结构,节点满足现浇结构要求,如JGJ 1的7.1.1描述。
7.1.1 除本规程另有规定外,装配整体式框架结构可按现浇混凝土框架结构进行设计。
2抗震等级
从抗震等级上来说几乎没有差别,微小差别是对建筑高度分界有所不同,限高数据要求有所变化,如JGJ 1中的表6.1.3所示。
3结构布置及构件设计
从结构布置来看,还是需要有工业化思维。装配式建筑的要求是对齐,柱网布置对齐,梁柱对中布置,在现浇混凝土结构设计中,构件贴边放置的情况大量存在,而在装配式建筑中,构件贴边放置就被认为是不合适的方案,因为构件放在中间并不会影响主体结构的设计,而放在边上确实严重影响节点的连接。装配式建筑中,相交两方向梁底宜留设高差,如果忽视了高差,在节点处梁的钢筋会出现相遇的问题,现场再考虑避让会带来更多的问题,虽然也有办法解决,但是设计中留设梁底高差是更合适的选择。建筑大开间设计就会提到宜采用大板跨,减少梁数的要求。同时应该合理归并,减少构件类型。此外,以下这3条主要是为了节点连接的需要:1)采用适当的构件截面,避免配筋量过大,比如现浇结构中强调柱子宽度是梁宽度的1.5倍,而装配式建筑不特别强调;2)采用高强度钢筋,减小配筋量;3)采用大直径、少根数、大间距的配筋方式。
4分析模型及参数
装配式混凝土结构区别于现浇混凝土结构建筑还有以下几个方面:
1)梁支座模型为铰接或刚接:从连接便利的角度,梁采用装配式设计时采用铰接的支座模型比较好。框架梁不适合做铰接,这里指的是梁板梁的支座首选铰接支座,JGJ 1中指出:
4 应根据连接点和接缝的构造方式和性能,确定结构的整体计算模型。
2)楼盖面内刚度假定和梁刚度增大系数:这一点与现浇混凝土结构不同,梁的刚度放大需要考虑叠合板底板是预制的,预制部分和梁的连接处有缝,计算时预制底板不适合完全考虑平面内无限刚性假定的,规范也给出参考数据,增大系数1.3~2.0比现浇混凝土的系数要小。JGJ 1的6.3.4指出:
6.3.4 在结构内力与位移计算时,对现浇楼盖和叠合楼盖,均可假定楼盖在其自身平面内为无限刚性;楼面梁的刚度可计人翼缘作用予以增大;梁刚度增大系数可根据翼缘情况近似取为1.3~2.0。
3)周期折减系数::视围护结构对结构刚度的影响而定的,因为连接方式不清晰,外墙板对结构主体的影响到底有多大不易量化,需慎重使用周期折减系数,评估围护结构对主体结构刚度的影响。
4)楼板的布置方式会影响荷载传递路径:这里并不是说布置成单向板就一定按照单向板传力路径,采用合适的连接构造还是趋近于双向板的传力方式。如果完全布置成单向板,对结构传力路径还是有影响的。
5)混凝土保护层厚度:需要考虑钢筋连接的要求,因为连接套筒的直径都比较大,会向构件内部偏移,而且偏移数据还不小,比如柱的中心钢筋旁边会留出70mm,差距还是比较大的。
5位移角限值
装配式混凝土建筑的位移角限值要求与现浇混凝土建筑是一致的。增加了多层装配式剪力墙结构的形式,因为考虑到连接方式不同,多层装配式剪力墙结构允许相对弱的连接和刚性剪力墙不太一样,所以对位移角限值提出了1/1200的更严格要求,这也是考虑了连接的影响,JGJ 1中的6.3.3条和表6.3.3对此给出了叙述。
四、装配式框架结构的连接设计
1
接缝正截面承载力
具体到装配式框架结构连接设计,最重要的部分是连接方式和现浇混凝土结构不同。装配式整体式结构中,接缝的截面承载力应符合现行国家标准《混凝土结构设计规范》GB50010的规定,接缝的受剪承载力应验算并符合持久设计和地震设计状况,一般情况下连接部分的承载力都不会小于杆件,所以接缝的正截面受压、受拉及受弯承载力可不必计算,只需验算抗剪承载力。其中,接缝受剪承载力增大系数,抗震等级为一、二级取为1.2,抗震等级为三、四级取为1.1,在梁、柱端部箍筋加密区及剪力墙底部加强部位,有强接缝弱构件的要求,详见JGJ 1的6.5.1条。
2
预制柱底水平接缝的受剪承载力验算
具体到预制柱底水平接缝的受剪承载力的验算,在地震设计状况下,预制柱受压时底部水平接缝的剪力包括两个部分,一是构件摩擦抗剪,一是钢筋销栓抗剪。如果是预制柱受拉的时候,就没有摩擦抗剪这一项,同时考虑拉力的影响,钢筋销栓抗剪公式略有变化,详见JGJ 1的7.2.3条。
3
叠合梁端竖向接缝的受剪承载力
装配式框架结构叠合梁端竖向接缝的受剪承载力设计值包括以下三个部分:现浇叠合层抗剪、键槽抗剪和钢筋销栓抗剪。和柱底水平接缝抗剪承载力不同,叠合梁端竖向接缝的受剪承载力有持久受力状况和地震设计状况两种工况,地震工况要做调整,大约是持久工况的0.6倍,详见JGJ 1的7.2.2条。
4
叠合梁水平叠合面的受剪承载力验算
装配式框架结构叠合梁水平叠合面的受剪承载力验算可参考下式计算,
受剪承载力设计值包括两项,混凝土粘结抗剪和钢筋抗剪。
5
未配置抗剪钢筋的叠合板,水平叠合面的受剪承载力验算
叠合板有时也是没有钢筋配置的,可参考下面的公式,
因为叠合板的叠合面面积较大,一般情况,即使没有配置钢筋也是能满足水平叠合面的受剪承载力要求。
6
结合面
JGJ 1中规定,
装配式框架结构连接设计还有对结合面质量的要求,结合面根据特征分为两类,一类是粗糙面,一类是设置键槽,也可以两种形式都考虑。比如预制梁端面,按规范要求应设置键槽,键槽可以选择贯通梁端截面宽度的或者不贯通的。规范对键槽的尺寸有很具体的要求(见图6.5.5)。对粗糙面有具体要求:粗糙面的面积不宜小于结合面的80%,预制板的粗糙面凹凸深度不应小于4mm,预制梁端、预制柱端、预制墙端的粗糙面凹凸深度不应小于6mm。我们在现场看到有很多粗糙面不是水洗方式产生的,往往达不到要求。如果用刻痕钢板、花纹钢板,粗糙面的深度大致就是1-2mm,质量上是令人担心的。设计承载力验算并没有考虑到结合面的设计,即使结合面再光滑,也有一定的抗剪能力,计算时采用偏于安全的方式不予考虑。有些构件生产厂家做水洗,完成的粗糙面很标准。
7
钢筋连接方式
根据不同的受力情况,在符合国家现行有关标准规定的前提下,允许在装配整体式结构中采用多种钢筋连接方式已在JGJ 1的6.5.2条中给出。具体到预制柱的纵向钢筋连接能选用的方式不是很多,应符合JGJ 1中的7.1.2的规定。
6.5.2 装配整体式结构中,节点及接缝处的纵向钢筋连接宜根据接头受力、施工工艺等要求选用机械连接、套筒灌浆连接、浆锚搭接连接、焊接连接、绑扎搭接连接等连接方式,并应符合国家现行有关标准的规定。
7.1.2 装配整体式框架结构中,预制柱的纵向钢筋连接应符合下列规定:
1 当房屋高度不大于12m或层数不超过3层时,可采用套筒灌浆、浆锚搭接、焊接等连接方式;
2 当房屋高度大于12m或层数超过3层时,宜采用套筒灌浆连接。
8
接缝处的材料
还有一个需要注意的是接缝处混凝土或灌浆料,JGJ 1的6.1.12中规定预制构件节点及接缝处后浇混凝土强度等级不应低于预制构件的混凝土强度等级,所以也不强调一定要高于。
6.1.12 预制构件节点及接缝处后浇混凝土强度等级不应低于预制构件的混凝土强度等级;多层剪力墙结构中墙板水平接缝用坐浆材料的强度等级值应大于被连接构件的混凝土强度等级值。 9
预制柱连接节点
JGJ 1中的图7.3.5给出了钢筋采用套筒灌浆连接时柱底箍筋加密区构造示意;也可参考其他资料的图5.6.12中给出的柱底后浇段箍筋配置示意。
10
叠合梁连接节点
JGJ 1中的图7.3.3给出了叠合梁连接节点示意,图9给出了现场施工实例。
图9 现场工程实例
11
后浇梁柱节点
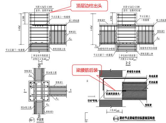
梁柱连接节点做法主要采用混凝土现浇节点或称之为后浇节点。JGJ 1中的图7.3.8-1给出了预制柱及叠合梁框架中间层中节点构造示意,如果两侧梁等高,若不做调整,两侧钢筋在柱中节点处就会相遇,必须考虑钢筋避让注意安装顺序,否则节点内就会出现钢筋弯曲的情况。如果钢筋多层排布的,就会造成等高的梁内钢筋交叉严重,钢筋弯折幅度很大,所以首选的节点设计是两边梁不等高的情况,更便于梁内钢筋的避让。梁柱节点最重要的就是钢筋的避让,图10中示意是水平方向的钢筋错位,具体设计中也有考虑上下竖直方向钢筋错位的,水平向错位比竖直向错位更容易掌握。
图10 装配式框架结构连接设计-后浇梁柱节点构造(一)
预制柱及叠合梁框架顶层边柱或者角柱节点如图11所示。在顶层做法一般会选择上升一个长度,以解决在这个位置钢筋不适合向下弯折的问题。在现浇梁柱边节点处,梁钢筋向下弯折长度很大,所以如果不考虑预制柱顶层边柱、角柱节点上升高度,梁内钢筋在节点处不能放置,下部的预制柱无法完成,会造成很多施工问题。如图11中节点K1-15所示,梁内需要设置腰筋时,因为有双向梁的问题,腰筋一般选择后装。虽然技术上可以选择腰筋后装,但是做梁腰筋本身就不是一个好的选择,最好的设计是不设置抗扭腰筋。如果必须设置抗扭腰筋,就需要考虑后装,否则会妨碍另一方向预制梁的吊装。还有别的形式可以不妨碍吊装,比如梁钢筋放置在节点外连接,另一个方向的梁钢筋放置在节点外。如何设计成梁无需抗扭?本来就需要静力平衡的抗扭腰筋除外,因为再如何解决都存在扭矩,而协调扭矩应该释放,例如,次梁的端支座应该考虑铰接,这样主梁就不存在扭矩了。否则,主梁都带有很小的扭矩,就需要设置腰筋,工程师在设计中就非常被动。
图11 装配式框架结构连接设计-后浇梁柱节点构造(二)
梁底纵筋节点外后浇段内的连接构造如图12所示。
图12 装配式框架结构连接设计-后浇梁柱节点构造(三)
12
主次梁连接节点
JGJ 1中的图7.3.4给出了主次梁节点连接节点构造示意。图13给出了现场工程实例。还可参考其他资料中的图A.0.3-1给出了牛担板企口接头示意,图A.0.1的平企口端部配筋示意图,A.0.2的挑耳梁截面配筋。
图13 装配式框架结构连接设计-主次梁连接节点现场施工实例
13
叠合板接缝
叠合板缝的连接在JGJ 1中的图6.6.4给出了叠合板端及板侧支座构造示意;图6.6.6给出的是双向叠合板整体式接缝构造,安装时钢筋会互相妨碍,国家建筑标准设计图集(《装配式混凝土结构连接节点构造》G310-1~2(2015年合订本),后简称G310-1~2)中给出的是图14所示的后浇带形式板缝,安装时没有妨碍,但是后浇带会宽一些。还可能出现JGJ 1中的图6.6.5中单向叠合板板侧分离式拼缝构造,对板缝预制或现浇带提出更具体的要求。
图 14 后浇带形式板缝
五、装配式框架结构深化设计
深化设计最重要的原则是满足生产和安装的要求。装配式框架结构与现浇混凝土框架结构最大的区别是:有短暂设计状况。JGJ 1中规定如下,
其中,如制作、运输和堆放、安装等短暂设计状况下的预制构件需要按照现行国家标准规定进行验算。这样设计工况就有很大的不同。除此以外,还有装配式建筑的一些具体的情况,比如吊装、预埋件、设备管线的集成等,都要反应到深化设计中,所以深化设计图内容比较复杂,如图15所示。
(a)预制梁配筋图
(b)预制柱配筋图
图15 装配式框架结构深化设计图示例
六、装配式框架结构案例分析
(一)案例一:合肥某办公综合楼
1、概况
案例是一个多层建筑,建筑面积为6100m2,单体建筑预制率很高83%左右。为什么预制率做这么高呢?这也是设计策划的时候客户提出的要求,是一个展示装配式技术的建筑。所以尽量使用装配整体式,预制率比较高。从建筑的角度来说,做一个型体上的分析。柱网尺寸是装配式框架建筑标准化设计的关键,标准化柱网基本决定了预制叠合梁和叠合板的布置方式和种类数量。项目平面布局采用了6.9m×6.9m的标准化柱网尺寸,奠定了装配式建筑设计的基本模数。标准化柱网使得楼板跨度和开间种类不超过3种,预制柱、梁、板的种类大大减少。可以说从前期策划就考虑了工业化需求。项目平面布置方正,立面设计采用工业化理念,少规格多组合,应该说达到了建筑物个性化的需求。
项目基本信息如下,效果图如图16所示。
▲ 建筑面积6100平方米,地上5层,建筑总高度22.1m
▲ 主要建筑功能为办公、展示及厂区配套服务用房
▲ 各层层高分别为:底层层高5.0m,二~五层均4.2m
▲ 大楼整体立面采用玻璃幕墙+外挂PC墙板
▲ 结构体系:装配整体式框架结构,抗震等级为三级
▲ 预制范围:预制外挂墙板、预制柱、预制叠合梁、预制预应力空心板叠合楼板(局部钢筋桁架叠合板)、预制楼梯、预制清水混凝土内墙、NALC加气混凝土轻质条板、预制女儿墙等
▲ 单体建筑预制率:83%左右
图16 合肥某项目效果图
2、建筑设计——体块分析
▲ 6100㎡体量分解—引入绿色中庭,双面采光解决24m进深中部采光差的问题。
▲ 采光中庭可使办公空间的自然采光性均好,减少用电照明,节能且光环境佳。
▲ 同时创造视线和空间交流上的趣味性。
图17 建筑设计——体块分析
3、建筑设计——柱网标准化
▲ 柱网尺寸是装配式框架建筑标准化设计的关键,标准化柱网基本决定了预制叠合梁和叠合板的布置方式和种类数量。
▲ 平面布局采用了6.9m×6.9m的标准化柱网尺寸,奠定了装配式建筑设计的基本模数。标准化柱网使得楼板跨度和开间种类不超过3种,预制柱、梁、板的种类大大减少。
图18 建筑设计——柱网标准化
4、建筑设计——平面设计
图19 建筑设计——平面设计
5、建筑设计——立面设计
图20 建筑设计-立面设计
6、预制体系
考虑到本项目为预制装配式示范项目,为进一步体现装配式建筑工业化建造的优势,尽量减少现场湿作业,设计遵循预制构件范围最大化原则来进行装配结构体系设计。预制范围如下:
1)框架柱(-0.200~屋顶)
2)主、次梁(二~屋顶层)(采用叠合梁做法)
3)楼板(局部采用钢筋桁架叠合楼板,其余均采用预应力空心板叠合板)
4)内隔墙(预制清水混凝土内墙、预制陶粒混凝土内墙、NALC加气混凝土轻质条板)
5)楼梯(预装配式建筑制梯段+预制门架);
6)外立面(预制外挂墙板+玻璃幕墙)
7、体系特点
本项目建筑物尽可能考虑装配式的部分,预制结构体系主要特点:
1)框架柱从基础顶面~屋顶全高预制,底层柱柱脚扩大截面,见图21(a)。
2)办公房间无次梁布置,采用预应力空心板叠合板,免模免支撑提高了施工效率,见图21(b)。
3)部分大跨度框架梁采用先张法预应力预制叠合梁
4)外立面采用预制外挂墙板+玻璃幕墙交错布置
(a)底层柱柱脚扩大截面
(b)预应力空心叠合板免模免支撑
图21 预制结构体系主要特点
(二)案例二:上海某大型商业购物中心
1、项目概况
该项目为集购物中心、休闲娱乐为一体的大型商业购物中心,位于上海市闵行区;建筑平面尺寸约为183mX167m(长度x宽度),柱网尺寸8.4mX8.4m;内院式中庭的设计可以活跃空间氛围,但导致建筑平面复杂,部分区域难以采用预制;主体建筑设计:中建上海院;施工总承包:中建八局;PC深化设计:上海天华。效果图与概况见图22。
▲效果图
▲ 项目概况
图22 项目效果图与概况
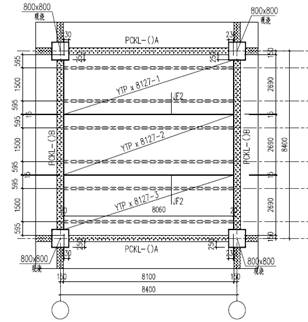
值得注意的是,由于各种原因,这个设计到后期才开始深化设计。最初,业主通过其他的工业化措施实现装配式建筑,但是不能达到上海政府部门对建筑装配率的要求,其他工业化措施可以在装配式建筑中实施,但是不能代替预制率,这个项目是按照建筑预制率30%来实施的。图19中粉红色部分采用的是双T板楼盖方案,其他部分采用的平板形式。
图23 典型楼层结构平面布置图
2、上部结构特点
建筑平面,宽度167mx长度183m,平面尺度大,结构超长;地上四层,局部五层,主要屋面标高为20.900m,局部影厅屋盖标高23.750m,室内外高差0.3m;总建筑高度<24m,按多层建筑设计;商业内中庭平面开大洞,影厅夹层楼板开大洞,有效楼板削弱较多;平面内存在多处大悬挑梁、大跨梁;上部结构采用装配整体式框架结构,柱均现浇,单体建筑预制率达到30%,在上海不算高,上海现行标准已提高至40%。因项目施工初期介入,柱网布置已既成事实,而且商业建筑平面、立面比较灵活,不宜大面积采用装配式,需要同时考虑到施工的因素。如果设计初期介入,可以考虑柱网采用预制柱形式,从而提高预制率。目前,该项目采用预制方案为预制楼梯、叠合梁(预制+现浇叠合层),标准单元内采用预制双T叠合板底板,不太规整的部分采用钢筋桁架叠合板底板这种平板形式。可以说除柱网布置外,其他有能力并适合采用装配式的部分都已经采用了。还有一些构件尺寸很大,影响吊装的部分,就直接选择放弃采用装配式。根据中建八局现场施工组织汇报预制构件统计的情况,总合计5708件,采用的主要构件类型有框架梁、次梁、叠合板、梯段、双T板(见表1)。
表1 PC构件统计表
数据来源:中建八局—现场施工组织方案汇报
3、预制叠合板的比选
该项目最重要的技术特点是楼板使用了双T板,并做了经济性比较(见图24)。
(a)预制双T叠合底板方案与无钢筋桁架叠合底板方案比选
(b)成本对比
图24 方案与经济性对比
双T叠合板方案比叠合板方案还是略便宜一些,价格也视当地供货具体情况而定。双T板方案最大的优势是免模免支撑,吊装效率高。如果采用普通的无钢筋桁架叠合板方案,是两根次梁的形式,通常划分为六块板,两根次梁的存在容易影响吊装等施工进度。所以选用双T板有助于效率的提高。项目中使用的双T板方案与标准图集的双T板略有差别的(见图25),项目采用的双T板是等截面的肋,挑出部分也是等截面的,等截面的一个优势是在切割板的时候保证板端部尺寸一样、厚度一样,从室内看感官比较好;等截面另一个优势是便于做不同跨度的连接板时选用同样的模具来制作。如图26所示,双T板支座处采用倒T型的双挑耳或单挑耳来支撑双T板,双T板与支承构件采用干连接形式。除了双T板外,次梁也采用干连接的形式搁置在挑耳上。
(a)双T板平面布置图
(b)次梁支座做法
图25标准柱网的双T板
(a)双T板支座做法
(b)次梁支座做法
图26双T板、次梁支座做法
4、塔吊及汽车吊布置
由于项目构件的重量比较大,其中双T板是比较轻的,重量接近5吨,可使用塔吊吊装。还有超过10吨的梁等其他构件,需要采用汽车吊完成吊装。项目由塔吊和汽车吊相结合完成安装,如图27所示。
(a)塔吊布置图
(b)汽车吊布置
图27 塔吊及汽车吊布置
5.施工现场
图28 给出了一些典型预制构件现场施工情况。
(a)叠合梁吊装
(b)叠合梁
(c)双T板吊装
(d)双T板连接
(e)预制楼梯吊装
图28 现场施工
整理、编辑:李文扬、刘姗

BIM建筑网




























































