(十七)目前市场上提供的装配式建筑板材产品
■结构板(OSB、石膏板、硅钙板、水泥纤维板);
■外饰板;
■内饰板;
1、各种板材的用途
■结构板 结构板可以用于所有(低层、多层和高层)建筑的内外结构墙板上。
■内饰板 内饰板可以用于所有(低层、多层和高层)建筑的内墙装饰上。
■外饰板 外饰板可以用于所有(低层、多层)建筑的外墙装修。
2、市场上的外饰板技术来源
■北美风格外饰板(外挂板)
a、PVC挂板,规格为200*3000*厚度,价格大约在15~25元/m2;
b、木纹水泥挂板,规格为200*3000*8厚度,价格大约在25~45元/m2。
PVC挂板
木纹水泥挂板
■日本风格外饰板
a、日吉华外墙挂板(图16),规格为400*3000*厚度,价格大约为250~300元/m2;
b、北新金邦板,规格为400*3000*厚度,价格大约150~250元m2。
北美风格的挂板安装简单,不需要专门的挂件。
日本的挂板安装复杂,需要专门的挂件。
这都不是主要问题,主要问题是:
■外挂板只能一体化装修用于低层和多层建筑。
■由于成本控制,国际上多层建筑,尤其是多层住宅也很少使用外挂板。
■考虑抗风压、抗地震、抗脱落等安全因素,高层建筑不能使用外挂板。
3、日本风格ALC板
日本ALC预制墙板做到了大幅面、浅浮雕造型、装饰色彩,是真正意义上的预制装配式建筑外墙产品。
4、市场情况
目前,国内外都没有合适的高层住宅的预制外墙体系。
但是,国内建筑市场又急需多高层住宅的预制外墙体系。
5、技术储备
目前,国内大部分建筑界的官员、学者、专家、企业家、行业参与者都没有充分认识到这一点,仍然把主要精力都放在研发各种所谓的建筑结构体系上。
当然,发展预制建筑,应该去研发新型建筑结构体系,但不能一味地只强调建筑结构,忽略预制建筑学,尤其是适合产业化制造的建筑围护体系——即预制装配式外墙体系。
我十多年前就多次呼吁:“发展钢结构建筑不能只是结构专业在唱独角戏”,但是十多年过去了,情况仍然没有好转。
结构专业的人当然只会关心建筑结构,让他们去研发预制装配式外墙体系确实是勉为其难
现在仍然很少有人和企业去关注住宅产业化所急需的预制装配式外墙体系。
所以,国内住宅产业化所急需的多高层预制装配式外墙体系技术储备几乎为零。
5、卓达优势
我国沉积了十余年的建筑工业化进程获得了史无前例的推进速度与发展空间,卓达绿色装配式建筑迎来了快速大发展的黄金期。
卓达绿色建筑包括多种国际一流的新型建筑结构体系,并把它们与卓达新材独有的优势相结合,卓达集团通过持续不断地研发、创新,正源源不断地向建筑市场推出各种适合中国国情的,适销对路的绿色建筑产品。
卓达集团正在从以下三条技术路径同时并进,进行战略转型:
■战略转型路径1——新型建筑材料;
■战略转型路径2——新型建筑结构;
■战略转型路径3——新型建造方式
卓达集团从新型建筑材料研发起步,正在和已经开发出多种适合中国多、高层住宅建筑应用的新型建筑材料、新型建筑结构、新型建造方式,以及多种适合中国多高层住宅应用的预制外墙体系。
6、预制外墙体系的技术、市场、品牌前景
多高层住宅应用的预制外墙体系的主要技术特征应该,但不局限于以下几条:
■预制(实现住宅产业化的必要条件);
■轻质(预制装配式建筑的充分条件);
■保温(节能、环保、绿色的充分条件);
■美观(建筑美学的充分条件);
■便宜(市场推广的充分条件);
■安全(施工和使用的必要条件,或基本条件)。
目前预制混凝土,即所谓混凝大板系统只能满足预制、保温2个条件;无法满足轻质、美观、便宜、安全等4个条件。
最重要的是:由于混凝土预制大板为了实现保温效果,采用了无机材料(一种高强度纤维)连接件来连接EPS保温材料二侧的混凝土板,由于材料的不稳定性,以及制造质量等诸多问题困扰,一些样板工程已经出现外板脱落等重大安全隐患。
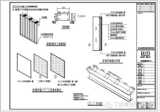
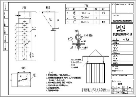
只有轻钢龙骨复合板外墙(ZD保温装饰外墙)系统完全复合多高层住宅应用的预制外墙体系的6大技术特征。
十、卓达集团研发的预制装配式外墙
(一)建筑设计
■可以贴敷各种真石材、真砖、文化石、文化砖;
■可以喷涂真石漆、水包水漆;
■可以刷物廉价美的各种水溶性涂料、油溶性涂料。
(二)结构设计
■专门的吊钩;
■专门的吊具;
■专门的安装节点。

BIM建筑网




















