说到装配式建筑,不得不提到日本的装配式建筑,只因日本的装配式建造技术为全球最先进,而且大部分为坂木装配式。
装配式建筑是一种建造方式,指的是房屋的墙梁板等都在工厂生产,到现场只需要装配。装配式建筑最大的优势是工厂生产机械化程度高,构件精度高,生产效率高;
小编为大家介绍几个日本的装配式建筑,因为只服日本的建造技术。
01
神奈川M宅
项目信息
设计公司::I.R.A.
位置:日本
类型:装配式住宅建筑
材料:木材
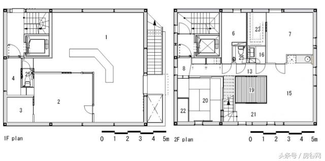
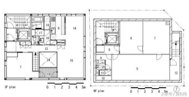
这座四层高的商住建筑坐落于神奈川县的平冢,离大海并不遥远。药店占据了一层临街空间,而地下层、二层与三层则属于居住空间。
▼建筑外观
7根纤细的柱子与建筑立面相结合,支撑起各层楼板。桁架结构的使用使得空间内部无需任何附加的支撑结构,自由而灵活,为未来潜在的空间格局的更改留下了可能性。在建筑的中部,微微下降的屋顶留出了方形的开口,在保证室内空间私密性的同时,将充沛的自然光线引入下层空间。
▼下降的屋顶为建筑立面增添了层次
条形高窗让向着中心下降的屋顶在室外也清晰可见,不仅为建筑立面增添了层次,同时也让其成为了这座美丽小城中一个独特的存在。
▼一层药店空间
装配式研发
▼二层居住空间
▼房间墙面与倾斜屋顶以玻璃相交接
▼ 三层居住空间
天井与楼梯空间
夜景
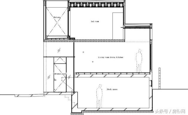
图纸
02
东京KKZ错层居所
项目信息
设计公司::I.R.A.
位置:日本
类型:装配式住宅建筑
材料:木材、混凝土、玻璃
年份:2013年
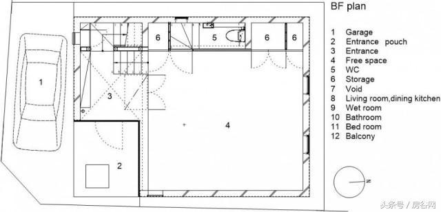
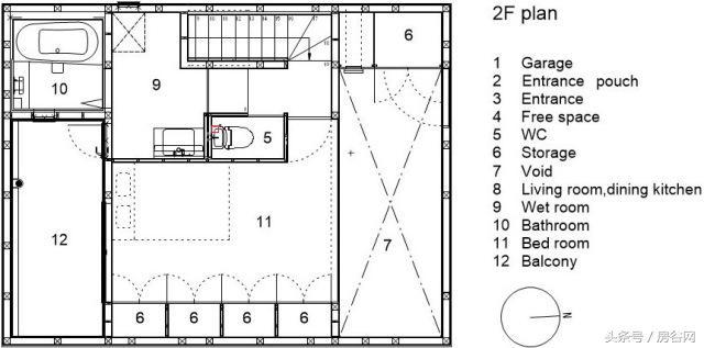
地下一层,地上两层,这座占据了三层空间的小住宅位于东京的易居小镇世田谷区。
▼建筑外观
半地下的开敞空间未来可作为儿童房使用,客厅、厨房和餐厅位于中间层而属于主人的私密空间则位于顶层。尽管建筑所在的基地狭小而受限,位于入口门厅与厨房空间上方的通高空间将不同的楼层串联起来,使内部空间显得开敞而明亮。此外,内嵌于楼板之中、180毫米厚的LVL单板梁保证了跨度6米的二层楼板无需任何额外的柱子支撑,形成了开阔的无柱空间。
▼入口空间连接地下层与一层

BIM建筑网











































