流线视图基地位于韩国首尔的芒原洞(Mangwon-dong)。由于场地面积仅70平方米,且该建筑预计按层出租,所以外部楼梯成为该项目中最重要的元素。楼梯沿着建筑外围蜿蜒而上,最终隐没,使视线终于楼梯而不入内部空间。通常,小空间通过组合和简化以得到尽可能多的利用。在这个项目中,我们提出创造一个规整空间,将垂直方向的交通与视图都外置,尽量减少空间紧张的影响。
场地芒源洞区主要是小别墅和住宅,多不足100平方米,目前要改造成小商店和餐馆。虽然场地面积有限,但优点是北边场地将被清理出来,用作另一座建筑物的指定停车场。
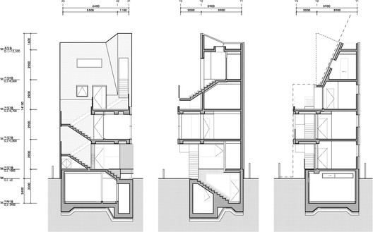
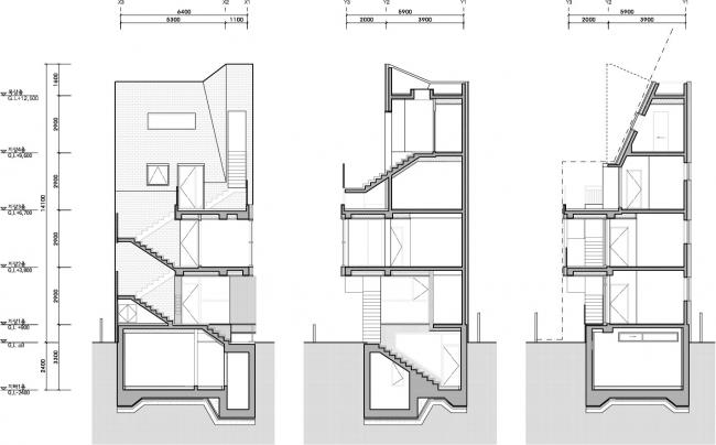
项目这座大楼的未来租户是在设计时确定的。地下室用作酒吧,一层是礼品店,二层是深夜咖啡厅,三楼和四楼用作办公室。虽然每个楼层的实际面积不到30m2,但租户积极参与设计过程,指出自己的需求,这一过程能提高空间效率和租户满意度。
芒源洞一景(远观)经过严密的设计过程,我们组织了建筑外部的交通,每一层都有对外通道和互动。一楼抬高半层,地下室就能得到较好采光,楼梯近乎神奇的拐入规则的内部空间。因此,每一层都有其独特个性和表现。
表皮
芒原洞地区通常都是红砖别墅。我们和客户都希望保留这个社区的氛围,所以决定使用再生砖瓦。我们想要创造一个坚实粗糙的、纹理错综的建筑,打破竖向的严整纹理,而楼梯的空隙则使用金属覆盖。通过轮廓、角度和材料的结合,该建筑的活力变得可观可感。
图纸
分析图
平面图
剖面图
立面图
(BIM设计)项目信息
建筑师:Boundaries architects
地址:Seoul,韩国
主创建筑师:Kim Younsoo
委托方:mangwonkyung_project
建筑面积:166.0 平方米
项目年份:2017
摄影师:Hyochel Hwang
厂家:E.Gon

BIM建筑网


































