该项目的主要设计方法是 “修复”和“增添”,尽可能地基于现有的结构和材料来设计这个空间。首先,我们保留了原有的结构。然后,拆除所有的木墙进行修复,抛光以及重新上色。就算是一些像窗框一样的小细节,我们也保持了原样。当然我们还做了加法,添加玻璃表层,希望在保证空调系统正常使用的同时,引入自然光。空间也被重新规划,以适应旅馆的功能需求。
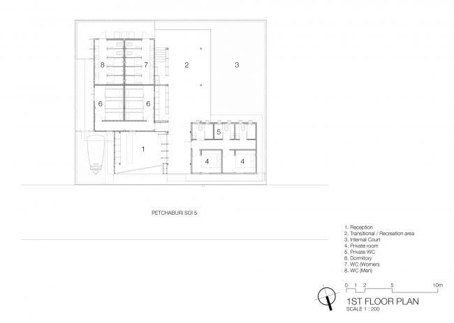
关于建筑空间的安排,我们在较大的建筑里布置了一间四床位和一件六床位的女生宿舍,在底层的尽头布置了共享卫生间/淋浴间。男生宿舍则在楼上一层,有两间三床位宿舍,一间四床位宿舍,还有一间六床位宿舍。带有工作台,储物柜和自行装饰架的床是专为这些特定的客房而设计的,配有柔软的窗帘,这样,就分隔出了一个个的隐私空间。较小的建筑包括了一层的两间私密房间和三间卧室,以及二层三间私密性更强的房间,设有休憩平台。
将现代的新钢结构与这两座现有的木结构建筑融为一体,不仅给KLOEM旅舍提供了良好的氛围,还向来曼谷旅游的客人传递了这儿的街坊会像“老朋友”一样亲切友好的信息。
图纸
一层平面图
一层平面图
剖面图
北立面
南立面
项目信息
建筑师:IF (Integrated Field)
地址:Bangkok,泰国
景观建筑:Pailin Chumplang
建筑面积:355.0 m2
项目年份:2018
摄影师:PanoramicStudio
灯光设计:Kullakaln Gururatana
平面设计:Pakaporn Penpayap and Ketkarn Damrongwattanapoki
结构工程:Boonchu Sedchaicharn
机电工程:Teerawut Phuikhan
品牌宣传:Pattra Erikittipong, Nattasiri Hansapinyo, Savitree Jeamkijrung and Pontapan Sangwar(BIM建筑)aporn
施工方:Rattanaphon Development

BIM建筑网
























