LaeKhon NonBai是一家处于市中心地带小型酒店,位于泰国南部历史悠久的城市之一(Nakhon Si Thammarat)。该项目的旨在复兴已经在结构和建筑图纸上设计完成的项目。建筑师设计意图是重建视觉感知以及实现缺失的元素,例如公共区域,而不对结构设计进行任何改变。建筑美感的挖掘是在没有任何(BIM工作)装饰的情况下创造的,只需要有机组织当地元素并重新设计装饰而已。
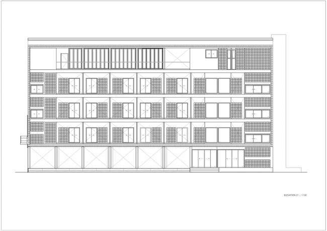
在由商铺和公寓环绕的长方形土地上重新设计这栋5层建筑的最重要的限制之一是:在视觉感知上减少立面高度的实体感和立面重复的单一感,因为这是唯一一处的建筑沿街面。为了实现元素的约束,重要性和重组有助于分散对现有结构的过多注意力。通过结合一些基本的建筑材料,包括整体性的钢幕与砖和木材,建筑的新特点正在被重新定义。这种简约而直观的外观仅使用少量本地化材料即可满足。外立面的像素化有助于为建筑创造深度和强调建筑轮廓。
这个半透明的外立面不仅在建筑美学中发挥作用,而且还作用于室内空间的生活空间的品质感,因为建筑物位于热带环境中,建筑师决定最大限度地利用这些自然资源。通过外立面图案,通风和自然光可以轻松穿透内部空间。随时间而流转的阴影和光线效果的变化为内部空间激发活力感。
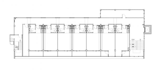
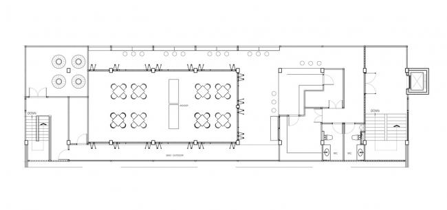
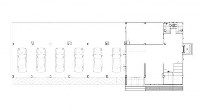
该建筑由20个住宿单元组成,底层为大堂,包含该酒店使用的所有材料,包括内部部分的木材,砖块和玻璃幕墙。从酒店的五楼可以看到城市景观和Phra Mahathat寺庙,这是这座城市的重要寺庙之一。至于景观设计,建筑师精心通过使用圆棒钢的垂直性并将其重新设计为树形,成为酒店内部体验的一部分。
巧妙利用承包商团队的本地化和工艺技术的最大优势,使建筑师能够通过想法和施工方法的变化进行这一系列的实践性试验,从而创造出如此令人满意的设计典范。
图纸
首层平面图
二层平面图
五层平面图
屋顶平面图
立面图
剖面图
剖面图
细部构造图
项目信息
建筑师:Junsekino建筑师事务所
地点:Nakhon Si Thammarat,泰国
室内设计(BIM工程师)师:Junsekino室内设计
总建筑面积:1640.0平方米
项目年份:2018年
建筑摄影:Spaceshift工作室
制造商:Lamptitude,KENZAI

BIM建筑网



























