Paxton 集合住宅位于伦敦南部 Croydon 区的一个复杂场地内,该场地属于当地开放商。这里曾经是一栋混凝土框架的旧办公大楼,由于已经空置,它被“占屋者”( squatters )占据使用。而现在,该建筑已经被精心改造成为一栋极具创新性的住宅,拥有四十三间公寓和一系列公共空间。
为了让每一间公寓都有好的朝向,建筑师避免采用中间走廊两侧公寓的布局形式。通过将套外交通架构化的设计策略,设计师实现了每间公寓都(BIM培训)有双朝向的目标。
从平面布置上可以看出,公寓的主要起居空间都是沿着建筑南侧布置的。为了增加住户的私密度,设计师增设了一个有角度的阳台,作为私密空间与外部街道的过渡。这个折角的阳台,也为观赏附近火车驶过的景致提供了更好的视角。阳台使用的乙酰化木材可以保证更加持久的使用寿命。
每间公寓具有大进深和窄面宽,因此每个折角阳台紧密相连,形成富有动感的立面效果。为了与这种平面上的连续折角相呼应,也为了保证相邻两户住户间拥有更好的私密性,建筑师将阳台的栏杆也设计成了一侧高一侧低的形式。这样的设计不仅让建筑造型更加丰富,还让住户欣赏窗外的视野得以扩大。
有角度的阳台,以及将入户交通从建筑中半抽离出来的设计,消灭了完全北向的户型,让 Paxton 集合住宅中的每一间公寓都能享受到充足的阳光。
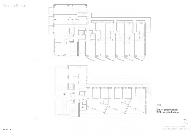
入口大厅设置在L型建筑的外部转角处。大厅空间嵌入到平面的中心位置,这样既方便入户,也压缩了交通空间。建筑师希望改变集合住宅中住户之间互不认识也不交流的状态。这样的公共空间设计,可以让整栋住宅的邻里关系更加和睦。
此外, Paxton 集合住宅在入口大厅一侧设有一片工作区,在顶层设有一间备用卧室。这些空间为所有住户共享。工作区除了与西侧的主入口相连外,还单独有一个南侧的入口,方便住户从 Cargreen 路直接进入。备用卧室可以满足住户生活的额外需求。建筑师还贴心地在顶层的公共屋顶露台设置了设备齐全的烧烤区。完善的公共服务设施让整栋住宅的社区氛围浓厚。
为了最大限度地减少外部入户走道对住户的影响,建筑师精确考量了走道的位置和尺度,并从照明和声学等方面进行了精细化设计。
走道铺装下层采用了儿童游乐场中常用的阻尼橡胶,以减少噪声。表层的材质色彩也经过了处理,并根据楼层的不同而变化。一层入口大厅采用灰色小方砖铺面,方砖材质一直延伸到庭院外,将内外空间的界限进行软化。
建筑一层设有八间单卧公寓和一间无卧公寓。二至四层设有九间单卧公寓和一间无卧公寓。五层包括三间两卧公寓、一间备用卧室和公共屋顶露台。
alma-nac 总监Caspar Ro(BIM)dgers说:“如果保持原有建筑的出入口设置和交通组织不变的话,设计会采用传统的中间走廊两侧公寓的布局形式。但是这样不可避免地会出现单朝向的北向户型。我们尝试了各种方案,希望让每一间公寓都能有双朝向。最终,我们选择了在北向将走道从建筑主体中剥离出来的方式实现了这一目标。走道距公寓的北向房间有一定的距离,并且进行了减震设计,最大限度地减少对于住户的影响。这样的交通系统设计也让流线更加明确。主要的公共服务设施集中在交通核心筒的周围,将分属各户的私人区域和住户共享的公共区域分离开来。”
开发商Joseph Homes 的发展总监Mike Stott说:” Joseph Homes 的产品研发团队和 alma-nac 设计团队密切协作,打造出了这一栋美观、实用且可持续的具有创新性的集合住宅项目。该住宅项目可以为买家和住户创造出更优质的使用价值。“
图纸
总平面图&首层平面图
平面图
剖面图&细部图
剖面图&南立面
轴测图
分析图
项目信息
建筑师:alma-nac
地址:9 Cargreen Rd, London,英国
主创建筑师:Caspar Rodgers
建筑面积:2495.0 m2
项目年份:2017
摄影师:Jack Hobhouse
厂家:Teknos, Velfac, Accoya

BIM建筑网






















