项目位于富春江畔的乌石滩,从梅城古镇出发,沿着富春江一路北上约6公里。场地为山溪冲积而下形成的河滩地,整体呈三角形,中心汇成一片(BIM教程)碧湖,200多亩用地连同地块外的乌龙山脉,富春江共同构成了一幅绝美的流动画卷。这里也是浙江省最美步行绿道的起点。项目要求在这里建设规模约2万平方米的酒店,以此来带动当地旅游和乡村振兴,成为杭州三江两湖黄金旅游线上的一颗明珠。
道路,建筑与场地逻辑丰富的自然环境也意味着建设用地的多样性与复杂性。以溪流、湖面为主轴,周围的平地、缓坡、陡坡用地伴随着场地内500多颗的大树(胸径20公分以上)。无论置身何处,都能找到其特有的场所感。
我们先在整个用地的平地上设置了一条环形道路,解决酒店的基本交通,然后在坡地上设置支线,支线坡度不超过8%,道路设置尽可能减少土方开挖,同时又能兼顾使用需求,从道路到客房,用小径和台阶来衔接,到达个别客房可能需要走30米左右野趣十足的步道,也保护了生态环境。
不突兀、不呆板是我们对建筑形态的期望,最终采用了10种以上的客房模块,以组团为单位,依山就势,有机的散落在水岸山林,统一的大玻璃,大露台,将山景,溪景,湖景,江景充分映入,而若隐若现的建筑则融合于山水,形成“酒店中的风景,风景中的酒店”。
场地剖面
多样性的融合多样性与复杂性的场地特点,决定了以不变应万变的理念并不适用,反而促使我们用针对性的方式去对待。
由于地处深山,大型设备进场非常不便,平地部分采用人工挖孔桩,并采用传统的钢筋混凝土建造方式;山地建筑采用独立基础,考虑后期材料运输,上部采用装配式建造方式,对场地保护起到了积极作用。
建筑风格同样强调场所感,酒店主楼作为主入口,具有一定的仪式感,体现粉墙黛瓦的地方传统韵味。临水客房,则采用茅草屋的亲水性,外墙采用仿夯土涂料,与大地协调。
主楼顶视
主楼入口
主楼主入口
宴会厅前厅
主楼庭院内景
主楼庭院内景
主楼庭院内景
主楼庭院内景
主楼局部
主楼里面细节
主楼旋转楼梯
钢结构楼梯细节
主楼艺术展厅外景
主楼零点餐厅
山中客房,采用多种色彩的红雪松木挂板作为外饰面,与山林为伴。木饰面的天然属性,保持自然界应有的色差,有效避免一眼望去因过于统一而可能产(BIM学习)生的与山体的违和感,让建筑自然的生长在山林里。
山上客房局部
山上客房局部
山上客房局部
山中客房室景
山上客房室内效果
山上客房室内效果
跃层客房楼梯
生态保护与再平衡
在大自然中建设开发,生态保护是永恒的主题。建筑的介入让整个生态再平衡,而人的介入,让富春山水走向富春山居。
合理设置道路,因地制宜是主旋律,道路顺应现状地形,尽量避免陡坡,还得兼顾各单体建筑,确保人行道结合地形合理设置。坡地建筑采用吊脚楼做法,做完独立基础后,不对场地做其它土方处理,上部建筑用轻钢现场组装,大大减少了现场土方工程和湿作业。
建筑为树让路,现场大树均予保留,有些成为建筑庭院和露台的一部分,实在困难的,则取消建筑。土方及修路过程中产生的石块以及现场原有石头都被重新利用,用于路边挡墙和铺地,就地取材,有效利用大大减少了垃圾外运。微生态滤床源自欧洲,是人工建造的、可控制的和工程化的湿地生态系统,生活污水经过系统处理后,回用于绿化灌溉,道路清洗等用途,形成了生态小循环。
诗意的栖居,美妙的画卷
通过采取理性的、符合逻辑的手法,重构了场地环境,让建筑自然的生长,达到人工与天工完美融合。
行到水穷处,坐看云起时。漫步其中,建筑、树林、江湖,溪流、明月等元素都能在步移景异中轻松构景成画,而人则在山水中栖居,蛙声中入眠,鸟鸣中晨醒,体验大自然,呈现出诗意画卷中的乡村度假酒店。
图纸
场地位置
主楼一层平面图
主楼剖面
主楼二层平面
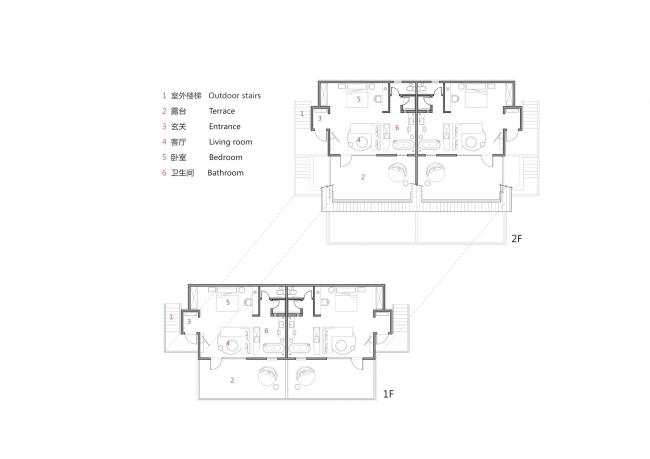
客房平面图
客房平面
主楼墙身详图
主楼墙身详图
项目信息
建筑师:中国美术学院风景建筑设计研究总院
地址:梅城, 建德, 杭州,中国
主创建筑师;陈夏未,柯礼钧
设计团队:金拓,王凯,周建正
项目经理:虞光洁
建筑面积:19000.0 平方米
项目年份:2018
厂家:KINGKOIL
木结构顾问:郭苏夷,济木建筑科技工程有限公司
室内设计:杭州潘天寿环境艺术设计有限公司
业主:开元旅业集团

BIM建筑网











































