Aveo Bella Vista公寓楼在某种程度上是该类型住宅楼的第一栋建成者。设计这栋十层高的住宅总共使用了大约2700立方米的胶合木材,打破了过去十年中从欧洲演变而来并在全球范围内广泛使用的传统木质体量设计。
Aveo最初是作为传统建筑进行构思的,在Jackson Teece和Stonebuild的指导下,将胶合板材料融入到设计中,以展示行业领导力。与单纯由建筑效率驱动的设计相比,该项目更加注重建筑表现和功能规划,这一点与最近竣工的其他大型木结构建筑有所不同。迄今为止已经建成的大型木结构建筑通常是“四方体”式的形态,几乎没有曲线线条存在,基本上都是方方正正,上下平面严格对位,阳台也都是内包式阳台(即不采用悬臂结构,包含在立面轮廓内,三面以墙体围合),并且其通常采用的混合型施工方法(结合工程木材、钢材或者混凝土)到现在都没有建立好成熟的施工体系。
这个项目必须在期望的建筑设计成果和施工原理之间取得平衡。(BIM)有一些设计中遇到的挑战部分会涉及复杂的楼板连接,这样做的目的是实现理想的公寓布局,并以复杂的钢木混合连接来实现外部的弯曲形态和看似悬挑在外部的阳台。基于市场对建筑用木材的认知现状,胶合板材制成的建筑构件均包裹在拥有标准防火等级的建材中。室内的胶合木柱子未经任何饰面装饰直接出现在主入口大厅中,不但可以能够展示出建筑的内部结构,还可以支撑起大面积的玻璃构件。
该项目成功交付的关键是早期时业主方的有效沟通、热情和承诺,还有懂施工方法的专家顾问的投入以及能干的建筑师。Jackson Teece与TDA和Wood Solutions一起组织了一次考察之旅,与业主、建筑商和TTW结构工程师一起前往奥地利和瑞士进行调研。这次旅程加深了该小组对木材工程、制造和建筑技术的理解,并在澳大利亚的项目中加强了这种可持续建筑方法的卓越性。
原料通过奥地利的宾德霍尔兹采购,这家胶合板材供应商的生产地点符合PEFC严格的标准并通过了认证。在制造过程中,它们的无浪费原则意味着对每棵伐木都能达到100%的使用率。生产副产品,如树皮、切片、木块、刨花木屑、锯末、以及刨花薄片均被加工成颗粒、煤饼或者被转换成中性的热能或绿色电力。这种高效和精简的制造工艺,目前在澳大利亚并没有被广泛应用起来,其节省的能量在很大程度上抵消了通过运输产生的额外能量。
节能设计贯穿于整个项目的推进过程中。建筑物在总体规划内交错布置,再加上建筑物立面的铰接形式有助于通过沿立面创建不同的压力区来解决自然通风问题。对机械通风的区域控制能够有效减少能源的使用。所有住宅走廊都可利用自然光和通风,为各单元提供新鲜空气,同时进一步减少对机械通风的需求。机械型设备是专门为增加额外的气密性而设计的,有助于其在大型木材建筑中的实现性能,从而减少了供暖和冷却的持续运行成本。在建筑中使用的大量木材内连续的碳储存进一步减少了在建筑使用期间和未来使用中的碳足迹。
设计方案的目的不但在于提高杆件为(BIM工程师)居住者带来的舒适度,还希望通过使用胶合板材在可持续施工技术领域起到带头作用。使用该材料的优点不仅体现在环境效益和施工速度上,还体现在前期设计的问题解决上,最终改善了项目施工成效,形成高品质建筑。
图纸
总平面图
一层平面图
二层平面图
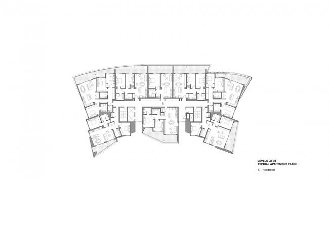
三至九层平面图
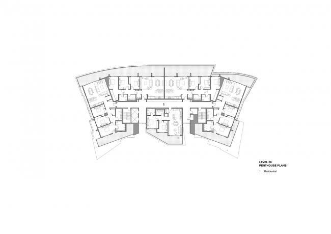
十层平面图
立面图
剖面图
轴测图1
轴测图2
三维视图
项目信息
建筑设计:Jackson Teece
项目区位:澳大利亚,新南威尔士
项目经理:PDS Group
项目时间:2018年
项目摄影:Brett Boardman
制造商:Binderholz, Fairview Architectural, Woodform Architectural

BIM建筑网

























