首都银行位于一个住宅区阿卜内(Abdoun),它是约旦首都安曼最高档的街区之一。创建一个具有奢华体验感的“精品银行”是这所银行的品牌想要追求的设计理念,给客户引入家的归属感和自然风格的热烈氛围。
为了创造这种“精品”体验,传统的银行体验与思维必须以更加私人、奢华和迎合客户需求的方式取代。带有传统排队方式的柜员柜台和等候区被单独的办公室“箱子”空间所替代,大厅和接待区则旨在满足所有客户的需求。
设计中融入了自然主题,首先在建筑物的主要部分内为办公室放置单独的体量,围绕着一个双重空间,其中包含受日本禅宗园林空间影响的内部庭院。除了艺术品之外,在橄榄树雕塑上方设置流动的水晶吊灯,并将它强化为整个空间的视觉焦点。为了当人们行走在走廊上时具有更流动和独特的内部空间视野,各个办公室之间扭转了不同的角度。
前面提到的办公室的转动体量,在外部则主要体现在正立面和侧立面的平面与体量上。余下的侧面和背面外观采用开口最小化的设计,并采用当地的石材包覆,这是为了尊重邻近邻居的隐私以及银行内用户的隐私,保持与当地独有的石建筑的一致性。然而,主侧立面的透明玻璃幕墙通向内部庭院,进一步增强了从外部到内部的空间延续,反之亦然。
至于体量高度,Paradigm DH团队决定使用LUCEM半透明混凝土板作为支撑面板,将其作为外墙立面上的墙体材料,这些混凝土面板由能够被光渗透穿过的光纤制成。这种材料首次在这座建筑中使用,其特点是没有任何边界和具有极佳的不透明度。除了使用半透明混凝土板外,PDH决定使用没有光纤的普通混凝土板,使用相同的水泥/沙子混合物覆盖外墙的非半透明部分,同时保持与使用的石头颜色相似的表面,使得外立面与周边的居住环境保持和(BIM建筑)谐。
为了实现这种结果,我们通过将14米高的楼梯间与机械固定的半透明混凝土板包覆在一起,保持支撑结构从内部暴露出来。灯光照亮半透明混凝土,PDH选择垂直的灯光跨越整个高度楼梯间,并将30毫米厚的LUCEM面板安装在钢/木柱上,并融入扶手的设计。接待柜台和ATM区也采用背光半透明混凝土板制成。
以光影效果形式流经楼梯的自然理念是设计的主要思想。通过使用半透明混凝土,建筑师和照明工程师正在打造一个突出的设计范例,它自然的解决了外墙如(BIM设计)何通过半透明度解决重量和轻透之间的矛盾。
图纸
总平面图
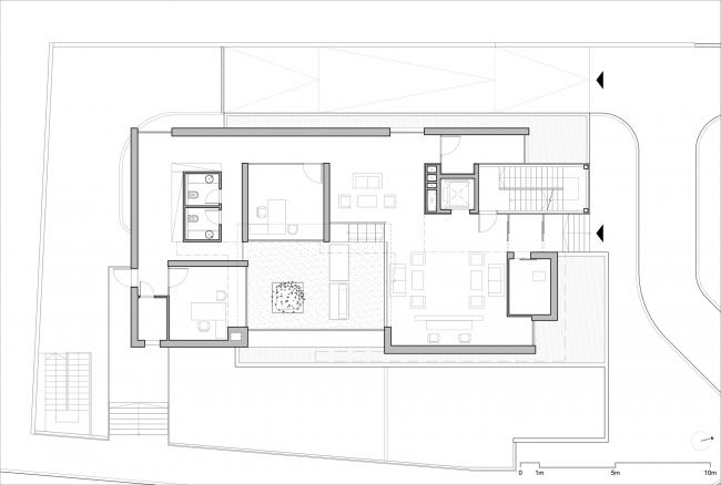
底层平面图
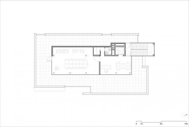
首层平面图
二层平面图
屋顶层平面图
正立面图
右立面图
左立面图
立面图
项目信息
建筑师:Paradigm DH
地点:Capital Bank,Queen Rania Al Abdullah St 317,Amman,Jordan
首席建筑师:Saja Nashashibi
总建筑面积:1100.0平方米
项目年份:2018年
建筑摄影:Nabil Qutteneh,Sireen Khateeb
制造商:Fantoni,Poltrona Frau,Linea Light
结构顾问:工程解决方案和咨询- Esc
机电顾问:EMCC
承包商:Al wajih Contracting Company
照明顾问和供应商:ICC – Ideal Concepts Co.
委托方:约旦首都银行


BIM建筑网


























