由MM++ architects建筑事务所设计的这座石头住宅位于越南东南海岸的海滨城市芽庄。这座度假别墅仿佛嵌入在山体之内,拥有独特的海景视野,占地面积在500平方米左右,可以俯瞰海湾和和远处的群山。考虑到令人目不暇接的壮丽景色,事务所本次设计的主要目标是找到优化这种视觉体验的方法。
于是最终的设计方案是将重点放在建造方式的简洁性和天然原材料的使用上。建筑的外观采用未经修饰的清水混凝土形式,拥有野兽派的粗粝感,而室内设计则截然相反,以精心雕琢的工艺为中心,利用木材创造温暖的氛围。整座别墅从后街进入室内,这一侧的立面由粗雕刻的石材创建具有雕塑感的表皮,与周围的岩石环境形成呼应,并为室内功能提供隐私屏障,避免外界干扰。该立面上的保守形式与面朝大海一侧的立面形成鲜明对比,朝向大海的一侧将整座住宅引向海面,并直接将人们引至壮阔的海景处。
内部向外部空间开放
厨房和服务空间全部设置在住宅的后方,保证全景的海景视野不受阻挡。前立面上设计了大开窗,让室内生活空间一直延伸到室外。主卧室还配套设计了一个电动的可伸缩的玻璃凉廊。当玻璃凉廊伸出来的时候房子仿佛消失在身后,居住者可以体验到完整的海景。MM++ architects建筑事务所在整个设计中使用不同的功能元素穿插其中来创造强烈(BIM培训)的印象感,同时也创造出一个从各个角落都能欣赏到美丽风景的房子。
伸展式的玻璃凉廊
室内外之间彼此(BIM工作)交融
入口处看到的全景景观
二层平面中采用全开放式的功能布局
楼梯细节
夜间照明设置
露天淋浴
入口处立面
黎明时日出东方时的水天一色
图纸
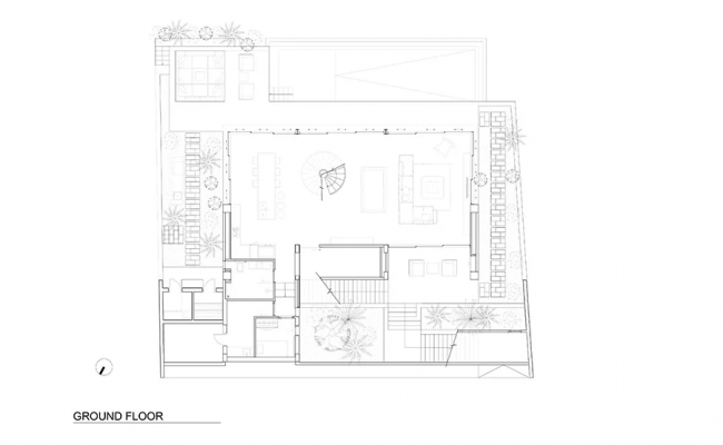
首层平面图
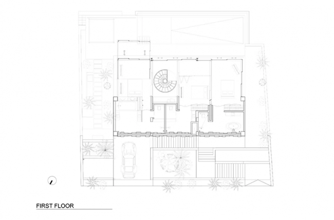
二层平面图
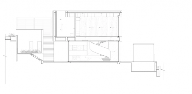
剖透视
项目信息
项目名称:石头住宅
建筑设计:MM++ architects建筑事务所
项目区位:越南,芽庄

BIM建筑网
















