项目背景
“西归道路塞,南去交流疏。唯此桃花源,四塞无他虞。”自古以来,松阳便被誉为“最后的江南(BIM工程师)秘境”。在距离松阳县城15公里的大种山深处,古村陈家铺悬于山崖峭壁之上,三面环山,面朝深谷,云雾缭绕,距今已有600多年历史。
陈家铺村依山而建,沿山体梯田阶梯式分布,上下落差高达200余米,整体呈现出典型浙西南崖居聚落形态。近百幢民居多为夯土木构建筑,保留了完整的村落空间肌理和环境风貌。
航拍图
基地风貌
时过境迁,line+初次来到这里,正值收获的季节,阳光洒在这个悬崖上的村子,夯土墙愈发的亮眼,家家户户在门前晒着自家的番薯干,满目的金黄。
秋收季节满目金黄的陈家铺
改造前
原有砖砌柴房已坍塌破损
line+的任务是对位于村落西南侧的两栋传统民居进行改造。两栋民居是典型的浙南山地民居,三面夯土围合,一面紧靠毛石挡土墙,内部屋架为传统木结构。机动车辆到达村口便无法前行,步行约三百多米可抵达项目场地,但是村道蜿蜒曲折,石阶上下崎岖,路面最窄之处仅供一人通行。
场地环境,村道蜿蜒狭窄
总图
限制和诉求
与周边自然环境呼应(飞蔦集摄)
悬挑的玻璃体量,回应自然
由于陈家铺村是松阳县的历史风貌保护村落之一,松阳政府对于传统历史保护村落的风貌控制有着非常严格的条例要求。然而项目业主希望改造后的空间兼具体验感和舒适性,能回应外部无敌的风景。
回应外部风景
回应外部风景
一号楼一层房间
一号楼二层房间
因此,line+在设计之初就制定了两种策略来回应上诉两个看似存在矛盾的诉求。在整个设计建造过程中,始终遵循两条平行的路径:一是对松阳民居聚落的乡土建构体系展开研究,梳理与当地自然资源、气候环境、复杂地形、生产与生活方式及文化特征相适应的空间型制和稳定的建造特征,为保护传统聚落风貌提供设计依据;二是运用轻钢结构体系和装配式建造技术,植入新的建筑使用功能,适应严苛的现场作业环境,满足紧迫的施工建造周期,同时提供较好的建筑物理性能。
悬挑的玻璃体量
当地乡土民居建构研究
设计从调研测绘开始,梳理了当地乡土民居聚落的建构体系,分析其组成脉络、特征与现实应用的可能性。调研内容包括材料配比、建造技术、场地营造与环境气候适应等方面。
传统工法
团队不仅了走访当地传统工匠,收集工法口诀,感知材料特性,学习传统建造过程。同时,还向现代夯土技术专业人士咨询,调整材料配比,优化材料性能和技术工艺,学习夯土修复技术。
现代夯土改良
最终,在前期调研测绘的基础之上,团队对当地带有地域特征的构架、屋面、墙体、门窗、构造细部等建筑元素和材料进行整理分类,建立当地材料与工法谱系,其成果能够作为之后改造更新设计的参照基础。
建筑材料与工法谱系
结构形式选择
项目地处偏远山区,交通运输不便,大型建筑机器无法进入,对于传统民居的现代空间改造提出了更高的要求。为了应对严峻的施工环境,设计首先从结构形式入手,综合各种因素,决定采用新型轻钢装配式结构体系。结构梁柱为截面尺寸200*90mm的基本单元杆件,由两根壁厚2.5mm的C型钢合抱弦扣而成,冷轧成型。杆件之间螺栓连接,无需焊接。最小化的结构单元,能够解决运输难题;高度的预制率和连接方式,便于现场施工安装。
交通运输不便,大型建筑机器无法进入
结构节点
空间改造
两栋民居夯土墙体保存较为完好,设计将其整体保留,原有建筑内部空间格局狭小,木屋架也已年久失修,拆除后,植入新型轻钢结构,并将新结构与保留的夯土墙体相互脱离,避免土墙承受新建筑的受力荷载。
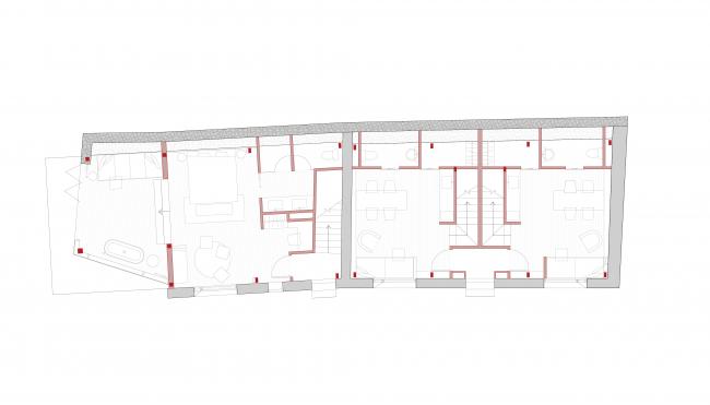
1F平面 改造前
2F平面 改造前
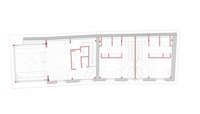
2F平面 改造后
1号楼位于村落尽端,私密性较高。建筑西侧正对峡谷,景观视野绝佳。因此设计为上下两间的平层客房,西侧均以通透的落地玻璃为主,共享景观资源。而作为主要立面的南面,仍然保留原始夯土墙面,融于传统风貌。一二层空间共用入户玄关,交通空间紧贴建筑山墙一侧。
客房内景(飞蔦集摄)
客房内景(飞蔦集摄)
开放的浴缸,可以透过落地窗欣赏自然风景(史佳鑫摄)
(存在建筑摄)
2号楼南侧紧靠道路,考虑到居住空间的私密性,将客房设计为LOFT空间,底层为起居厅,靠窗设置景观卧榻。二层为卧室,床和浴缸皆面向外部风景。
2号楼起居厅(飞蔦集摄)
客房内景(飞蔦集摄)
1号楼二层房间(存在建筑摄)
床顶部的屋面加设天窗(存在建筑摄)
原有老建筑的层高低矮逼仄,无法满足现代居住空间的需求。因此我们将原有建筑屋面整体抬高,高度合理分配至上下两层,为室内设备安装预留空间,同时创造舒适的居住体验。1号楼的最西侧,原有砖砌柴房已坍塌破损,荒草丛生。我们依照原有宅基地范围修建,并且在二层悬挑一个玻璃体量,既可以作为室内空间的延伸,又能更好地收纳峡谷景观。
南立面 改造前
南立面 改造后
西立面 改造前
西立面 改造后
改造后外观(存在建筑摄)
改造后外观(存在建筑摄)
新与旧,虚与实
二层悬挑的玻璃体量,作为室内空间的延伸,又能更好地收纳峡谷景观
清拆保护
首先,对原有夯土农居做建筑质量评定,存在安全隐患的部分予以拆除。建筑质量较好的保留并修缮加固,回收利用拆除下来的木材、青瓦、砖石等材料。
基础地坪
复核原建筑基础尺寸,保证新建结构在原址范围内,确保基础土层稳固。采用平板基础,柱脚范围结构加强。基础与土墙预留安全距离,保证土墙的安全稳固和施工操作空间。预埋综合管线,铺设地暖。
主体结构
结构单元杆件工厂预制加工完成,整体打包运输至项目现场。工人根据预先精确加工的螺栓孔定位,现场拼装结构单元杆件,最快一天即可完成主体结构部分。
楼屋面及室内隔墙
改造方案采取建筑-室内一体化设计施工,因此室内隔墙、楼梯、管线预埋等均可以在工厂预先加工完成,现场装配组装,保证施工精度。室内墙体以C型轻钢作为龙骨,金属网板支模,内部填充EPS发泡混凝土。自重轻,保温隔音效果好,施工便捷。
屋面隔墙施工现场
建筑——室内一体化设计施工(史佳鑫摄)
建造过程示意图
民居外围护结构修复工艺
土墙保护修缮
为了最大程度保留原有墙体,土墙与新建结构脱离,避免土墙承重;二层由于室内高度增加,屋面整体抬升,檐口以下新建外墙以幕墙形式外挂,受力于主体钢结构。当地农民施工队运用传统手工技艺修复还原土墙,室内墙面喷涂保护层。原有外墙的入口门洞以及石头门套完整保留。
墙身大样
运用传统手工技艺修复还原土墙
毛石挡墙围护
村庄内乡土民居顺应地形地貌,依山而建,多数房屋背靠山体的一侧,围护外墙直接采用毛石砌筑的护坡挡墙。设计中希望保留这一表达地域建造特点的构造。首先要对存在结构隐患的石墙修缮加固,确保结构稳定性;山地土层含水量高,石墙会出现渗水现象,在基础施工阶段,预埋排水管起到引流作用。石墙内部灌浆处理,填补缝隙,刷防水涂层,营造舒适的室内居住环境。
新建的石墙就地取材自基地周边山头
石墙修缮加固
毛石墙修复
毛石墙修复
门窗系统更新
传统民居的开窗洞口较小,无法满足客房室内空间对于光照、通风和景观收纳等方面的需求。为了改善建筑内部的光照环境和景观视野,设计中对原有门窗洞口进行了扩大处理,安装现代门窗系统。确保外(BIM建筑)围护结构的密闭性,增强保温隔热性能。特殊设计的铝板穿孔窗框,既能提供室内通风,又保证了外立面简洁统一。
门窗体系
保留青瓦屋面
轻钢龙骨屋面填充eps发泡混凝土,上铺防水卷材。设计利用老建筑拆除的小青瓦作为面层,既回应了地域文化性,也体现了可持续的生态理念。到了夜晚,为了能让住客欣赏到高山上美丽的星空,床顶部的屋面加设了天窗。
青瓦屋面施工
(存在建筑摄)
顶部的屋面加了天窗(飞蔦集摄)
总结
传统历史文化村落保护的目的是为了其更好的发展,风貌严格控制的背后仍然需要满足新业态的功能,乡村的发展不仅仅需要面对自然环境和传统文脉,也需要营造符合现代化生活需要的高品质空间,line+在本次乡村改造中尝试将传统手工技艺与工业化预制装配相结合,轻钢结构在建筑内部为现代使用空间搭建了轻盈骨架,而传统夯土墙则在外围包裹了一层尊重当地风貌的厚实外衣。同时就地取材,对旧材料加以回收再利用,实现“新与旧、重与轻、实与虚”的对立统一。
项目信息
项目名称:飞蔦集·松阳陈家铺项目地址:陈家铺村,松阳县,丽水市,中国设计单位:gad · line+ studio主持建筑师:孟凡浩设计团队:徐天驹建筑面积:300m2项目年份:2018业主:松阳蕾拉私旅文化创意有限公司结构配合与施工:杭州中普建筑科技有限公司室内设计:上海玮奕空间设计有限公司室内施工:上海成共建设装饰工程有限公司结构:装配式薄壁轻钢结构材料:夯土、毛石、轻质混凝土、竹木外墙板、玻璃、铝板摄影师:杨光坤、存在建筑 · 苏哲维、史佳鑫
获奖信息
飞蔦集 · 松阳陈家铺
The 2018 Architecture MasterPrize Winner
Heritage Architecture category
2018 美国建筑大师奖 遗产建筑类 优胜奖

BIM建筑网





































































