上海英国学校汉密尔顿中心坐落在上海市闵行区华漕镇,总设计面积为1200平方米。汉密尔顿中心作为学校与美国MIT麻省理工学院合作的STEAM中心项目,与学校的愿景相一致——多功能、灵活、创新、同时符合21世纪教育理念是在整个建筑空间设计中所需要的体现的。
整体规划中保留了基地原有的绿地庭院,将建筑和庭院的拼接处进行了重新组织,使建筑与自然融一体。感受自然,亲近生态为创新提供了必要的环境。为了尽可能提供给学生一个开放通透的空间感,帮助他们在使用中能更好的释放自己的想象力,所以整个建筑的一层与二层都采用了大面积落地玻璃的设计手法,保证了建筑的通透性的同时能够将室外的四季草木变幻的自然之景投射进室内,接景入室,并提供了最大日照时间的可能,为学生提供一个阳光活力的空间。
外立面上的高强度拉丝不锈钢挑檐设计,最大程度降低这一构件对建筑外立面的荷载。 建筑师通过大量的节点设计测试,将收边控制在微小的2cm,使整个流线一笔成型,更加顺畅,减少了视觉上的厚重负担,跟随立面的单曲线轮廓体现整体设计中统一的轻巧纤薄感。
挑檐不仅在功能上满足了从室外到室内的过渡,同时也加强了整个建筑的漂浮感,增加了建筑的活力感和未来感。开缝节点的设计将不锈钢材质的特性发挥到了极致,表现出具有现代风格的灵动感(BIM建筑),使得整个立面的设计与内容功能相互呼应,做到美学与实用的对话和交融。
汉(BIM工程师)密尔顿中心的室内空间定义为创造一个有自然采光的“聚集小社区”概念。通过天窗与地面下沉区域结合,形成空间内流线的聚焦点,不但为学生提供了开放自由的聚集交流环境,同时通过自然光线的引入,增加了聚焦点的亲和度和舒适度。
汉密尔顿中心的一层功能为MAKER SPACE(创作空间)和FABRICATION LAB(加工实验室)。由于功能上的独特定位,设计也有别于其他学校空间。
工业化的车库门、灵活的高隔音自动玻璃隔断、吸音垂片吊顶以及充足的储藏空间,无一不让汉密尔顿中心体现出与其他传统教室完全不同的设计感,激发学生动手创作的灵感和热情。
面向主走廊的教室流线隔断玻璃能够将内部的创作情形传递而出,引起经过的家长和学生的共鸣。
中心二层在外立面的设计上沿用了一层的手法,通透流线成为主要设计理念。 二层作为学校高中部的媒体中心,建筑师为该区域设计了一套整合制作展示流线,将制作,展示融为一体。
建筑师通过压低一楼储藏室的高度来实现阶梯小舞台这样一个学校非常缺少的功能,作为学生最喜欢的区域,在休闲时间作为学生们聚会展示视频的最佳空间。
二层设计中建筑师保留了露台空间,延续一层空间借景入室的概念,让教室与户外自然空间保持着一种亲密的衔接。
图纸
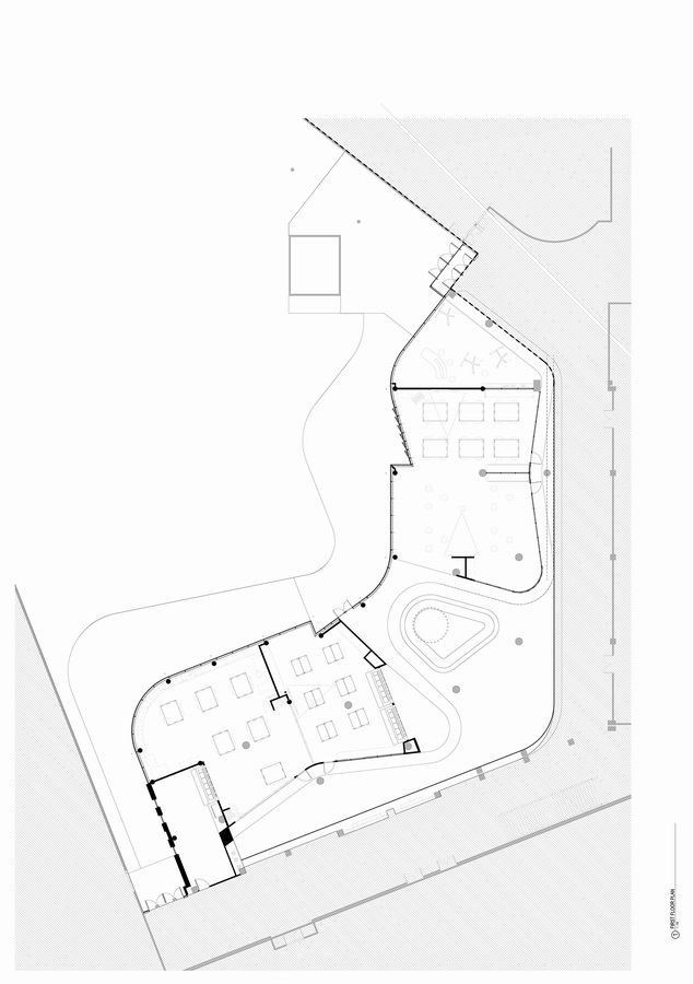
一层平面图
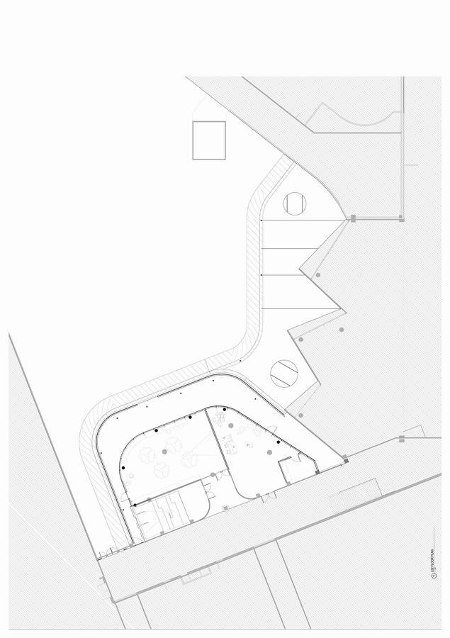
二层平面图
三层平面图
项目信息
设计公司:艺瓦建筑设计咨询(上海)有限公司
建筑师:王元/苏志智/王鑫/张文融
地址: 上海市闵行区华漕镇
建筑面积:1200㎡
景观&室内设计:艺瓦建筑设计咨询(上海)有限公司
摄影师:沈忠海


BIM建筑网


























