项目位于南昌市象湖西岸,新城大尺度的街区形态显著区别于老城的“自然”结构。“滕王阁三角洲”南流的抚河试图保留这个城市的山水特征,并将桥梁转变为城市设计的主要元素。本案欲意取证这座当代城市的记忆,留守文脉边陲。
东北方向鸟瞰
万寿宫与万寿塔分居象湖南北,视觉体系可谓广袤。项目的最初创意是抬升地形,保留城市绿地并建造一个新的建筑,填补沿湖规划形成的地标节点空白。
东南方向鸟瞰
借助类型学概念,将有雕塑感的环桥植入进了设计理念(BIM学习),既作为主体建筑的连接器,也是对于相邻九州大街下穿隧道的回应。
西北方向鸟瞰
东南方向鸟瞰
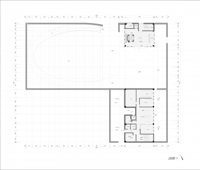
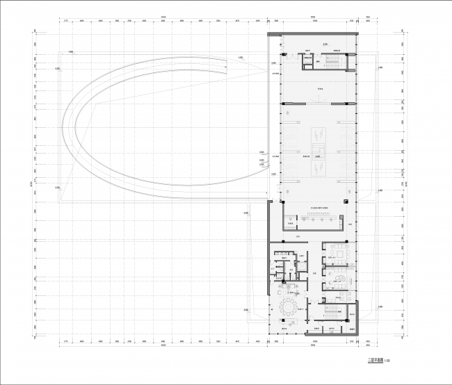
体量上将矩形展廊嫁接在两进院落之上,接待大厅,展示大厅,休息区横向排开。下方的一进院落向北开放,通过围合环桥形成的弧形墙体引导观众向入口靠拢。二进院落纵向布置办公区,同时向南侧外部庭院开放。以此为空间框架,环桥对侧不失时机地展开扩容,形成了门厅的前导区。由不同尺度的空间累积,平面及高度上的形体复制,带来了两部分建筑之间的一种动态而克制的独特观感。
体量分析图
半岛鸟瞰
环桥中心远眺
环桥眺望主楼
本案的结构设计不仅仅是解决并实现承载功能,要进而揭示其背后的形式逻辑,我们最终采用的单侧悬挂箱形梁解决了设计中的关键问题:如何将灵活自治的部件融合,从而形成一个产生内聚力的整体。
结构分析图
环桥起点
环桥作为悬空的装置
单侧悬挂结构
穿过城市绿地,抵达去纪念性的庭院入口,左侧为玻璃门厅,直入进长达21M结构跨度下的休憩区或移步登上右方的环桥。两条流线的起点也是终点,重点是架空层作为设计的重要理念,创造了小型建筑的公共性。
爆炸图
庭院入口
我们要创造的就是这样一个寂静、有力的公共领域,有形的环形结构创造了无形多维的流线,雕塑化的环形架构给予了层层推进的景致。
环桥一侧流线
环桥下方水景
从门厅远眺环桥
作为墙体的建筑扮演了非常重要的角色,承重的院墙更加凸显了建筑最终形式的水平排列结构。19000块25度灰色水泥板挂在亲地化的体量上,创造出极简的细节。
建筑入口
21m跨度下的公共领域
出口庭院
入口院墙
入口院墙
墙面镂空
建筑化景观
图纸
一层平面图
二层平面图
东立面图
西立面图
南立面图
北立面图
剖面图
项目信息
项目名称:南昌万科华侨城纯水岸艺术展廊
项目功能/类别:艺术展廊
项目地点:南昌市西湖区真君路与云锦路交汇处
业主单位:南昌万科房地产有限公司
建筑设计:上海日清建筑设计有限公司
总建筑师:宋照青
设计团队:赵晶鑫、方异辰、李哲翔
景观设计:LANDAU朗道国际设计
室内设计:LSDCASA
摄影团队:行知建筑影像
占地面积:4175.16㎡
建筑面积:1192.45㎡
景观面积:3370㎡
容积率:0.28
绿化率:75%
设计周期:2018.01-2018.08
竣工时间:2018.10.01

BIM建筑网


































