3XN建筑师事务所富有远见且富有创新的获奖提案——Middelfart储蓄银行,充分的展现了该银行品牌所提出的雄心壮志氛围与企业形象与其新总部的建筑设计自然的联系在一起。建筑必须确保为员工提供完美的工作环境,同时也要积极地强调对沿海港未来发展的高建筑质量的要求。
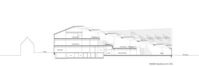
一个硕大的屋顶几乎覆盖了这座建筑的所有功能。屋顶是一个大型但优雅的木结构,有许多菱镜的窗口。这些开口带来了充足的日光,可以从建筑物的所有地方贯通的直接观察欣赏大海景色,并自然的实现了储蓄银行所寻求的轻松友好的工作氛围。
像天窗一样的83个鱼鳞状的棱镜构成了壮观的屋顶表面,以这种形式重新定义了建筑其余部分的几何形状-这个设计灵感来源于参考了海港沿岸的海洋环境以及周围的木结构建筑形式。屋顶的设计旨在为Lillebælt水域提供完美的视野景观角度,并具有遮阳和遮挡阳光直射的功能。
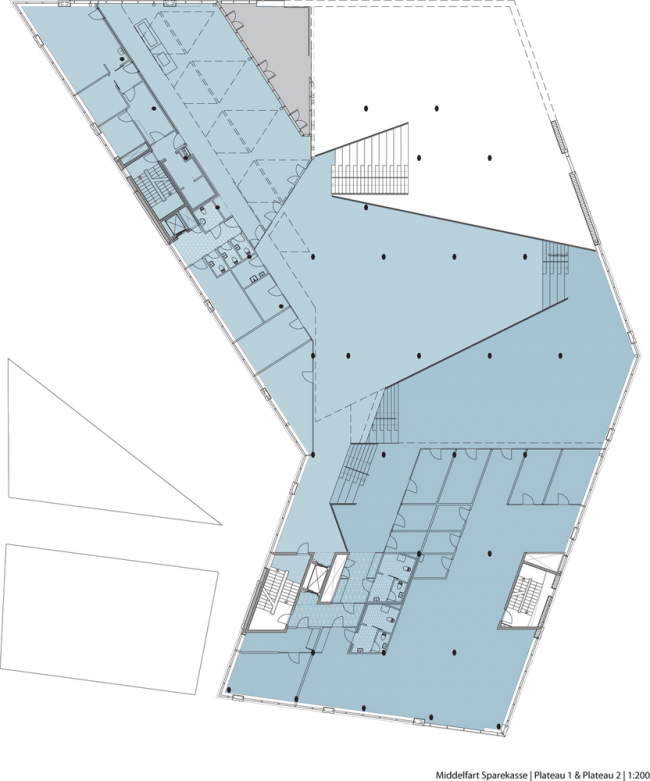
新的建筑经过精心的设计被放置到整个大环境背景之下。一方面,遵循周边的村庄的尺度,规模和屋顶形状等现状的呼应。而建筑物向海港靠拢,为一个新的三角形空间腾出空间,同时也为观景空间打开一定的维度。从广场进入一个大型的室内“交易大厅”,即整个建筑最中心的区域。入口大厅处设有书店,咖啡厅,房地产销售中心和收银柜台等各个功能空间。
银行功能区域的其余部分分布在一系列露台上,这些露台与广场和彼此之间形成开放的连接空间。露台通过宽敞的楼梯相连,为重要的非正式会议提供了良好的机遇和场所。
凭借其中心绝佳的地理位置,该建筑将成为客户,员工和访客的自然交汇点。与周围的城市景观的关系,形成了一个美丽,现代和功能完善的微妙平衡,在建筑的整体规划画面中谦和的融入其中而又令人瞩目。
国际知名艺术家Olafur Eliasson为广场创作定制了别具魅力的艺术装置。受建筑物三角形几何形状启发,设计师将六个“流星状”万花筒镶嵌到底层花岗岩地板内,融为一体又别具一格。为建筑增添了额外的视觉维度效果。
除了为每个项目制定全面广泛和整体性的可持续发展战略外,3XN建筑师事务所的研发部门还在市场上进行一系列的研究与调查,并积极地将最新技术和可持续创新应用到我们的项目中。其(BIM工作)中通过丹麦技术大学开发,现在也是教学课程中的一部分,Middelfart储蓄银行总部的建筑节能供暖和制冷的最新技术的实施被视为开创性的案列而进行研究。该方法利用混凝土的质量和能力通过吸收和释放热量来调节室温。其中的原理是基于具有嵌入式塑料管的预制混凝土甲板来达成的。
高效节能的方案
通过使用这些热活性的混凝土构件,可以将加热的能耗降低达至30%,冷却和机械通风的能耗降低高达85%;在一定程度上总的来说,节能30-50%。这是因为该系统能够自动更好地使用替代的供应能源,即工厂可以在冬季作为低温地板加热系统运行,基于热驱动的热泵然后到了夏季,冷夜空气通过土壤管,利用地下水或海水循环可用于冷却系统的制冷。
该系统在一部分能够自我调节,因为用于加热/或冷却的水在与所需室温仅相差几度的温度下循环,这成为了节能高效方案的关键。除(BIM学习)了节能之外,由于冷却和加热需求的减少,整体的建筑资本成本也降低了很多。
图纸
基地平面图
二层平面图
屋顶平面图
三层平面图
剖面图
鸟瞰图
项目信息
建筑师3XN
地点米德尔法特,丹麦
工程设计COWI
景观设计师圣豪
委托方Trekantens Ejendomsselskab A / S.
比赛年份2005年
建筑面积5000.0平方米
项目年份2010年
建筑摄影师亚当·莫尔克

BIM建筑网






























