本项目坐落于上海佘山脚下,被水系环绕。建筑周围原生的景观为设计提供了最初始的素材。
鸟瞰图
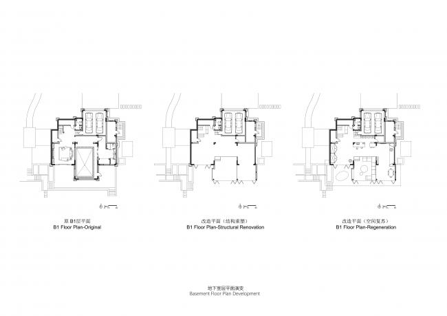
作为所在住区的样板别墅,改造之初,建筑的内外造型和装饰均已完成。其古典欧式的风格与业主对于空间现代性的诉求违背。设计师需要打破这种传统布局,在重塑室内外空间的同时,充分挖掘别墅与环境之间的多重联系。
纵使建筑的主入口位于首层,但由于其坡地住宅属性,地下室层与开阔的庭院相连,成为重要的设计契机,作为崭新的聚场空间重塑。改造从拆除多余的非承重墙体入手,并突破性地用钢结构替代原外围混凝土结构,使得体量优雅轻薄。从地平标高零点向景观面探出的挑檐不仅创造了连续的半户外空间,也完全激活了原先缺乏生机的建筑表情,成为场域内最独特的崭新地平线。
原建筑包含室内和室外两个泳池。在改造中,位于地下室的室内泳池被改造利用为下沉客厅,成为聚场空间的核心。整个地下室由多序(BIM建筑)列空间组成:舞蹈区,客厅区和休闲区。为最大限度确保空间的流动性,区域间通过具有多变的界面材料,而非隔墙界定。
在舞蹈区域的端头,水平连续的户外挑檐含住椭圆形的开洞,将院中高树枝头以及水景瀑布的声光吸纳进室内。配合波光粼粼的不锈钢天花,和连续墙体柜门玻璃的反射,空间尺度在多个维度上得以放大。接近二十米长的连续屋檐,在晴朗的晨昏都会映射出南侧泳池晶莹的水纹,为主客厅区域增加一种由外而内的景观色彩。
东侧休闲区长达四米的胡桃木休憩平台同超尺度的透视窗相结合,越过近处的禅意造景,篮球场孩子们欢腾的身影尽收眼底。贯穿三个空间的是连续的水磨石墙地面,并与多功能厨餐台以及酒吧墙相联系。
开阔的庭院设计也沿用了我们对建筑的思考以及景致渗透和奇观性的实践。在对景观高差进行细致梳理后,丰富的植被搭配充分考虑了季节变化的色彩规律,同时,河边凉亭,造园小景,蛙池,山丘小径,樱花平台细腻地镶嵌于起伏的花园小径,在四季形成或温暖或凌厉的如画风景。
图纸
地下室层平面演变
舞蹈区(BIM培训)镜面不锈钢安装节点
分析动图
剖面图
项目信息
项目名称:新地平线|上海佘山别墅改造
设计:ATAH 介景建筑
公司网站:www.a-tah.com;邮箱:[email protected]
项目设计 & 完成年份:2018
主创建筑师:王丹丹,徐光
设计团队:程瀛,何凡,李沿海,张冉,杨朕钦,何珍
项目地址:上海佘山
建筑面积:500m2
景观面积:2000m2
摄影版权:SHIROMIO studio,VMA Visual
品牌:Parklex 户外木板,Ballhuas 奔豪仕柜体私属定制,Dornbracht当代卫浴,德国旭格门窗,Desjoyaux迪泉优泳池

BIM建筑网





















