在萨瓦河河畔,旧贝尔格莱德的白城中,我们将"老磨坊"这座历史建筑改头换面为一个四星级酒店。
宏大的室内设计理念通过使用新材料、颜色和形状突出和加强了现存的历史结构,激活这个文化遗址的固有品质,从而创造一种独特的视觉体验。
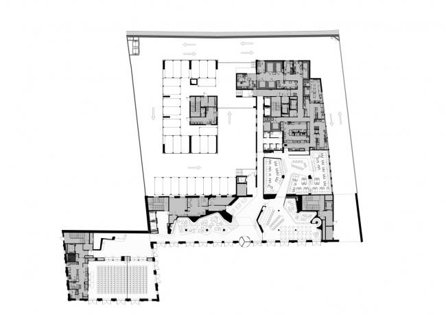
酒店主入口处的大厅、接待区、酒吧和餐厅就设置在这座大楼综合体内。新建的加高楼有客房和套房,以及水疗、健身和服务区。
当客人来到一个地势稍高,用旧花岗岩石和老磨房的锻铁列铺设的新广场,会发现水元素隔离了交通噪音,堪称设计之巧妙。大堂给酒店客人以工业的、开放的和真实的氛围。那些从历史建筑提出的砖块等再生材料,被重新清洗、修复和重铺,完全符合可持续发展策略。接待处的背景虽然由旧机器组成,但是却被诠释成了一种现代建筑语言。自然的材料,如橡木和铜,向人们提醒着这个地方的历史。结构上,必要的水泥切口不作任何修饰,补充了整体的工业外观。这些异样的材料和功能与一个巨大的白色结构形成反差,将它们融入了一个连续空间。就像白色帆布背景彰显其不同年代的历史和品质,赋予他们新的生命。
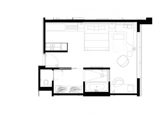
老磨坊这种公共和粗糙的概念也转移到了客房这种私人和柔软的环境中。木材和纺织品的温暖和舒适的质量取代了金属和石制材料。混凝土结构的泥质感作为保持对工业遗产的回忆,机智地以壁画分层作叙事、解释和空间扩展。房间内设有巨大的落地窗、定制的座位区和一个开放明亮的浴室。
老磨房建筑包含有 236 间客房和带有顶层阳台的 14间 套房。还容纳了带四间会议室的会议中心和一个很大的宴会大厅,而且这座标志性建筑的楼顶还(BIM建筑)设置了独有的商务酒廊。
当地的文化遗产和当代室内设计的整体重新语境化的概念,融合成一个奇异的整体:在新旧之间穿梭,老磨坊的精神活在现代社会中,并成为当地的一个新地标。
图纸
项目信息
建筑师:GRAFT Architects
地址:Bulevar vojvode Mišića, 贝尔格莱德 , 塞尔维亚
管理总监:Lars Krueckeberg, Wolfram Putz, Thomas Willemeit
项目经理:Konstantin Buhr
项目团队:Andrea Göldel, Sascha Krückeberg, Sebastian Gernhardt, Stephen Molloy, Denis Leo Hegic, Sonja Wedemeyer, Alice Mayer, Antonio Luque, Tade Godbersen
项目年份:2014
摄影师:Tobias Hein
灯光设计:Strauss & Hillegaart Design, Cottbus/Germany
环保绘画设计:Michelle St. Jean Graphic Design
景观设计:Finvest d.o.o., Belgrade/Serbia
酒店管理:Radisson Blu
开发商:Soravia Group

BIM建筑网




































