这是一次地中海现代主义建筑的现实诠释和葡萄牙立体主义建筑的平衡融合。这座纯白色的简约现代家庭住宅,位于葡萄牙境内。基于自然的有机布局而设计,建筑的主要形态(梯形)遵循场地本身的形状,并以最有效的布局方式组织各个空间,引入阳光和宜人的景观,在室内和室外间持续开放无边界视觉,物理关系空间与自然相互融合。
直接的建筑线条,纯净统一的白色,低矮平直的屋顶(生活梯田)以及由不规则角度形成的体量概念构成了这一住宅的基本设计概念,并且由不规则体量关系来构建和定义整体空间的光影关系。这些完全基于最大化的利用气候和自然采光通风的环保理念而形成的设计主题。
底层体量与地块的侧边界限平行布置。几乎“盲目”的北面、立面与其他立面形成鲜明对比,其中三个立面采用不同角度方向的宽大釉面图案,构建了房屋,露台和景观之间的关系。一楼采用相同的概念,使用“干净”的北立面。其余的立面与不(BIM)规则的平面强调了与建筑景观和阳光的关系。
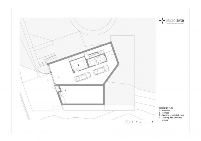
整体的功能布局分为三层。停车库、仓储空间、技术工作室、电影院和健身房位于地下室楼层,这些体量按照地块的自然坡度肆意分散布置。
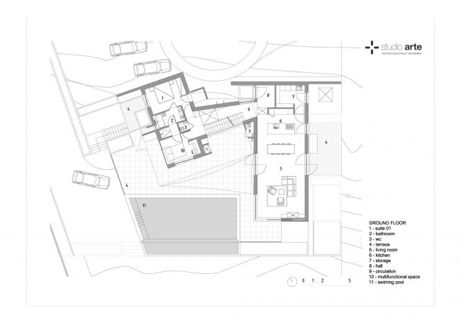
一楼则是由社交区域组成,厨房和起居空间通过大玻璃窗与高出游泳池旁边的主露台相连接。还有一个更私人的区域,西面是一间卧室,设有私人浴室和多功能厅。
充满阳光,极具雕塑感的金属楼梯将底层连接到一楼的私人分区,在这里设有一间带浴室的主卧套房和一间连接浴室的卧室,两间私人露台均分为南/西和北/西朝向,都有着乡村,大海和山间的美丽景致,同时也可以观看日出和日落。
这两个平台与地块的坡度自然融合,遵循房屋的线性排列以及不规则组织形态,基于主要的概念设计形成的露台和泳池区域。第一个平台位于底层,靠近主平台,朝向西面日落的方位。较低一些第二个平台集成了溢流池系统的收集罐,并设置了较高平台和花园区域之间的连通空间。
有机地中海干燥花园概念,本着低成本维护的基准(低水耗),尊重原始的场地坡度,使用当地的白色砾石和一些橄榄果树,以及松树。基于葡萄牙灵感的当地材料最小、低维护的绿色概念也同样用在了外部交通空间和主入口通道,在两侧的入口通道因地制宜地使用了当地的coble石地板来铺筑路径。
一般来说,建筑的房子是在“两个主题世界”之间发展设计而成的,在北区(入口)空间的“第一世界”,房子位于私密性较强的平面内(建筑侧面房间后面),这些空间界定了其住宅所需的具有亲密感的空间,并可转换过渡到'第二世界',在这之前形成一个完全动态,开放,流畅,不断与休闲区(露台/泳池)和自然环境(特指地中海干燥花园概念和乡村/海洋地平线景观)相融合接触的流动空间。
图纸
手绘概念草图
手绘概念草图
手绘概念草图
手绘概念草图
手绘概念草图
手绘概念草图
手绘概念草图
手绘概念草图
总平面图
地下车库平面图
一层平面图
二层平面图
剖面图
立面图
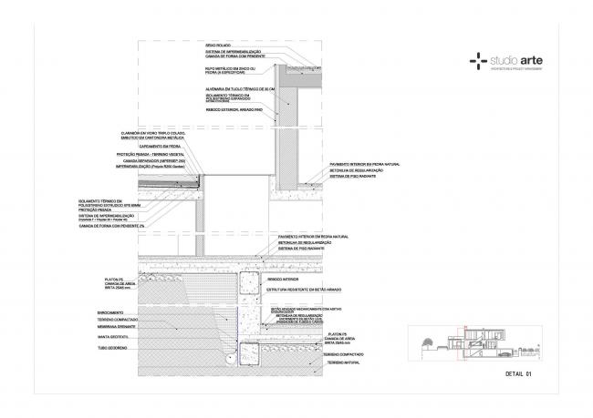
节点构造图
节点构造图
节点构造图
节点构造图
项目信息
建筑师:STUDIOARTE建筑师事务所
建筑地点:葡萄牙拉戈阿
主持建筑师:JoãoCarriço
建筑面积:379.0平方米
项目年份:2017年
建筑摄影师:达克鲁兹照片
开发,项目管理和设计理念:阿诺德·阿尔森
施工单位:JA Duarte&Filho,ConstruçõesLda。(拉各斯)
工程:VERITATE – Loda的ProjectoseFiscalizaçãodeEngenharia。(Portimão的)
园林绿化设计:ECOSSISTEMAS – ConstruçãodeEspaçosVerdes
建筑3D设计渲染:布鲁诺席尔瓦
室内造型设计:Claudine Cullimore(设计师)- 英格兰

BIM建筑网




























































