南侧售楼中心
项目简介
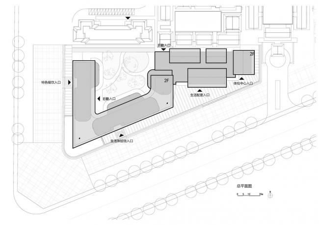
唐山蓝湾小镇项目位于唐山市乐亭(BIM教程)县东南沿海,(BIM学习)唐山湾国际旅游岛北侧陆域。小镇中心作为项目商业中心,位于项目基地西南角,祥迎路与海景大道呈70°交汇出一块狭长的三角形用地界定出用地范围,功能包括生活体验馆与社区配套。
整体建筑外观
场地与建筑
作为与城市界面沟通的第一门户,我们考虑如何使建筑形象有效且合理:1.契合场地;2.标志性的城市界面;3.有效衔接新中式的项目整体建筑风格;4.创造多层次公共空间与城市生活。
面向路口的“C”形伞柱及镜面水池
面向城市道路的界面设置两个条形体量,并向道路交叉口打开,以开放的前场空间形成展示面,并以浅浅的镜面水池作为与城市环境的缓冲带,呈现静谧优雅的姿态。
面向道路交叉口开口的建筑体量
西南侧开口及水池
高达10m的现浇混凝土伞形柱无疑是整个建筑的主角。位于两个转角的伞形柱向上延伸成整片的“C”型平屋顶,将整个建筑的体量统筹于屋顶之下,形成统一、简洁的建筑形象。
“C”形伞柱
东侧平屋顶覆盖新中式立面风格的社区配套中心,使现代与新中式有机结合,形成城市界面与社区环境的良好过度。
功能组织与空间序列
建筑由三个体量构成。面向西侧城市道路的体量为生活配套功能,主要设置了特色餐饮与活动中心等功能;南侧体量为生活体验馆,项目前期作为售楼部使用;东侧体量靠近小区主入口,主要功能为超市、餐厅、健身房、体检中心等便民设施。
西侧视角看向建筑
南侧生活体验馆
暮色下的生活体验馆
东侧建筑
空间由西向东沿城市界面展开,并向城市各方向开口,以引导各来向人流。与此同时,每两个体量之间形成进入的主要序列,过渡城市环境与内部景观庭院。两处的混凝土伞形柱标示了空间形象,出挑的平屋顶在空间上向上限定,形成了供使用者穿行停留的灰空间。
南侧开口
建筑肌理与表情
生活体验馆与西侧的生活配套设施采用了现代风格的设计。沿城市界面的立面使用双侧表皮立面,内层为砌块墙与长条窗,外层覆盖白色穿孔铝板,既满足使用需求,也保证城市界面的干净简洁。夜晚的灯光下,建筑内部灯光透过穿孔铝板,营造一份朦胧氛围。
沿街界面双侧表皮立面
材料拼图
面向内庭院的建筑界面,古铜色雕花镂空金属装饰板与项目新中式风格呼应,减少与小区内部环境的割裂感。出挑金属雨棚讲建筑体量感进一步减小,营造宜人尺度感受。
内部庭院出挑金属雨棚
东侧生活配套设施采用了与整个项目相一致的新中式建筑风格,多重材质的拼贴与精细化的细节处理将建筑技艺运用到极致。米白色石材30mm离缝镶嵌金属线条的做法提升建筑品质,LOW-E玻璃隐框幕墙的做法与石材面形成强烈对比,凸显质感。
东侧生活配套设施
多层次开放空间
我们在设计中提供了多层次的开放空间以供使用者穿行、逗留和活动。城市转角处,设计了镜面水池与活动场地,提升整个场所的形象;东侧设计了入口广场,以满足商业使用的多种需求;围合的的内庭院则提供了内向、舒适的游憩空间;连接内庭院与城市空间的通道(即伞型柱位置)更多的提供一种通过的仪式感,大幅提高空间品质。
东侧庭院连廊
转角处镜面水池
东侧内向庭院
东侧内向庭院
东侧内向庭院
东南侧入口
作为一个典型的社区型公共建筑,我们希望创造一个城市、社区与人的有机联系,使其成为一个独特的公共空间。
图纸
轴测图
总图
一层平面图
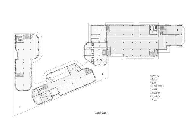
二层平面图
立面图
项目信息
建筑师:GOA 大象设计
地址:海港开发区, 乐亭县, 唐山, 中国
幕墙设计:苏州金螳螂幕墙
景观设计:绿城园林
业主:唐山海港新城房地产开发有限公司
建筑面积:8800.0 平方米
项目年份:2018
摄影师:赵奕龙

BIM建筑网


























