明影片公司坡州大楼
明影片公司是一家相对年轻的电影制作公司,曾制作并发行过多部引起广泛讨论的热门电影作品,比如很久之前发行的《伤心街角恋人》和近期的《建筑学概论》。可以说Myung Films 在韩国当前电影产业并不景气的情况下仍然取得了一些成绩。为了改善韩国恶劣的电影制作环境,他们计划建立一家电影制作学校,可以容纳多功能的表演、聚集和展厅空间,向公众开放,同时在建筑中融入一个豪华餐厅。
明影片公司坡州大楼
明影片公司希望建筑内不仅要有私人住宅,还要为未来电影学校的学生和游客提供宿舍和客房,因此该项目是一座兼具制作、消费、文化和住宅等属性(BIM学习)的小城。当然把想象和虚构的世界(或者说美好的愿望),即俗称的“电影”中的画面复刻到现实生活中是很难的。
明影片公司坡州大楼
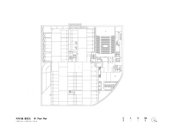
地下室平面图
为了打破不合理的原有的以交通工具为中心的道路系统,建筑师主动采用了以行人为导向的内部道路系统,将整个体块划分成两部分。道路穿过项目中心,成为这座小城的主广场,人们可以在这里自由聚散、停留。广场内有多条通道,与周围地区紧密相连。曲折的道路旁边有一个绿树成荫的公园为这座小城提供了公共空间。
两栋建筑之间的道路
活动广场
体块被划分为两部分,用连桥连接起来,顶部的露天平台可以用来观看和呼应小城内部的广场和道路上发生的活动。此外,朝向广场的主体块周围建起了透明玻璃墙,从户外可以清晰看到大部分的内部活动,形成了一幅美丽的生活风景画。
连接两栋建筑的桥廊
连接两栋建筑的桥廊
在广场上可看到通透玻璃建筑内
项目内部更像是一座城市。内部设置了各种功能空间,道路系统发达,还有小公园和休息区四散各处。当然,各个空间都与户外保持着密切联系,并且彼此开放。
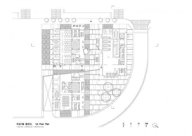
一层平面图
顶层住宅是私人区域,尽可能保证最大限度的私密性。居住在这里的家庭也形成一个小社区,因此内部空间也层次分明,建筑空间充满多样性。混凝土本身是一种结构材料,同时也是外部饰面材料。
建筑混凝土墙体
四层平面图
混凝土材料是古罗马人发明的,距今已有2000年的历史,但现在依然没有一种材料的属性能够超越它。制作者的技术水平和准确度、自然环境和长时间的形成过程以及对最终呈现结果的焦急等待在建筑师看来都带有庄重的宗教仪式感。这种材料能够随着时间的流逝保持稳定,如果细节处理到位可以永久存在。建筑是永恒的,但会随着时间而有所改变。这不就是我们一直追求但难以实现的终极建筑目标吗?安德烈·巴赞(Andre Bazin)曾说过电影是把客观的瞬时画面定格在时间中,对于一座电影制作公司大楼而言更是如此。
建筑局部
建筑局部
建筑总是作为一道不断变化的景观而存在。它牢牢固定在地面上,但它只是一个基础设施,在它的基础上,景观被频繁地附加到建筑上,而且会发生某些变化。景观不断累积,并随着时间的变化改变建筑,小城最终就变成一座建筑。建筑不是由某一位建筑师创造的。建筑师认为居民创造的景观才是建筑。
坐落在基地上的建筑
或许,正如以第三方的角度拍摄的电影呈现的并不是电影导演的个人意图,电影的精髓就是要保证客观现实,而真正的建筑也该如此。所以,明影片公司大楼本身就(BIM建筑)是一座小城、一部电影。
图纸
地下层平面图
一层平面图
二层平面图
三层平面图
四层平面图
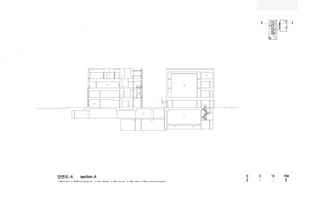
剖面图A
剖面图B
草图1
草图2
草图3
草图4
草图5
草图6
项目信息
建筑师:履露斋
地址:Paju-si, Gyeonggi-do,韩国
主持建筑师:承孝相
建筑面积:1644.0 平方米
项目年份:2015
摄影师:Jong Oh Kim

BIM建筑网



























