经过40多年的海滩沿岸的变迁,山路和海岸线发生了许多变化。海关,建筑,公共空间的使用,以及该国最美丽的地方之一Cachagua镇的品牌和银行广告的到来,促使我们寻找开发新的地方,于是一个人们可以在那里自由沉默冥想的景观,个人的思考和社区交流的场所是我们优先考虑,想要完成的场所。
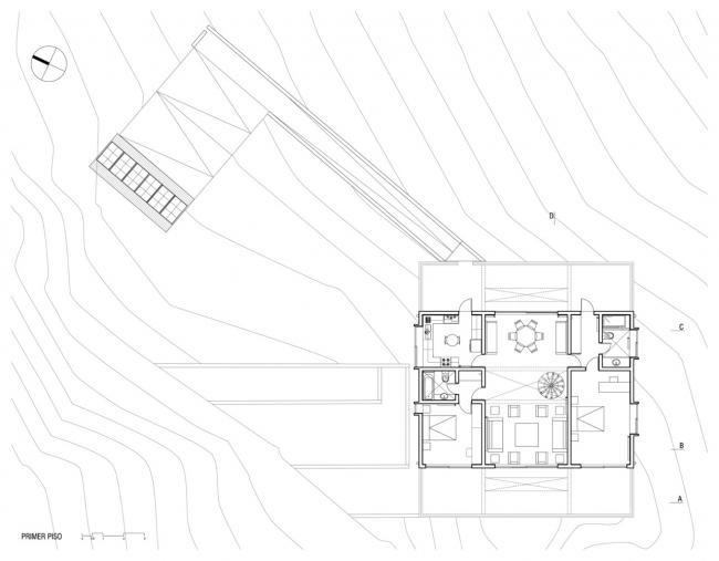
一层平面图
于(BIM工程师)是我们离开第五区的北部,奔途到达南部的第五区,逐步的靠近海岸线,有了更多密切的机会观望海浪,岩石和海鸥群。
我们房子的Tunquén景观视野位于Punta del Gallo,距圣地亚哥一小时四十五分钟车程,有着寻常特别的魅力风格。我们与业主都非常喜欢这个地区,所以我们尽可能多地在这里,在这种孤独氛围中我们找到了自我本色的存在价值和未来发展意义,在这里忙于阅读,写作,观看,散步和谈话。
我们想象Mirador的房子项目,应该从地形缓缓架空然后升高,这使我们能够同时看到陆地和大海的双重景致。由于其位置和建筑,从远处看到的房子和海岸就可以看到房子,突出主要地板由较小的基础体量作为支撑结构,显示出对称的悬臂区域瞭望台。
建筑概念反映了出了设计师三次访问巴黎Villa Savoye建筑的记忆,这是由Le Corbusier设计的,一个夏季独家别墅的项目,Andre Wogensky邀请我为位于地中海沿岸的巴黎律师设计和建造。该项目同Las Condes的(BIM工作)25栋Serfacoop房屋和PeñalolénAlto的Rotonda住宅设计均采用了一致的基本几何形状建筑语汇,太阳能定位和与场地进行的良好沟通。
Mirador住宅是由一个斜坡从地面缓缓升起连接至主楼层,由一个大型会议空间组成,连接到两个分别在对面开放朝向无垠海洋和乡村景致的露台,两侧有两个平台空间。旷阔空间的中心是一个通高的区域,阳光在早晨和傍晚斜斜进入室内空间,通过螺旋楼梯人们可以离开并到达整个区域的屋顶露台。设计师所描述的主楼是基于一个基本体量,在其中包含更衣室以及浴室,供那些露营或在海滩游泳的人方便使用。
图纸
总平面图
一层平面图
二层平面图
屋顶平面图
剖面图
剖面图
剖面图
剖面图
节点构造分析图
节点构造分析图
项目信息
建筑师:VíctorGubbinsBrowne,Gubbins Arquitectos
地点:智利Tunquen
主创建筑师:Victor Gubbins Browne,Pedro Gubbins Foxley
建筑面积:135.0平方米
项目年份:2015年
建筑摄影师:MarcosMendizábal
制造商:MIRAGE,Coldecor,Venteko,Flux Solar
合作者:吉列尔莫·佩雷拉
结构计算:Luis Soler,Juan Erenchun
土方力学:赫克托文图拉
水暖设计:Patricio Moya和Assoc。
电动设计:ING。ICG Ltda。
施工单位:贝纳德诺埃尔
雕塑设计:罗伯托福尔摩斯

BIM建筑网























