En Vue是一家新开店设计的高端精选酒店,位于桑德灵厄姆湾畔,共包含有二十二间奢华极简的单间卧室,双卧室和三开间的精品卧室公寓。En Vue将这些独具特色(BIM设计)美丽的室内设计与精致的细节融为一体,使得每个住宅都能够彰显最新的现代优雅风情,并同时配有豪华的家居设施和装饰设计。
En Vue结合了独特的风格设计和现代化的建筑语汇,在Bayside郊区建造了一座引人注目的建筑。所有公寓的设计都旨在确保能够有着开放式厨房,宽敞的起居空间和舒适的用餐布局,同时要确保个人私人空间不受影响和独立性。每间公寓均提供柔和的现代化空间,供客人体验休憩和放松身心。En Vue的设计考虑了两个关键优先特点:个性和奢华是这所公寓的全部设计主旨。每间公寓都能拥有充足的自然光线,同时仍然保持着隐私和一定个体必备的独立氛围。
En Vue在设计上极其尊重邻近的房子并与其有些互动和对话,坐落在街景的低处,能够减少建筑物的整体视觉冲击,并减少对当地环境的负面影响。这也使得首层公寓的住户能够拥有宽敞的开放式户外区域,还有一楼阳台和二层公寓的私人屋顶露台。靠近Sandringham海滩,经过仔细的考虑与设计,设计师在一定程度上试图最大化的利用美丽的景色视野,不断提醒住户所处位置是一个滨临海湾的绝佳景致——由此提高一定的幸福感。
现代建筑外观立面的发展演变被设计成为更具有凝聚力的单元整体的统一性,而不是单独分(BIM培训)割和突出每个公寓的个体效应。这在其中增加了En Vue的独特魅力,因为在其整体外观与更广泛的桑德琳厄姆社区当中能够更容易的促进相互关联互动的生活方式。木质覆层装饰设计和白色混凝土的浅色调的增加了街道立面整体的统一性,而且同时增加了该区域社区的活力与生命力。
与大多数白色混凝土和木材覆层装饰的浅色调相结合时,会很容易让人无法轻易区分外立面上的公寓的特征和个性化。这些会在一定程度上减少了对街道的视觉冲击力和影响力。
图纸
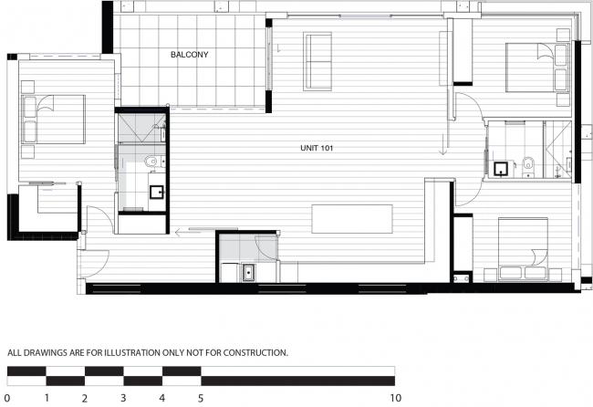
平面图
正立面图
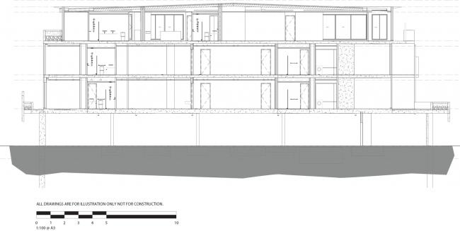
剖面图
项目信息
建筑师:芬尼斯建筑师事务所
地点:墨尔本维 澳大利亚
室内设计:We are Huntly
建筑面积:971.0平方米
项目年份:2018 年
建筑摄影师:汤姆罗
制造商:Artemide,Fisher&Paykel,Miele

BIM建筑网























