这座造型简洁的学生活动中心(SDC)位于美国佛罗里达州莱克兰的佛罗里达理工大学(FPU),它展现了新科技时代下,这座研究型大学校园内良好的学术氛围,并鼓励人们具有创新,合作精神。学生们票选出来的吉祥物是建筑形式的灵感来源,并且将圣地亚哥·卡拉特拉瓦的标志性创新材料板,科学与技术(IST)大楼,原始校园总体规划,加入设计时考虑的因素。建造这座建筑旨在鼓励学生,教师,员工和其它社区人员加强锻炼,以更好地实现学术追求。
作为一个直接与学生身体健康相关联的建筑项目,以近期票选出的吉祥物作为建筑形式的学生活动中心,反映了这所学校具有活力的学生文化。凤凰作为吉祥物不仅象征这所研究型大学的办学重心,还寄托了对人们身心健康的美好愿望。更具体的说,凤凰意象所象征的,是利用空余时间定期进行锻炼的人们,可以得到如凤凰般“重生和焕新”。主创建筑师Tim Hoeft, AIA相信,使用现代语汇的建筑形式,或者形容为“一栋会说话的建筑”,可以提升学校的知名度。由于在附近的高速公路上可以很容易看到这栋建筑,所以在设计的时候,希望它是一个对外展示学校精神风貌的载体。
这座兼具室内休闲,户外水上运动和学生事务工作多功能的建筑设施展现了学校办学的特色——“信息技术”。建筑设计上使用野兽派的手法,采用对称式形态,与自然形态相呼应。它不仅吸收了卡拉特拉瓦的设计理念,以此作出致敬,而且还借鉴了距该地仅10英里(16公里)外,弗兰克劳埃德赖特在佛罗里达南方大学的作品。在空气动力学的仿生方面上,这种非常规的蝴蝶屋顶“翅膀”,会将雨水直接引向排水管道,而这些管道口直接指向了泳池边的绿化。建筑的外部形态和内部空间都是在体块结合和结构形式作用下的结果。内部主要空间都是自然采光,这些光束呈现出简单,明了的排布。建筑使用的主要材料有混凝土,玻璃,钢,表皮大面积使用单色材料,而内部则使用天然木材和石料来协调。
(BIM教程)
通过准确的南北太阳方位定位和四面夸张的屋顶悬挑实现被动节能。北立面(包括入口大厅)的玻璃都是经由计算,精准定位安装的,从而最大程度地减少太阳热量的聚集和亚热带气候地区中普遍会发生的眩光。
在这里,你既可以看到外面的校园,又可以瞭望到北部的橡树保护区,欣赏那里树木繁茂的景观,是聚会,休闲的好地方。建筑中央顶部的屋顶设计用于支撑并遮挡主入口外30英尺(9米)的(BIM)攀岩墙(暂未建成),最大限度地利用光伏板,即时产生可再生太阳能,并进行与其相关的研究。通过联合使用的地源热泵系统(GSHP)满足建筑和泳池的制热和冷却需求。
图纸
平面图
剖面图
东立面图
南立面图
北立面图
分析图
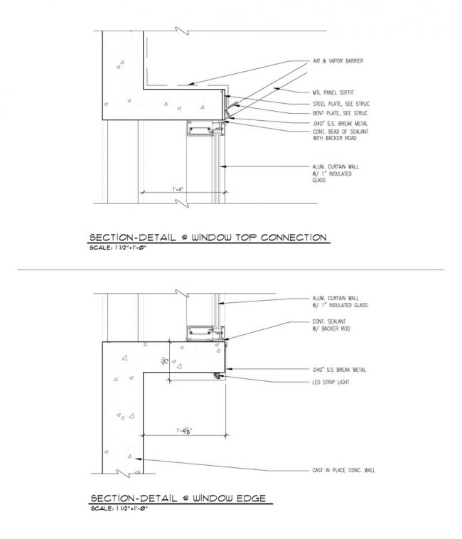
窗户细节
窗户剖面
项目信息
建筑师:Straughn Trout Architects
地址:4600 Research Way, Lakeland, FL 33805,美国
主创建筑师:Tim Hoeft, AIA
建筑面积:10192.0 平方英尺
项目年份:2018
摄影师:Chad Baumer
厂家:Big Ass Fans, Solarban, Lithonia Lighting, Armstrong, Kawneer

BIM建筑网





































